Contact
Tell us about your needs

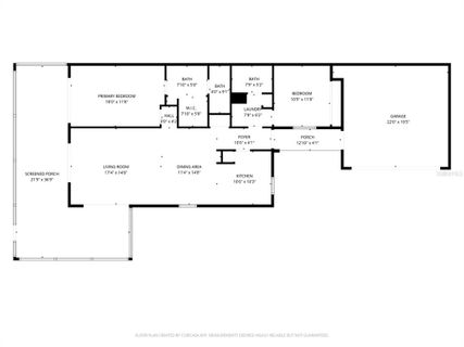
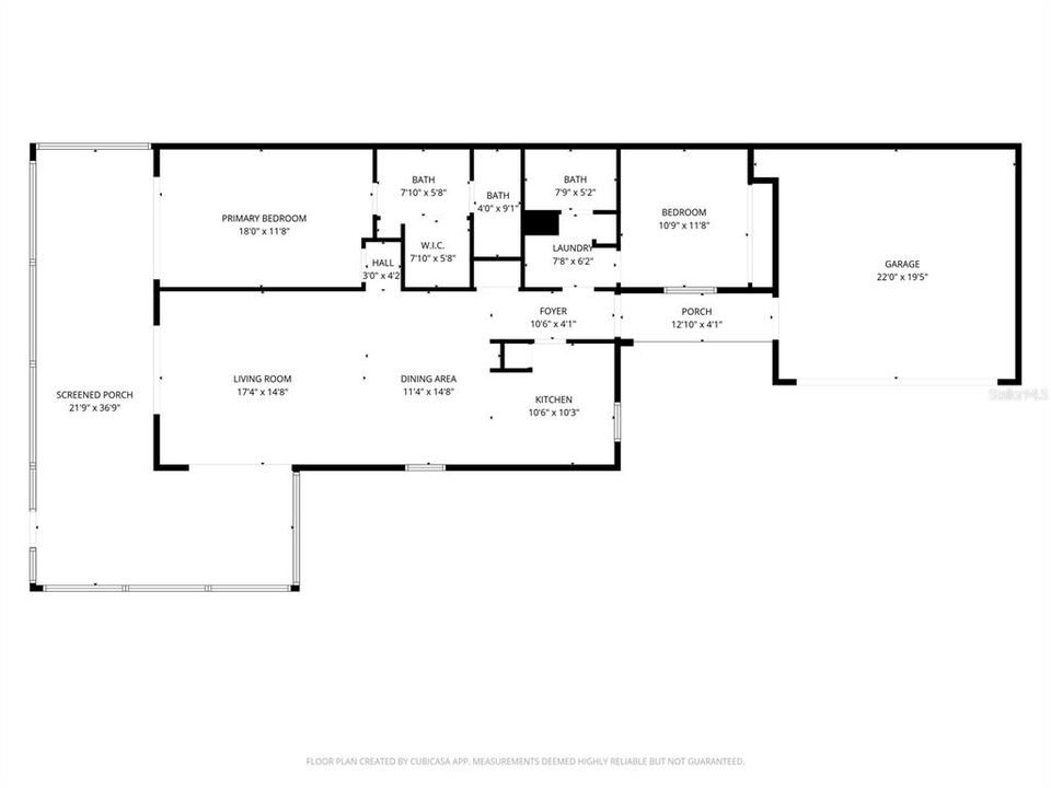
102 CAPRI COURT S

Townhouse For Sale
$250,000

BTC: 2.89519398

ETH: 85.44087491

46 days
2 bds
2 ba
1,329 sqft
Est. Estimated sales range: $0 - $0
$0

Overview

This fully updated, corner unit, villa/townhouse with a garage offers a perfect blend of comfort, space and convenience. Step inside to find an open layout with luxury vinyl plank flooring throughout and a modern kitchen featuring stainless steel appliances. The split floor plan provides privacy for both bedrooms, while the indoor laundry adds everyday ease. Primary Bathroom includes Double Sinks and Walk In Shower! Enjoy the wrap-around lanai with multiple sliders, over looking the lush green landscaping, perfect for relaxing or entertaining year-round. With its private entry, stylish updates, and low-maintenance living, this villa is move-in ready and waiting for you to call it home.

Location

Facts and features

Type:
Residential
Parking:
No Data
Year Built:
1980
Lot:
0.06 Acres
Heating:
Central / Electric
Price/sqft:
$188
Cooling:
Central Air
HOA:
No Data
All facts and features
  • Flooring

    • Luxury Vinyl

    Heating

    • Central

    • Electric

    Cooling

    • Central Air

    Appliances

    • Dishwasher

    • Disposal

    • Electric Water Heater

    • Microwave

    • Range

    • Range Hood

    • Refrigerator

    Other interior features

    • High Ceilings

    • Living Room/Dining Room Combo

    • Primary Bedroom Main Floor

    • Thermostat

    • Window Treatments

    Bedrooms and bathrooms

    • Bedrooms: 2

    • Full bathrooms: 2

  • Property

    • Levels: One

    • Exterior Features: Courtyard

    Lot

    • Lot: 0.06 Acres

    Other Property Information

    • Parcel Number: P3128225920000000015A.0

    • Zoning: PD

  • Type and style

    • Property Type: Residential

    • Property Sub Type: Townhouse

  • Utility

    • BB/HS Internet Available

    • Cable Available

    • Electricity Connected

    • Sewer Connected

    • Water Connected

  • Other financial information

    • Annual tax amount: $3,251

  • Source details

    • MLS ID: TB8446115

    Other facts

    • Construction Materials: Block

    • Foundation Details: Block

    • Laundry Features: Inside

    • Direction Faces: North

    • Garage Spaces: 2

    • Attached Garage: Yes

    • Garage: Yes

    • Living Area: 1329

    • Water Source: Public

    • Subdivision Name: WALDEN LAKE FAIRWAY VILLAS UNI

Similar Homes

614 SPRUCE STREET placeholder 614 SPRUCE STREET
New
For Sale
House
$275,000
2 bds 1 ba 1,368 sqft
614 SPRUCE STREET
3219 SPOONER DRIVE placeholder 3219 SPOONER DRIVE
4 days
For Sale
House
$295,000
3 bds 2 ba 1,254 sqft
3219 SPOONER DRIVE
2318 TANBARK RIDGE PLACE UNIT 2318 placeholder 2318 TANBARK RIDGE PLACE UNIT 2318
5 days
For Sale
Condo/Co-op
$214,900
2 bds 2 ba 1,185 sqft
2318 TANBARK RIDGE PLACE UNIT 2318
806 WHITEHURST ROAD placeholder 806 WHITEHURST ROAD
8 days
For Sale
House
$239,000
3 bds 1 ba 856 sqft
806 WHITEHURST ROAD
1333 WILKINSON DRIVE placeholder 1333 WILKINSON DRIVE
12 days
For Sale
$220,000
3 bds 2 ba 1,216 sqft
1333 WILKINSON DRIVE
401 W SAUNDERS STREET placeholder 401 W SAUNDERS STREET
13 days
For Sale
House
$275,000
3 bds 1 ba 1,251 sqft
401 W SAUNDERS STREET
1944 GREENWOOD VALLEY DRIVE placeholder 1944 GREENWOOD VALLEY DRIVE
15 days
For Sale
Townhouse
$215,000
3 bds 3 ba 1,572 sqft
1944 GREENWOOD VALLEY DRIVE
4804 KIPP CIRCLE placeholder 4804 KIPP CIRCLE
18 days
For Sale
$250,000
3 bds 2 ba 2,015 sqft
4804 KIPP CIRCLE

The multiple listing information is provided by the Stellar MLS from a copyrighted compilation of listings. The compilation of listings and each individual listing are ©2025-present Stellar MLS. All Rights Reserved. The information provided is for consumers' personal, noncommercial use and may not be used for any purpose other than to identify prospective properties consumers may be interested in purchasing. All properties are subject to prior sale or withdrawal. All information provided is deemed reliable but is not guaranteed accurate, and should be independently verified. Listing courtesy of: KELLER WILLIAMS REALTY- PALM H