Contact
Tell us about your needs

464 BAY LEAF DRIVE

Townhouse For Sale
$246,900

BTC: 2.76657254

ETH: 123.45000000

52 days
2 bds
2 ba
1,398 sqft
Est. Estimated sales range: $0 - $0
$0

Overview

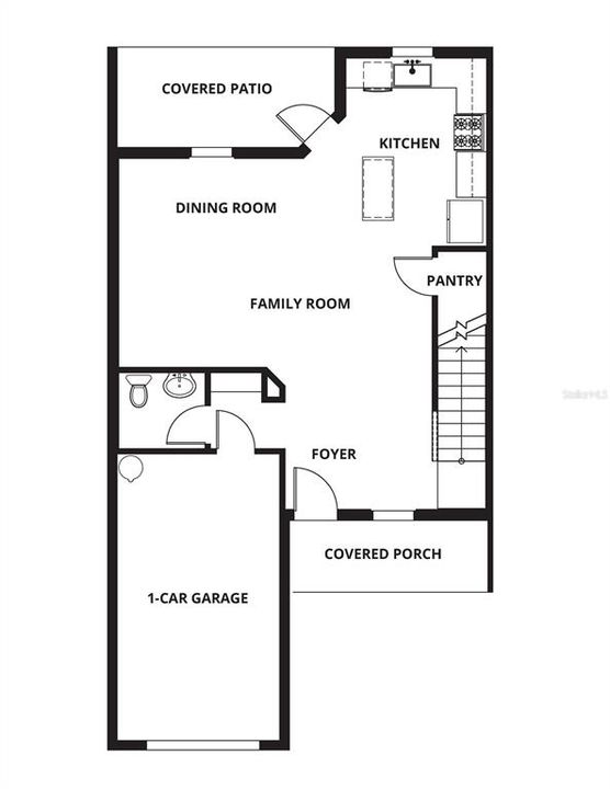
Welcome to the Bay floor plan at Noah Estates at Tuscany Preserve, where thoughtful design and modern living come together seamlessly. This beautifully crafted two-story home features 2 bedrooms, 2.5 bathrooms, and a flexible bonus room, giving you the space you need for work, guests, hobbies, or relaxation. The heart of the home is the open-concept main level, showcasing a contemporary kitchen complete with Whirlpool® stainless steel appliances, granite countertops, a spacious island, and Moen® fixtures. The kitchen opens up to a bright living and dining area with access to the private back patio, perfect for hosting friends or enjoying quiet evenings at home. Durable vinyl plank flooring adds elegance and ease of maintenance, while quartz countertops give the bathrooms a polished, upscale feel. Upstairs, the private owner’s suite provides a quiet retreat with two walk-in closets and a spa-inspired bathroom featuring dual sinks and a step-in shower. The additional bedroom and flex space offer versatility to suit your lifestyle, whether you need a guest room, office, playroom, or media space. This home also includes a finished garage with a Wi-Fi-enabled garage door opener and front yard landscaping for added convenience and curb appeal. Every home in this community is move-in ready and equipped with LGI’s CompleteHome™ package, featuring designer upgrades included at no extra cost. Residents will love the incredible amenities at Noah Estates at Tuscany Preserve, including a clubhouse with fitness center, a sparkling resort-style pool, heated spa, splash pad, basketball court, and tennis court. LGI Homes simplifies the path to homeownership with low to no down payment options, builder-paid closing costs, energy-efficient construction, and a structural warranty. With premium upgrades included from day one, the Bay floor plan offers unmatched value, comfort, and style. Schedule your visit today and see why the Bay plan is the perfect place to call home!

Location

Facts and features

Type:
Residential
Parking:
Driveway / Garage Door Opener
Year Built:
2024
Lot:
0.07 Acres
Heating:
Central / Electric / Exhaust Fan / Heat Pump
Price/sqft:
$177
Cooling:
Central Air
HOA:
$197
All facts and features
  • Flooring

    • Carpet

    • Luxury Vinyl

    Heating

    • Central

    • Electric

    • Exhaust Fan

    • Heat Pump

    Cooling

    • Central Air

    Appliances

    • Dishwasher

    • Electric Water Heater

    • Exhaust Fan

    • Ice Maker

    • Microwave

    • Range

    • Refrigerator

    Other interior features

    • Attic Fan

    • Ceiling Fan(s)

    • High Ceilings

    • Kitchen/Family Room Combo

    • Open Floorplan

    • Pest Guard System

    • PrimaryBedroom Upstairs

    • Solid Wood Cabinets

    • Stone Counters

    • Thermostat

    • Walk-In Closet(s)

    • Window Treatments

    Bedrooms and bathrooms

    • Bedrooms: 2

    • Bathrooms: 1

    • Full bathrooms: 2

  • Parking

    • Driveway

    • Garage Door Opener

    Property

    • Levels: Two

    • Exterior Features: Irrigation System / Lighting / Sidewalk / Sprinkler Metered

    Lot

    • Lot: 0.07 Acres

    Other Property Information

    • Parcel Number: 282810935245000030

    • Zoning: R-1A

  • Type and style

    • Property Type: Residential

    • Property Sub Type: Townhouse

  • Utility

    • BB/HS Internet Available

    • Cable Available

    • Cable Connected

    • Electricity Available

    • Electricity Connected

    • Fiber Optics

    • Phone Available

    • Public

    • Sewer Available

    • Sewer Connected

    • Street Lights

    • Underground Utilities

    • Water Available

    • Water Connected

  • Other financial information

    • HOA: $197

    • HOA Frequency: Monthly

    • Annual tax amount: $718

  • Source details

    • MLS ID: TB8443518

    Other facts

    • Construction Materials: Block / Concrete / Stucco

    • Foundation Details: Slab

    • Laundry Features: Electric Dryer Hookup / Inside / Laundry Room / Upper Level / Washer Hookup

    • Lot Features: In County / Landscaped / Sidewalk / Street Dead-End

    • Patio And Porch Features: Covered / Front Porch / Patio / Rear Porch

    • Pool Features: In Ground

    • Window Features: Blinds / Double Pane Windows / ENERGY STAR Qualified Windows / Low-Emissivity Windows / Window Treatments

    • Direction Faces: Southwest

    • Architectural Style: Traditional

    • Garage Spaces: 1

    • Attached Garage: Yes

    • Garage: Yes

    • Living Area: 1398

    • Water Source: Public

    • Subdivision Name: TUSCANY PRESERVE PHASE 4

Similar Homes

4022 COPPERLEAF LANE placeholder 4022 COPPERLEAF LANE
New
For Sale
House
$319,750
4 bds 3 ba 1,988 sqft
4022 COPPERLEAF LANE
1905 MANATEE LANE placeholder 1905 MANATEE LANE
New
For Sale
House
$320,000
3 bds 2 ba 1,825 sqft
1905 MANATEE LANE
4018 COPPERLEAF LANE placeholder 4018 COPPERLEAF LANE
New
For Sale
House
$318,830
4 bds 2 ba 1,840 sqft
4018 COPPERLEAF LANE
4014 COPPERLEAF LANE placeholder 4014 COPPERLEAF LANE
New
For Sale
House
$300,950
3 bds 2 ba 1,695 sqft
4014 COPPERLEAF LANE
313 DRUM LANE placeholder 313 DRUM LANE
-$1 (2025/12/22)
For Sale
House
$279,999
3 bds 2 ba 1,799 sqft
313 DRUM LANE
1447 KISSIMMEE WAY placeholder 1447 KISSIMMEE WAY
1 days
For Sale
House
$265,000
3 bds 2 ba 1,702 sqft
1447 KISSIMMEE WAY
455 CINNAMON DRIVE placeholder 455 CINNAMON DRIVE
2 days
For Sale
House
$281,000
4 bds 2 ba 1,836 sqft
455 CINNAMON DRIVE
359 CAMELLIA COURT placeholder 359 CAMELLIA COURT
+$3K (2025/12/20)
For Sale
House
$315,990
4 bds 3 ba 1,661 sqft
359 CAMELLIA COURT

The multiple listing information is provided by the Stellar MLS from a copyrighted compilation of listings. The compilation of listings and each individual listing are ©2025-present Stellar MLS. All Rights Reserved. The information provided is for consumers' personal, noncommercial use and may not be used for any purpose other than to identify prospective properties consumers may be interested in purchasing. All properties are subject to prior sale or withdrawal. All information provided is deemed reliable but is not guaranteed accurate, and should be independently verified. Listing courtesy of: LGI REALTY- FLORIDA, LLC