Contact
Tell us about your needs

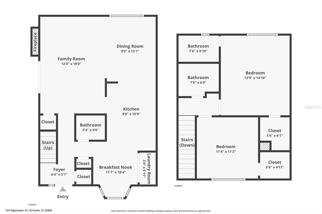
724 EDGEWATER DRIVE

Townhouse For Sale
$300,000

BTC: 3.47423277

ETH: 102.52904990

91 days
2 bds
2 ba
1,190 sqft
Est. Estimated sales range: $0 - $0
$0

Overview

One or more photo(s) has been virtually staged. **Seller may consider buyer concessions if made in an offer**Discover sophisticated urban living in this beautifully updated 2-bedroom, 2.5-bath STAND-ALONE CONDO in Edgewater Oaks—a rare find with NO SHARED WALLS, offering exceptional privacy and the FEEL OF A TRUE LUXURY TOWNHOUSE. Thoughtfully renovated with a complete FIRST-FLOOR AND EXTERIOR WALLS REMODEL (2025), this home blends modern style with timeless comfort in a QUIET, CENTRALLY LOCATED community. Step inside to an inviting open floor plan, where the Living, Dining, and Kitchen spaces flow effortlessly together—ideal for both everyday living and elegant entertaining. The main level features LUXURY VINYL PLANK flooring, FRESH interior paint, and a striking FIREPLACE clad in black hexagon ceramic tile, creating a bold focal point in the living area. A dedicated dining space offers the perfect setting for hosting guests or enjoying quiet meals at home. The FULLY RENOVATED KITCHEN is a showcase of contemporary design, featuring brand-new white SOFT-CLOSE cabinetry, QUARTZ COUNTERTOPS, a breakfast bar, a pantry, and a charming eat-in nook. The laundry closet, complete with washer and dryer, is conveniently tucked within the kitchen for effortless functionality. A stylish half bath and UNDER-STAIR STORAGE complete the first level. Upstairs, NEW CARPETING adds warmth and comfort to the bedroom level. The Primary Suite offers a peaceful retreat with a walk-in closet and private EN SUITE BATH, while the second bedroom, just steps from the second full bath, is ideal for guests, a home office, or a roommate. A standout feature of this home is its EXCLUSIVE COURTYARD, unique only to this unit, offering a private outdoor oasis perfect for morning coffee, evening gatherings, or container gardening. Additional updates include a NEWER AC (2020) and NEWER ROOF (2018), ensuring both comfort and peace of mind. Perfectly positioned NEAR COLLEGE PARK, this home places you moments from Orlando’s best boutiques, restaurants, cafés, and nightlife. Enjoy QUICK ACCESS to Downtown Orlando, AdventHealth, I-4, SR-408, and an array of shopping and recreational options—all while benefiting from a SERENE COMMUNITY with quiet, respectful neighbors. MODERN UPGRADES, a luxurious open layout, and unmatched privacy come together in this EXCEPTIONAL Edgewater Oaks residence—providing an exceptional living experience in a PEACEFUL, well-kept community that stands out as a HIDDEN GEM in Orlando.

Location

Facts and features

Type:
Residential
Parking:
Assigned
Year Built:
1983
Lot:
0.02 Acres
Heating:
Central
Price/sqft:
$252
Cooling:
Central Air
HOA:
$300
All facts and features
  • Flooring

    • Carpet

    • Luxury Vinyl

    • Tile

    Heating

    • Central

    Cooling

    • Central Air

    Appliances

    • Dishwasher

    • Dryer

    • Electric Water Heater

    • Microwave

    • Range

    • Refrigerator

    • Washer

    Other interior features

    • Ceiling Fan(s)

    • Eating Space In Kitchen

    • Living Room/Dining Room Combo

    • PrimaryBedroom Upstairs

    • Stone Counters

    • Thermostat

    • Walk-In Closet(s)

    • Window Treatments

    Bedrooms and bathrooms

    • Bedrooms: 2

    • Bathrooms: 1

    • Full bathrooms: 2

  • Parking

    • Assigned

    Property

    • Levels: Two

    • Exterior Features: Balcony / Courtyard / Irrigation System / Sliding Doors / Storage

    Lot

    • Lot: 0.02 Acres

    Other Property Information

    • Parcel Number: 232229242002010

    • Zoning: R-2B/T

  • Type and style

    • Property Type: Residential

    • Property Sub Type: Townhouse

  • Utility

    • Cable Available

    • Electricity Available

    • Public

    • Sewer Connected

    • Street Lights

    • Water Available

  • Other financial information

    • HOA: $300

    • HOA Frequency: Monthly

    • Annual tax amount: $3,779

  • Source details

    • MLS ID: O6346663

    Other facts

    • Construction Materials: Stucco / Wood Frame

    • Foundation Details: Slab

    • Fireplace Features: Living Room / Wood Burning

    • Laundry Features: In Kitchen / Inside / Laundry Closet

    • Patio And Porch Features: Porch / Side Porch

    • Window Features: Blinds

    • Direction Faces: East

    • Other Structures: Storage

    • Fireplace: Yes

    • Living Area: 1190

    • Water Source: Public

    • Subdivision Name: EDGEWATER OAKS

Similar Homes

1402 S LEE AVENUE placeholder 1402 S LEE AVENUE
New
For Sale
House
$260,000
3 bds 1 ba 1,108 sqft
1402 S LEE AVENUE
113 S GLENWOOD AVENUE placeholder 113 S GLENWOOD AVENUE
1 days
For Sale
House
$310,000
2 bds 1 ba 852 sqft
113 S GLENWOOD AVENUE
917 MACK AVENUE placeholder 917 MACK AVENUE
2 days
For Sale
Multi-family
$275,000
5 bds 2,400 sqft
917 MACK AVENUE
1800 PALM LANE placeholder 1800 PALM LANE
3 days
For Sale
House
$389,000
3 bds 1 ba 1,153 sqft
1800 PALM LANE
907 HILLARY COURT UNIT 5 placeholder 907 HILLARY COURT UNIT 5
5 days
For Sale
Condo/Co-op
$340,000
2 bds 2 ba 1,262 sqft
907 HILLARY COURT UNIT 5
1242 23RD STREET placeholder 1242 23RD STREET
6 days
For Sale
Multi-family
$300,000
6 bds 1,926 sqft
1242 23RD STREET
851 MILES AVENUE UNIT 13 placeholder 851 MILES AVENUE UNIT 13
6 days
For Sale
Condo/Co-op
$219,000
2 bds 1 ba 808 sqft
851 MILES AVENUE UNIT 13
4177 N ORANGE BLOSSOM TRAIL UNIT 510 placeholder 4177 N ORANGE BLOSSOM TRAIL UNIT 510
8 days
For Sale
Condo/Co-op
$369,900
3 bds 2 ba 1,822 sqft
4177 N ORANGE BLOSSOM TRAIL UNIT 510

The multiple listing information is provided by the Stellar MLS from a copyrighted compilation of listings. The compilation of listings and each individual listing are ©2025-present Stellar MLS. All Rights Reserved. The information provided is for consumers' personal, noncommercial use and may not be used for any purpose other than to identify prospective properties consumers may be interested in purchasing. All properties are subject to prior sale or withdrawal. All information provided is deemed reliable but is not guaranteed accurate, and should be independently verified. Listing courtesy of: WEMERT GROUP REALTY LLC