Contact
Tell us about your needs

9228 CARDINAL MEADOW TRAIL

Townhouse Active With Contract
$425,000

BTC: 6.07142857

ETH: 206.81265207

58 days
4 bds
3 ba
1,504 sqft
Est. Estimated sales range: $0 - $0
$0

Overview

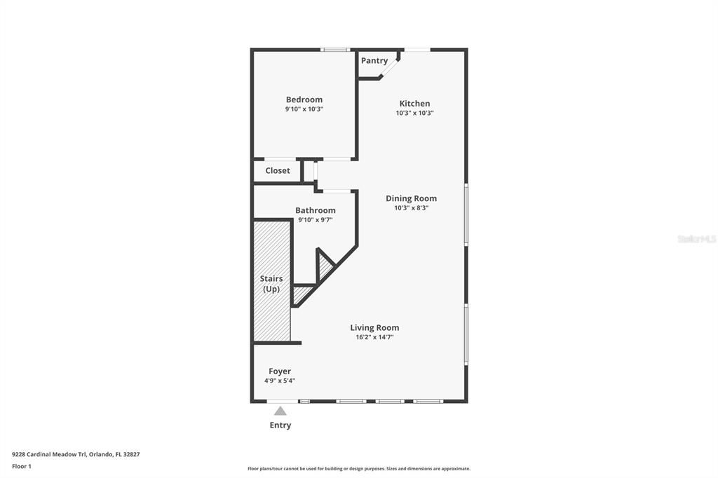
This 4-bedroom, 3-bathroom townhome is in the desirable Northlake Park community with exclusive access to Lake Nona. Positioned on a corner lot, this home offers a pond view and a side yard with lush landscaping. The open floor plan includes a spacious living and dining area, a galley-style kitchen with Corian countertops, and Whirlpool stainless steel appliances. The first floor features a bedroom with a full bath, perfect for guests or as a home office. The downstairs is finished with wood laminate plank flooring and ceramic tile. Upstairs, the primary suite boasts an ensuite bath with a double vanity, garden tub, and separate shower. Two additional bedrooms, another full bath, a laundry room, and a small landing with a built-in desk at the top of the stairs complete the upper level. Neutral tones throughout the home are complemented by Barn Wood laminate flooring and carpet upstairs. The home also has a newer hot water heater, Whirlpool stainless steel appliances, and faux wood blinds. Northlake Park residents enjoy fantastic amenities including the YMCA, an Olympic pool, tennis and basketball courts, walking trails, playgrounds, and a dog park. Conveniently located with access to top-rated schools in Lake Nona and minutes from the 417 and 528 highways, this home offers comfort and convenience in a prime location. Schedule your showing today!

Location

Facts and features

Type:
Residential
Parking:
No Data
Year Built:
2006
Lot:
0.09 Acres
Heating:
Central / Heat Pump
Price/sqft:
$283
Cooling:
Central Air
HOA:
$890
All facts and features
  • Flooring

    • Carpet

    • Ceramic Tile

    • Laminate

    Heating

    • Central

    • Heat Pump

    Cooling

    • Central Air

    Appliances

    • Dishwasher

    • Disposal

    • Electric Water Heater

    • Microwave

    • Range

    • Refrigerator

    Other interior features

    • Ceiling Fan(s)

    • Living Room/Dining Room Combo

    • Open Floorplan

    • PrimaryBedroom Upstairs

    • Solid Surface Counters

    Bedrooms and bathrooms

    • Bedrooms: 4

    • Full bathrooms: 3

  • Property

    • Levels: Two

    • Exterior Features: Irrigation System / Rain Gutters / Sidewalk

    Lot

    • Lot: 0.09 Acres

    Other Property Information

    • Parcel Number: 062431511305430

    • Zoning: PD

  • Type and style

    • Property Type: Residential

    • Property Sub Type: Townhouse

  • Utility

    • BB/HS Internet Available

    • Cable Available

    • Electricity Available

    • Public

    • Underground Utilities

    • Water Available

  • Other financial information

    • HOA: $890

    • HOA Frequency: Quarterly

    • Annual tax amount: $3,752

  • Source details

    • MLS ID: O6348636

    Other facts

    • Construction Materials: Block / Stucco

    • Foundation Details: Slab

    • Laundry Features: Laundry Closet

    • Lot Features: Landscaped

    • Patio And Porch Features: Front Porch / Patio

    • Window Features: Blinds / Drapes / Rods / Window Treatments

    • Direction Faces: Northeast

    • Architectural Style: Contemporary

    • Water Body Name: LAKE NONA

    • Garage Spaces: 2

    • Attached Garage: Yes

    • Garage: Yes

    • Living Area: 1504

    • Water Source: Public

    • Subdivision Name: NORTHLAKE PARK AT LAKE NONA (MORNINGSIDE)

Similar Homes

10250 HADLEY STREET placeholder 10250 HADLEY STREET
New
Active With Contract
Townhouse
$468,990
4 bds 3 ba 1,807 sqft
10250 HADLEY STREET
9786 LAKE DISTRICT LANE placeholder 9786 LAKE DISTRICT LANE
3 days
Active With Contract
House
$522,000
4 bds 2 ba 2,595 sqft
9786 LAKE DISTRICT LANE
12010 LORENZA LANE placeholder 12010 LORENZA LANE
4 days
Active With Contract
Townhouse
$465,000
4 bds 3 ba 1,830 sqft
12010 LORENZA LANE
7037 ROSY SKY AVENUE placeholder 7037 ROSY SKY AVENUE
+$2K (2025/12/12)
Active With Contract
Townhouse
$419,490
3 bds 2 ba 1,611 sqft
7037 ROSY SKY AVENUE
7465 IVY TENDRIL AVENUE placeholder 7465 IVY TENDRIL AVENUE
+$1K (2025/12/22)
Active With Contract
House
$443,490
3 bds 2 ba 1,647 sqft
7465 IVY TENDRIL AVENUE
7358 SUMMER IVY ALLEY placeholder 7358 SUMMER IVY ALLEY
-$17K (2025/12/02)
Active With Contract
House
$460,490
3 bds 2 ba 1,782 sqft
7358 SUMMER IVY ALLEY
11288 LISTENING DRIVE placeholder 11288 LISTENING DRIVE
31 days
Active With Contract
House
$519,000
4 bds 3 ba 2,496 sqft
11288 LISTENING DRIVE
7369 IVY TENDRIL AVENUE placeholder 7369 IVY TENDRIL AVENUE
-$9K (2025/12/22)
Active With Contract
House
$447,990
3 bds 2 ba 1,647 sqft
7369 IVY TENDRIL AVENUE

The multiple listing information is provided by the Stellar MLS from a copyrighted compilation of listings. The compilation of listings and each individual listing are ©2026-present Stellar MLS. All Rights Reserved. The information provided is for consumers' personal, noncommercial use and may not be used for any purpose other than to identify prospective properties consumers may be interested in purchasing. All properties are subject to prior sale or withdrawal. All information provided is deemed reliable but is not guaranteed accurate, and should be independently verified. Listing courtesy of: EXP REALTY LLC