Contacto
Cuéntenos sobre sus necesidades

4984 TOPSAIL DRIVE

Lotes / Tierras En Venta
$389,000

BTC: 5.72058824

ETH: 3,890.00000000

88 días
0 room(s)
Est. Rango de ventas estimado: $0 - $0
$0

Visión general

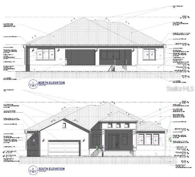
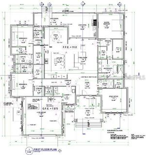
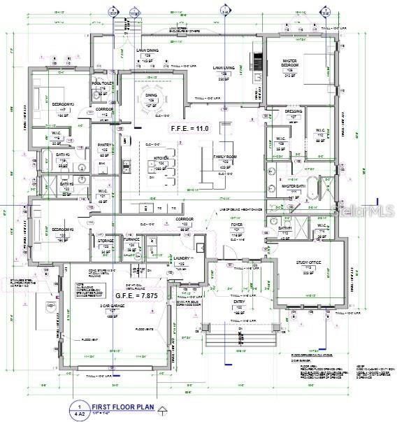
Offered AS-IS, this partially completed residential project presents a rare opportunity to build a custom home in the highly desirable Blackburn Estates community. Construction to date includes completed footers and stem walls filled with soil. The sale conveys active permits, approved building plans, a survey, drainage plan, and the full permit set, along with remaining building materials—most notably a complete package of high-end, impact-resistant hurricane-rated windows and doors. Buyers may choose to continue with the current builder or engage a builder of their choice, with all remaining construction to be completed at the buyer’s expense. Surrounded by multi-million-dollar homes and located just minutes from some of the area’s most beautiful beaches, the property also offers convenient access to the Intracoastal Waterway, ideal for kayaking, fishing, and waterfront recreation. An exceptional opportunity to complete a custom residence in a premier location—projects of this caliber in Blackburn Estates are seldom available.

Ubicación

Hechos y características

Tipo:
Land
Estacionamiento:
Sin datos
Año de construcción:
Sin datos
Lote:
0.26 Hectáreas
Calefacción:
Sin datos
precio por sq. medidor:
Sin datos
Enfriamiento:
Sin datos
HOA:
$775
Más hechos y características
  • Lote

    • Lote: 0.26 Hectáreas

    Otra Información de Propiedad

    • Número de Parcela: 0167090033

    • Zonificación: RSF1

  • Tipo y estilo

    • Tipo de propiedad: Land

  • Utilidad

    • Electricity Available

    • Public

    • Sewer Connected

    • Sprinkler Meter

    • Water Connected

  • Otra información financiera

    • HOA: $775

    • Frecuencia HOA: Quarterly

    • Importe anual de impuestos: $2,849

  • Detalles de la fuente

    • MLS ID: A4677531

    Otros hechos

    • Fuente de agua: Public

    • Tamaño de la parcela: 119 x 93

    • Nombre de subdivisión: BLACKBURN RDG ADD

Casas similares

200 THE ESPLANADE N UNIT C14 placeholder 200 THE ESPLANADE N UNIT C14
Nuevo
En Venta
Condo / Coop
$399,000
2 camas 2 baños 910 sqft
200 THE ESPLANADE N UNIT C14
15212 CUZCORRO COURT placeholder 15212 CUZCORRO COURT
3 días
En Venta
Adosados
$299,000
3 camas 2 baños 1,373 sqft
15212 CUZCORRO COURT
2600 PALMETTO STREET placeholder 2600 PALMETTO STREET
4 días
En Venta
Casa
$395,000
2 camas 2 baños 1,540 sqft
2600 PALMETTO STREET
17812 STAR RUBY PLACE placeholder 17812 STAR RUBY PLACE
5 días
En Venta
Casa
$399,990
3 camas 2 baños 1,579 sqft
17812 STAR RUBY PLACE
17872 STAR RUBY PLACE placeholder 17872 STAR RUBY PLACE
5 días
En Venta
Casa
$419,990
2 camas 2 baños 1,579 sqft
17872 STAR RUBY PLACE
15174 DYNASTY TRAIL placeholder 15174 DYNASTY TRAIL
6 días
En Venta
Adosados
$457,741
4 camas 2 baños 1,969 sqft
15174 DYNASTY TRAIL
5817 BISCOTTI STREET placeholder 5817 BISCOTTI STREET
6 días
En Venta
Adosados
$277,400
3 camas 2 baños 1,404 sqft
5817 BISCOTTI STREET
15202 DYNASTY TRAIL placeholder 15202 DYNASTY TRAIL
6 días
En Venta
Adosados
$456,691
4 camas 2 baños 1,969 sqft
15202 DYNASTY TRAIL

The multiple listing information is provided by the Stellar MLS from a copyrighted compilation of listings. The compilation of listings and each individual listing are ©2026-present Stellar MLS. All Rights Reserved. The information provided is for consumers' personal, noncommercial use and may not be used for any purpose other than to identify prospective properties consumers may be interested in purchasing. All properties are subject to prior sale or withdrawal. All information provided is deemed reliable but is not guaranteed accurate, and should be independently verified. Listing courtesy of: COLDWELL BANKER REALTY