Contacto
Cuéntenos sobre sus necesidades

100 Lakeshore, North Palm Beach, FL 33408

Condo / Coop Activo con contrato
$1,750,000

BTC: 58.33333333

ETH: 875.00000000

77 días
Frente al mar
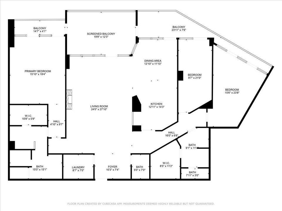
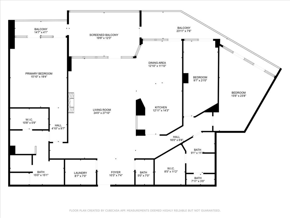
3 camas
2 baños
2,645 sqft
Est. Rango de ventas estimado: $0 - $0
$0

Visión general

Introducing residence 1757 at Lake Point Tower! This distinctive 3-bedroom residence will be fully completed and move-in ready by mid-September. Thoughtfully renovated with stunning wood floors throughout, an open gourmet kitchen, and a luxurious master suite boasting a massive walk-in shower and private sauna. Additional highlights include custom built-ins, Sonos sound system, and expansive living and dining spaces designed for comfort and entertaining. Enjoy breathtaking Intracoastal and ocean views from every room, with spacious covered terraces ideal for outdoor living. Lake Point Tower offers 24-hour concierge, a brand-new fitness center, under-building garage parking, and a just-finished resort-style pool deck. On-site listing agent makes this home easy to show!

Ubicación

Hechos y características

Tipo:
Residential
Estacionamiento:
Assigned / Garage - Attached / Garage - Building
Año de construcción:
1982
Lote:
Sin datos
Calefacción:
Electric / Heat Pump-Reverse
precio por sq. medidor:
$662
Enfriamiento:
Central Individual / Electric
HOA:
Sin datos
Más hechos y características
  • Piso

    • Ceramic Tile

    • Wood Floor

    Calefacción

    • Electric

    • Heat Pump-Reverse

    Enfriamiento

    • Central Individual

    • Electric

    Accesorios

    • Cooktop

    • Dishwasher

    • Disposal

    • Dryer

    • Fire Alarm

    • Freezer

    • Ice Maker

    • Microwave

    • Refrigerator

    • Smoke Detector

    • Storm Shutters

    • Wall Oven

    • Washer

    Otras características interiores

    • Bar

    • Built-in Shelves

    • Closet Cabinets

    • Decorative Fireplace

    • Fire Sprinkler

    • Kitchen Island

    • Laundry Tub

    • Pantry

    • Split Bedroom

    • Walk-in Closet

    Dormitorios y baños

    • Dormitorios: 3

    • Baños: 1

    • Baños completos: 2

  • Estacionamiento

    • Assigned

    • Garage - Attached

    • Garage - Building

    Propiedad

    • Características Exteriores: Covered Balcony / Wrap-Around Balcony

    Otra Información de Propiedad

    • Número de Parcela: 68434209360001757

    • Zonificación: RES

  • Tipo y estilo

    • Tipo de propiedad: Residential

    • Subtipo de propiedad: Condominium

  • Utilidad

    • Cable

    • Electric

  • Otra información financiera

    • Importe anual de impuestos: $17,202

  • Detalles de la fuente

    • MLS ID: RX-11114615

    Otros hechos

    • Materiales de construcción: Concrete

    • Características de lavandería: Washer and Dryer

    • Características del lote: East of US-1

    • Características del patio y el porche: Balcony

    • Características de la piscina: Heated / Inground

    • Caras de dirección: PGA BLVD TO US HIGHWWAY 1SOUTH OF US 1 ...LEFT TO OLD PORT COVE GATEHOUSE.100 LAKESHORE DRIVE IS LOCATED AT THE END OF THE ROAD.....

    • Frente al mar: Si

    • Espacios de garaje: 1

    • Garaje: Si

    • Salón: 2645

    • Nombre de subdivisión: OLD PORT COVE LAKE POINT TOWER CONDO

Casas similares

2495 Monaco, Palm Beach Gardens, FL 33410 placeholder 2495 Monaco, Palm Beach Gardens, FL 33410
17 días
Activo con contrato
Casa
$1,225,000
4 camas 2 baños 2,124 sqft
2495 Monaco, Palm Beach Gardens, FL 33410
2512 Oak, Palm Beach Gardens, FL 33410 placeholder 2512 Oak, Palm Beach Gardens, FL 33410
19 días
Activo con contrato
Casa
$1,250,000
5 camas 4 baños 3,226 sqft
2512 Oak, Palm Beach Gardens, FL 33410
513 Oak Harbour, Juno Beach, FL 33408 placeholder 513 Oak Harbour, Juno Beach, FL 33408
-$249K (2025/10/10)
Activo con contrato
Condo / Coop
$1,250,000
3 camas 2 baños 1,606 sqft
513 Oak Harbour, Juno Beach, FL 33408
439 Lighthouse, North Palm Beach, FL 33408 placeholder 439 Lighthouse, North Palm Beach, FL 33408
39 días
Activo con contrato
Casa
$1,495,000
4 camas 3 baños 2,121 sqft
439 Lighthouse, North Palm Beach, FL 33408
1133 Marine, North Palm Beach, FL 33408 placeholder 1133 Marine, North Palm Beach, FL 33408
48 días
Activo con contrato
Condo / Coop
$1,250,000
3 camas 3 baños 2,772 sqft
1133 Marine, North Palm Beach, FL 33408
1211 Bimini, Singer Island, FL 33404 placeholder 1211 Bimini, Singer Island, FL 33404
-$51K (2025/10/15)
Activo con contrato
Casa
$1,299,000
4 camas 3 baños 2,252 sqft
1211 Bimini, Singer Island, FL 33404
808 Country Club, North Palm Beach, FL 33408 placeholder 808 Country Club, North Palm Beach, FL 33408
-$145K (2025/11/02)
Activo con contrato
Casa
$1,750,000
4 camas 2 baños 2,035 sqft
808 Country Club, North Palm Beach, FL 33408

The multiple listing information is provided by the Beaches MLS from a copyrighted compilation of listings. The compilation of listings and each individual listing are ©2025-present Beaches MLS. All Rights Reserved. The information provided is for consumers' personal, noncommercial use and may not be used for any purpose other than to identify prospective properties consumers may be interested in purchasing. All properties are subject to prior sale or withdrawal. All information provided is deemed reliable but is not guaranteed accurate, and should be independently verified. Listing courtesy of: RE/MAX Ocean Properties