Contacto
Cuéntenos sobre sus necesidades

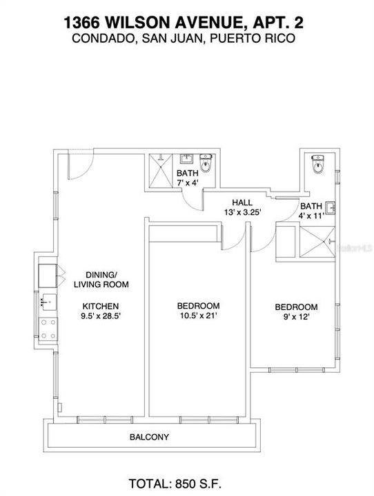
1366 WILSON AVE UNIT 2

Condo / Coop En Renta
$2,850

BTC: 0.04191176

ETH: 28.50000000

/mo
2 días
2 camas
2 baños
850 sqft
Est. Rango de ventas estimado: $0 - $0
$0

Visión general

One or more photo(s) has been virtually staged. This spacious second-floor residence offers a bright and open layout with 2 bedrooms and 2 bathrooms with approximately 850 square feet of light and airy living space. Looking over the Condado skyline the apartment features a private Juliet balcony that spans from the bedroom into the main living area, creating a seamless indoor outdoor ambiance. This unit includes one enclosed garage parking space for added convenience and security. Thoughtfully designed with a brighter, open feel, the residence is delivered fully furnished and turnkey. Modern finishes, all new appliances, imported Porcelanosa tile, and details throughout enhance both functionality and style, while the elevated position allows for an increase in natural light. These units are delivered furnished, select images are enhanced using AI to showcase the full potential of the space and inspire how you can personalize it to reflect your own style and vision. Location Perfectly positioned in the heart of vibrant Condado, this residence offers an effortless lifestyle just moments from the beach, renowned restaurants, cafes, grocery stores, and premier entertainment. With quick access to major highways and only a 10 minute drive to the airport, the location seamlessly blends convenience with one of San Juan’s most desirable coastal settings. As part of an exclusive six-unit collection, residents enjoy access to a beautifully maintained shared courtyard, offering a quiet and intimate atmosphere in the heart of the city—where the energy of urban living meets the privacy and serenity of a secluded oasis.

Ubicación

Hechos y características

Tipo:
Residential Lease
Estacionamiento:
Sin datos
Año de construcción:
1950
Lote:
0.20 Hectáreas
Calefacción:
None
precio por sq. medidor:
$3
Enfriamiento:
Mini-Split Unit(s)
HOA:
Sin datos
Más hechos y características
  • Calefacción

    • None

    Enfriamiento

    • Mini-Split Unit(s)

    Accesorios

    • Convection Oven

    • Refrigerator

    Otras características interiores

    • Ninguno

    Dormitorios y baños

    • Dormitorios: 2

    • Baños completos: 2

  • Propiedad

    • Pisos: One

    Lote

    • Lote: 0.20 Hectáreas

    Otra Información de Propiedad

    • Número de Parcela: MULTIUNIT

  • Tipo y estilo

    • Tipo de propiedad: Residential Lease

    • Subtipo de propiedad: Condominium

  • Detalles de la fuente

    • MLS ID: PR9120406

    Otros hechos

    • Características de lavandería: Common Area

    • Espacios de garaje: 1

    • Garaje adjunto: Si

    • Garaje: Si

    • Salón: 850

Casas similares

176 SAN JORGE UNIT 3A placeholder 176 SAN JORGE UNIT 3A
Nuevo
En Renta
Condo / Coop
$2,900 /mo
3 camas 2 baños 1,539 sqft
176 SAN JORGE UNIT 3A
1366 WILSON AVE UNIT 3 placeholder 1366 WILSON AVE UNIT 3
2 días
En Renta
Condo / Coop
$2,900 /mo
2 camas 2 baños 819 sqft
1366 WILSON AVE UNIT 3
1366 WILSON AVE UNIT 6 placeholder 1366 WILSON AVE UNIT 6
2 días
En Renta
Condo / Coop
$2,700 /mo
2 camas 2 baños 634 sqft
1366 WILSON AVE UNIT 6
1366 WILSON AVE UNIT 1 placeholder 1366 WILSON AVE UNIT 1
2 días
En Renta
Condo / Coop
$2,950 /mo
2 camas 2 baños 819 sqft
1366 WILSON AVE UNIT 1
T-302 BAYSIDE COVE UNIT 302 placeholder T-302 BAYSIDE COVE UNIT 302
4 días
En Renta
Condo / Coop
$2,000 /mo
3 camas 2 baños 1,288 sqft
T-302 BAYSIDE COVE UNIT 302
1304 WILSON AVENUE UNIT 501 placeholder 1304 WILSON AVENUE UNIT 501
4 días
En Renta
Condo / Coop
$2,500 /mo
3 camas 2 baños 1,120 sqft
1304 WILSON AVENUE UNIT 501
56 CALLE F KRUG CONDADO UNIT 6 placeholder 56 CALLE F KRUG CONDADO UNIT 6
4 días
En Renta
Condo / Coop
$2,900 /mo
2 camas 1 baños 754 sqft
56 CALLE F KRUG CONDADO UNIT 6
56 CALLE F KRUG CONDADO UNIT PH-2 placeholder 56 CALLE F KRUG CONDADO UNIT PH-2
4 días
En Renta
Ático
$2,800 /mo
1 camas 1 baños 750 sqft
56 CALLE F KRUG CONDADO UNIT PH-2

The multiple listing information is provided by the Stellar MLS from a copyrighted compilation of listings. The compilation of listings and each individual listing are ©2026-present Stellar MLS. All Rights Reserved. The information provided is for consumers' personal, noncommercial use and may not be used for any purpose other than to identify prospective properties consumers may be interested in purchasing. All properties are subject to prior sale or withdrawal. All information provided is deemed reliable but is not guaranteed accurate, and should be independently verified. Listing courtesy of: CHRISTIE'S INTERNATIONAL REAL ESTATE PUERTO RICO