Contacto
Cuéntenos sobre sus necesidades

2200 Pga, Palm Beach Gardens, FL 33408

Condo / Coop Activo con contrato
$4,600,000

BTC: 67.99704361

ETH: 2,352.94117647

7 días
Frente al mar
3 camas
3 baños
3,340 sqft
Est. Rango de ventas estimado: $0 - $0
$0

Visión general

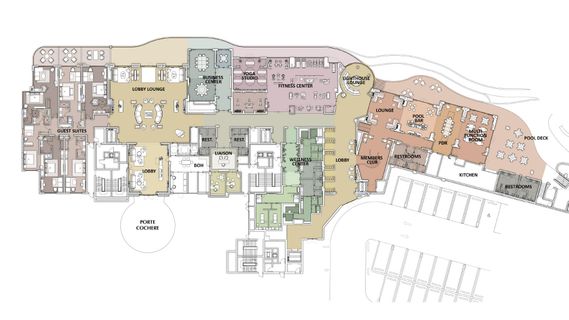
Move-In Early Next Year, construction is ahead of schedule at The Ritz-Carlton Residences, Palm Beach Gardens. For a limited time, purchasers can make finish selections to customize their home. This 14-acre oasis combines legendary on-site hospitality and management by The Ritz-Carlton. A resort lifestyle directly on the Intracoastal Waterway, moments from premier shopping, dining, pristine beaches & top golf courses. 106 residences, 29-slip private marina, options include 3 to 5 bedroom flow-through layouts, all with floor-to-ceiling hurricane windows & expansive terraces overlooking the waterfront. 2 assigned garage spaces. Amenities:24-hr guard gate, concierge, food & beverage service, valet, fitness center, spa, business center, resort pool with lap lane, cabanas, guest suites & more

Ubicación

Hechos y características

Tipo:
Residential
Estacionamiento:
2+ Spaces / Assigned / Covered / Garage - Building / Guest / Under Building
Año de construcción:
2026
Lote:
Sin datos
Calefacción:
Central / Electric / Zoned
precio por sq. medidor:
$1,377
Enfriamiento:
Central / Electric / Zoned
HOA:
Sin datos
Más hechos y características
  • Piso

    • Tile

    Calefacción

    • Central

    • Electric

    • Zoned

    Enfriamiento

    • Central

    • Electric

    • Zoned

    Accesorios

    • Cooktop

    • Dishwasher

    • Disposal

    • Dryer

    • Fire Alarm

    • Freezer

    • Microwave

    • Range - Gas

    • Refrigerator

    • Smoke Detector

    • Wall Oven

    • Washer

    • Washer/Dryer Hookup

    • Water Heater - Elec

    Otras características interiores

    • Bar

    • Elevator

    • Entry Lvl Lvng Area

    • Fire Sprinkler

    • Foyer

    • Kitchen Island

    • Laundry Tub

    • Pantry

    • Wet Bar

    Dormitorios y baños

    • Dormitorios: 3

    • Baños: 1

    • Baños completos: 3

  • Estacionamiento

    • 2+ Spaces

    • Assigned

    • Covered

    • Garage - Building

    • Guest

    • Under Building

    Propiedad

    • Características Exteriores: Auto Sprinkler / Covered Balcony

    Otra Información de Propiedad

    • Número de Parcela: 52434205420180309

    • Zonificación: PUD

  • Tipo y estilo

    • Tipo de propiedad: Residential

    • Subtipo de propiedad: Condominium

  • Utilidad

    • Cable

    • Electric

    • Gas Natural

    • Public Sewer

    • Public Water

    • Underground

  • Detalles de la fuente

    • MLS ID: RX-11049779

    Otros hechos

    • Materiales de construcción: Concrete / Elevated / Stucco

    • Características de lavandería: Washer and Dryer

    • Características del lote: 1 to < 2 Acres / 10 to <25 Acres / Paved Road / Private Road / Sidewalks / Treed Lot

    • Características del patio y el porche: Balcony

    • Caras de dirección: On-Site Sales Gallery: 11297 Ellison Wilson Road, Palm Beach Gardens, FL 33408.

    • Frente al mar: Si

    • Espacios de garaje: 2

    • Garaje: Si

    • Salón: 3340

    • Tamaño de la parcela: Approx. 1040' X 460'

    • Nombre de subdivisión: Ritz Carlton Residences, Palm Beach Gardens

Casas similares

1011 Us Highway 1, Juno Beach, FL 33408 placeholder 1011 Us Highway 1, Juno Beach, FL 33408
1 días
Activo con contrato
Condo / Coop
$3,400,000
3 camas 4 baños 3,450 sqft
1011 Us Highway 1, Juno Beach, FL 33408
1011 Us Highway 1, Juno Beach, FL 33408 placeholder 1011 Us Highway 1, Juno Beach, FL 33408
2 días
Activo con contrato
Condo / Coop
$4,140,000
3 camas 4 baños 3,450 sqft
1011 Us Highway 1, Juno Beach, FL 33408
2200 Pga, Palm Beach Gardens, FL 33410 placeholder 2200 Pga, Palm Beach Gardens, FL 33410
5 días
Activo con contrato
Condo / Coop
$4,831,400
3 camas 4 baños 3,332 sqft
2200 Pga, Palm Beach Gardens, FL 33410
1011 US Highway One # B406, Juno Beach FL 33408 placeholder 1011 US Highway One # B406, Juno Beach FL 33408
40 días
Activo con contrato
Condo / Coop
$4,475,000
3 camas 4 baños
1011 US Highway One # B406, Juno Beach FL 33408
1011 US Highway One # B401, Juno Beach FL 33408 placeholder 1011 US Highway One # B401, Juno Beach FL 33408
42 días
Activo con contrato
Condo / Coop
$4,140,000
3 camas 4 baños 3,450 sqft
1011 US Highway One # B401, Juno Beach FL 33408
13567 Treasure Cove, North Palm Beach, FL 33408 placeholder 13567 Treasure Cove, North Palm Beach, FL 33408
60 días
Activo con contrato
Condo / Coop
$3,349,000
3 camas 2 baños 2,493 sqft
13567 Treasure Cove, North Palm Beach, FL 33408
12861 Inshore, Palm Beach Gardens, FL 33410 placeholder 12861 Inshore, Palm Beach Gardens, FL 33410
-$100K (2025/11/18)
Activo con contrato
Casa
$4,395,000
6 camas 4 baños 4,271 sqft
12861 Inshore, Palm Beach Gardens, FL 33410
320 Charroux, Palm Beach Gardens, FL 33410 placeholder 320 Charroux, Palm Beach Gardens, FL 33410
99 días
Activo con contrato
Casa
$3,690,000
3 camas 3 baños 3,746 sqft
320 Charroux, Palm Beach Gardens, FL 33410

The multiple listing information is provided by the Beaches MLS from a copyrighted compilation of listings. The compilation of listings and each individual listing are ©2026-present Beaches MLS. All Rights Reserved. The information provided is for consumers' personal, noncommercial use and may not be used for any purpose other than to identify prospective properties consumers may be interested in purchasing. All properties are subject to prior sale or withdrawal. All information provided is deemed reliable but is not guaranteed accurate, and should be independently verified. Listing courtesy of: Douglas Elliman (Jupiter)