Contacto
Cuéntenos sobre sus necesidades

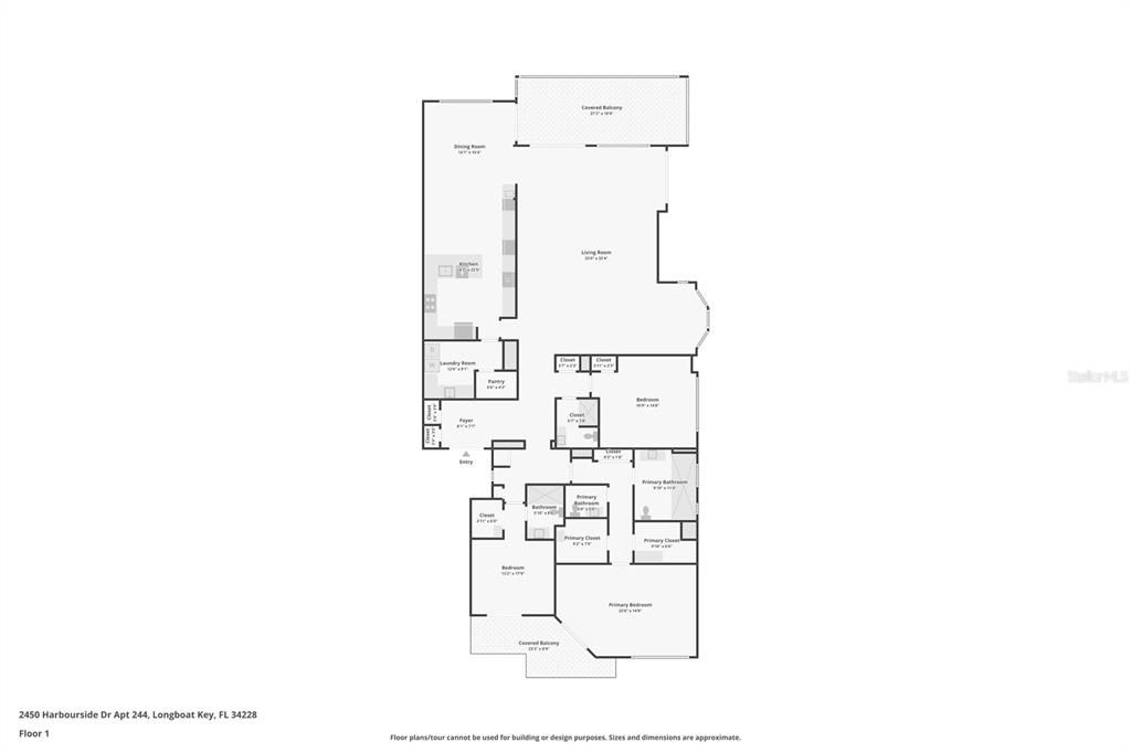
2450 HARBOURSIDE DRIVE UNIT 244

Condo / Coop En Venta
$2,450,000

BTC: 35.00000000

ETH: 24,500.00000000

3 días
Frente al mar
3 camas
3 baños
3,083 sqft
Est. Rango de ventas estimado: $0 - $0
$0

Visión general

Welcome to Marina Bay – the premier condominium within the gated Bay Isles Community on Longboat Key. This exceptional corner residence spans 3,578 sq ft of sunlit, sophisticated living, and shares it fourth floor lobby with only one other unit. The large, updated kitchen/dining room features extra-large windows allowing for an unobstructed view of Sarasota Bay. Exquisite floor-to-ceiling windows, in the oversized living room, frame sweeping panoramic vistas of Sarasota Bay and downtown Sarasota, while the unusually large balcony provides the perfect setting for morning coffee, evening relaxation, and observing abundant bird and marine life. A second, west-facing balcony delivers spectacular Gulf sunsets, offering the rare pleasure of both sunrise and sunset living. Marina Bay is the epitome of resort-style living, with a heated pool and spa, newly renovated tennis and pickleball courts, and well-appointed fitness room. Head to the adjacent marina or around the manicured Longboat Key Club Harbourside Golf Course. Ideally situated, this residence is in close proximity to Publix, CVS, Chase Bank, and local shops. Whether as a refined full-time residence or an elevated part-time retreat, this rare offering delivers unmatched luxury, convenience, and island living. Key Features include: Corner-end unit with 3 bedrooms and 3 ½ newly renovated baths, A walk-in double shower in main suite, New floor tile on oversized screened balcony, bathrooms, and main suite floors, Equipped with storm shutters, and access to private beach for Bay Isles residents only.

Ubicación

Hechos y características

Tipo:
Residential
Estacionamiento:
Covered / Electric Vehicle Charging Station(s)
Año de construcción:
1990
Lote:
7.40 Hectáreas
Calefacción:
Electric
precio por sq. medidor:
$795
Enfriamiento:
Central Air
HOA:
Sin datos
Más hechos y características
  • Piso

    • Tile

    Calefacción

    • Electric

    Enfriamiento

    • Central Air

    Accesorios

    • Built-In Oven

    • Dishwasher

    • Disposal

    • Dryer

    • Electric Water Heater

    • Washer

    • Wine Refrigerator

    Otras características interiores

    • Built-in Features

    • Ceiling Fan(s)

    • Eating Space In Kitchen

    • High Ceilings

    • Open Floorplan

    • Primary Bedroom Main Floor

    • Stone Counters

    • Thermostat

    • Walk-In Closet(s)

    • Wet Bar

    Dormitorios y baños

    • Dormitorios: 3

    • Baños: 1

    • Baños completos: 3

  • Estacionamiento

    • Covered

    • Electric Vehicle Charging Station(s)

    Propiedad

    • Pisos: One

    • Características Exteriores: Balcony / Hurricane Shutters / Irrigation System / Lighting / Sidewalk / Sliding Doors / Storage / Tennis Court(s)

    Lote

    • Lote: 7.40 Hectáreas

    Otra Información de Propiedad

    • Número de Parcela: 0007071036

    • Zonificación: MUC1

  • Tipo y estilo

    • Tipo de propiedad: Residential

    • Subtipo de propiedad: Condominium

  • Utilidad

    • Electricity Connected

    • Public

    • Sewer Connected

    • Street Lights

    • Underground Utilities

    • Water Connected

  • Otra información financiera

    • Frecuencia HOA: Annually

    • Importe anual de impuestos: $20,065

  • Detalles de la fuente

    • MLS ID: TB8491404

    Otros hechos

    • Materiales de construcción: Concrete

    • Detalles de la fundación: Pillar/Post/Pier

    • Características de la chimenea: Electric / Insert

    • Características de lavandería: Inside / Laundry Room

    • Características del patio y el porche: Covered / Deck / Screened / Wrap Around

    • Características de la ventana: Shutters

    • Caras de dirección: West

    • Frente al mar: Si

    • Hogar: Si

    • Nombre del cuerpo de agua: SARASTOA BAY

    • Espacios de garaje: 1

    • Garaje adjunto: Si

    • Garaje: Si

    • Salón: 3083

    • Fuente de agua: Public

    • Nombre de subdivisión: MARINA BAY

Casas similares

1211 GULF OF MEXICO DRIVE UNIT 709 placeholder 1211 GULF OF MEXICO DRIVE UNIT 709
Nuevo
En Venta
Condo / Coop
$1,749,000
2 camas 2 baños 1,827 sqft
1211 GULF OF MEXICO DRIVE UNIT 709
561 BIRDIE LANE placeholder 561 BIRDIE LANE
4 días
En Venta
Casa
$2,195,000
3 camas 3 baños 2,256 sqft
561 BIRDIE LANE
1915 HARBOUR LINKS CIRCLE UNIT 6 placeholder 1915 HARBOUR LINKS CIRCLE UNIT 6
4 días
En Venta
Condo / Coop
$1,950,000
3 camas 3 baños 2,476 sqft
1915 HARBOUR LINKS CIRCLE UNIT 6
531 WEDGE LANE placeholder 531 WEDGE LANE
4 días
En Venta
Casa
$2,599,999
4 camas 3 baños 2,751 sqft
531 WEDGE LANE
455 LONGBOAT CLUB ROAD UNIT 402 placeholder 455 LONGBOAT CLUB ROAD UNIT 402
5 días
En Venta
Condo / Coop
$2,195,000
3 camas 3 baños 2,410 sqft
455 LONGBOAT CLUB ROAD UNIT 402
3610 BAYOU CIRCLE placeholder 3610 BAYOU CIRCLE
6 días
En Venta
Casa
$2,400,000
3 camas 3 baños 3,192 sqft
3610 BAYOU CIRCLE
3481 BAYOU SOUND placeholder 3481 BAYOU SOUND
14 días
En Venta
Casa
$2,450,000
5 camas 3 baños 3,391 sqft
3481 BAYOU SOUND
536 KETCH LANE placeholder 536 KETCH LANE
19 días
En Venta
Casa
$2,895,000
3 camas 3 baños 2,960 sqft
536 KETCH LANE

The multiple listing information is provided by the Stellar MLS from a copyrighted compilation of listings. The compilation of listings and each individual listing are ©2026-present Stellar MLS. All Rights Reserved. The information provided is for consumers' personal, noncommercial use and may not be used for any purpose other than to identify prospective properties consumers may be interested in purchasing. All properties are subject to prior sale or withdrawal. All information provided is deemed reliable but is not guaranteed accurate, and should be independently verified. Listing courtesy of: REDFIN CORPORATION