Contacto
Cuéntenos sobre sus necesidades

715 MAGNOLIA PLACE

Condo / Coop En Venta
$230,000

BTC: 7.66666667

ETH: 115.00000000

-$10K (2025/10/02)
83 días
Frente al mar
2 camas
2 baños
1,078 sqft
Est. Rango de ventas estimado: $0 - $0
$0

Visión general

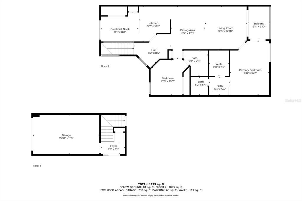
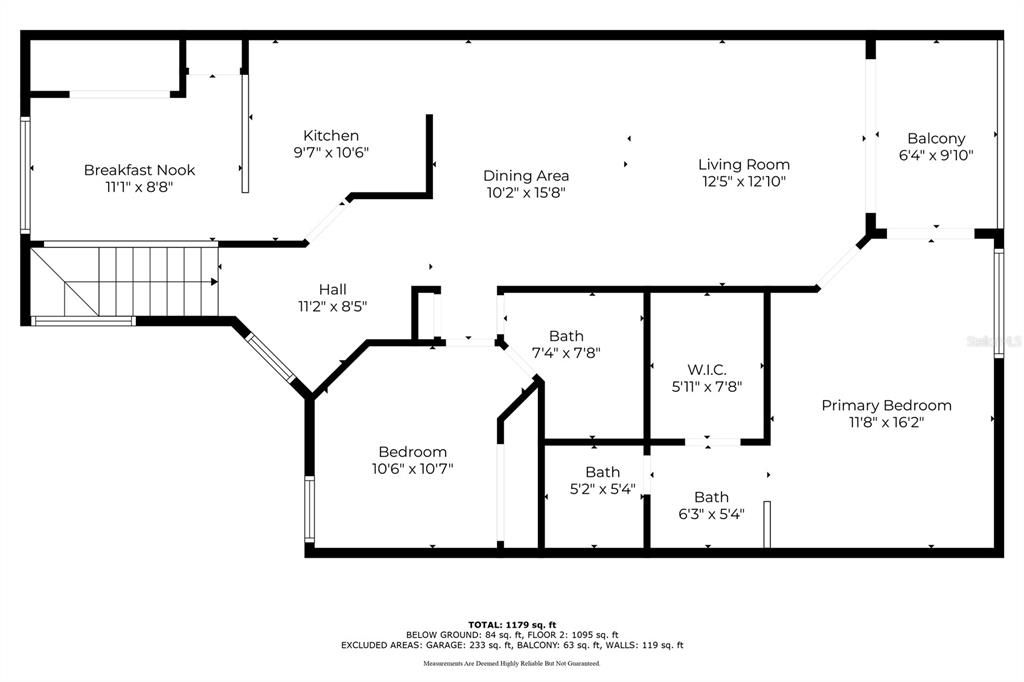
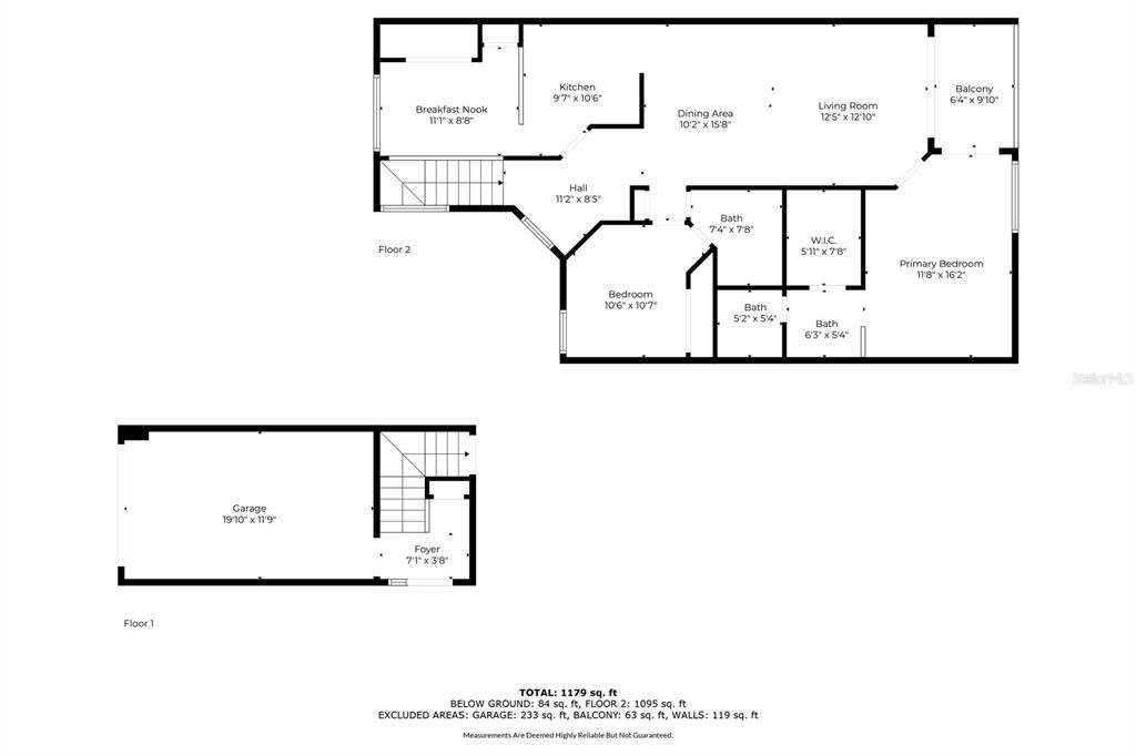
Experience beautiful waterfront views, nightly sunsets, and direct access to the world-famous Winter Haven Chain of Lakes in this updated lakefront condo located in the gated community of Winterset. Offering 2 bedrooms, 2 bathrooms, and a private one-car garage, this second-floor residence blends comfort, style, and the relaxed Florida lakefront lifestyle. Inside, an open and airy floorplan features high ceilings, skylights, and expansive glass sliders that frame wide views of Lake Winterset. The great room serves as the central gathering space with newer carpeting, updated lighting, and abundant natural light. The generous dining area flows into a well-designed eat-in kitchen with a breakfast bar, dinette, painted cabinetry, a closet pantry, a laundry closet with washer and dryer, and a full suite of stainless steel appliances, including a gas range. The primary suite enjoys tranquil lake views, private lanai access, an oversized walk-in closet, and an en-suite bath with an extended vanity and a beautifully updated walk-in shower. The split guest bedroom includes ample closet space and private en-suite access to the second full bath, which features a new marble-topped vanity and a tub/shower combination. Most updates were completed within the last 2.5 years, including new carpeting, lighting, blinds, closet doors, water heater, updated electric panel, guest bath vanity, and a new AC system—ensuring modern comfort and true move-in readiness. The screened balcony provides a peaceful outdoor retreat ideal for morning coffee, evening breezes, or sunset viewing. A one-car garage provides secure parking and extra storage, with additional guest parking nearby. Winterset residents enjoy resort-style amenities: a lakeside clubhouse, pool, hot tub, tennis and pickleball courts, shuffleboard, meticulously maintained grounds, and a private boat ramp offering direct access to more than 20 canal-connected lakes—perfect for boating, fishing, skiing, and waterfront dining. Located off Cypress Gardens Boulevard, this prime location places you minutes from Publix, Walmart, Legoland, medical facilities, restaurants, shopping, and major highways. Winter Haven’s vibrant downtown offers weekend markets, breweries, boutiques, and cultural events—all while providing a more affordable, inland alternative to coastal Florida. A rare opportunity to own an updated lakefront condo with garage in one of Winter Haven’s most desirable waterfront communities. Enjoy the legendary Chain of Lakes lifestyle at Winterset.

Ubicación

Hechos y características

Tipo:
Residential
Estacionamiento:
Garage Door Opener / Guest
Año de construcción:
1987
Lote:
Sin datos
Calefacción:
Central / Electric
precio por sq. medidor:
$213
Enfriamiento:
Central Air
HOA:
$369
Más hechos y características
  • Piso

    • Carpet

    • Ceramic Tile

    • Luxury Vinyl

    Calefacción

    • Central

    • Electric

    Enfriamiento

    • Central Air

    Accesorios

    • Dryer

    • Gas Water Heater

    • Microwave

    • Range

    • Range Hood

    • Refrigerator

    • Washer

    Otras características interiores

    • Ceiling Fan(s)

    • Eating Space In Kitchen

    • Skylight(s)

    • Split Bedroom

    • Vaulted Ceiling(s)

    • Walk-In Closet(s)

    Dormitorios y baños

    • Dormitorios: 2

    • Baños completos: 2

  • Estacionamiento

    • Garage Door Opener

    • Guest

    Propiedad

    • Pisos: Two

    • Características Exteriores: Sliding Doors

    Otra Información de Propiedad

    • Número de Parcela: 262912687503007150

  • Tipo y estilo

    • Tipo de propiedad: Residential

    • Subtipo de propiedad: Condominium

  • Utilidad

    • Cable Connected

    • Natural Gas Connected

    • Sewer Connected

    • Water Connected

  • Otra información financiera

    • HOA: $369

    • Frecuencia HOA: Monthly

    • Importe anual de impuestos: $2,202

  • Detalles de la fuente

    • MLS ID: P4936224

    Otros hechos

    • Materiales de construcción: Block / Wood Frame

    • Detalles de la fundación: Slab

    • Características de lavandería: In Kitchen / Laundry Closet

    • Características del lote: In County

    • Características del patio y el porche: Rear Porch / Screened

    • Caras de dirección: East

    • Estilo arquitectónico: Mediterranean

    • Frente al mar: Si

    • Nombre del cuerpo de agua: LAKE WINTERSET

    • Espacios de garaje: 1

    • Garaje adjunto: Si

    • Garaje: Si

    • Salón: 1078

    • Fuente de agua: Public

    • Nombre de subdivisión: WINTERSET 03 A CONDO PH 01

Casas similares

3349 COSTELLO CIRCLE placeholder 3349 COSTELLO CIRCLE
2 días
En Venta
Casa
$280,000
3 camas 2 baños 1,516 sqft
3349 COSTELLO CIRCLE
1062 MEDINAH DRIVE placeholder 1062 MEDINAH DRIVE
2 días
En Venta
Casa
$199,995
2 camas 2 baños 1,398 sqft
1062 MEDINAH DRIVE
5815 RED FOX DRIVE placeholder 5815 RED FOX DRIVE
2 días
En Venta
$190,000
3 camas 2 baños 1,248 sqft
5815 RED FOX DRIVE
4149 GIORGIO DRIVE placeholder 4149 GIORGIO DRIVE
2 días
En Venta
Casa
$275,490
3 camas 2 baños 1,504 sqft
4149 GIORGIO DRIVE
6236 KNOTTY PINE DRIVE SE placeholder 6236 KNOTTY PINE DRIVE SE
3 días
En Venta
$170,000
2 camas 2 baños 1,369 sqft
6236 KNOTTY PINE DRIVE SE
4118 FISHERMANS LANDING placeholder 4118 FISHERMANS LANDING
-$4K (2025/12/04)
En Venta
Casa
$245,000
3 camas 2 baños 1,247 sqft
4118 FISHERMANS LANDING
112 ST. KITTS CIRCLE placeholder 112 ST. KITTS CIRCLE
-$3K (2025/11/29)
En Venta
Casa
$269,900
3 camas 2 baños 1,420 sqft
112 ST. KITTS CIRCLE
3348 RALEIGH DRIVE placeholder 3348 RALEIGH DRIVE
8 días
En Venta
Casa
$239,000
2 camas 2 baños 1,185 sqft
3348 RALEIGH DRIVE

The multiple listing information is provided by the Stellar MLS from a copyrighted compilation of listings. The compilation of listings and each individual listing are ©2025-present Stellar MLS. All Rights Reserved. The information provided is for consumers' personal, noncommercial use and may not be used for any purpose other than to identify prospective properties consumers may be interested in purchasing. All properties are subject to prior sale or withdrawal. All information provided is deemed reliable but is not guaranteed accurate, and should be independently verified. Listing courtesy of: THE STONES REAL ESTATE FIRM