Contacto
Cuéntenos sobre sus necesidades

7625 SUN ISLAND DRIVE S UNIT 106

Condo / Coop Activo con contrato
$155,000

BTC: 5.16666667

ETH: 77.50000000

175 días
1 camas
1 baños
600 sqft
Est. Rango de ventas estimado: $0 - $0
$0

Visión general

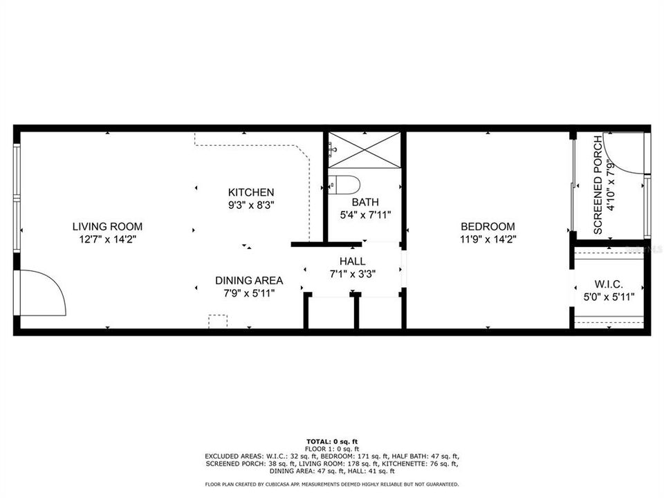
Welcome to the beautiful community of Bay Island. This unit located in the Heritage Building is directly on the water. The unit had minimal water intrusion during Hurricane Helene with no interior damage however the condo and all the first floor units are being remediated by the association to ensure all first floor units are fully renovated and free of storm damage. The cost of remediation is being covered by the HOA and a renovation finish package with details is available for review with COMPLETION SCHEDULED for November 2025. A weekly progress report of scheduled of repairs is being provided for clear communication. This first floor unit has an open floorplan with living, dining and kitchen. The bathroom has a walk-in shower with white subway tile. The bedroom has a walk-in closet and sliding door that opens to a screen enclosed covered porch overlooking the water! Flooring, kitchen finishes, appliances and bathroom finishes will be re-installed and covered by the community under their flood insurance coverage. Depending on timing, this may allow the buyer to choose their preferred options. This 24-hr guard gated waterfront community has an exceptional array of activities for the active resident including multiple pools & spas, tennis & pickleball courts, community room with activities such as yoga, entertainment and socials, shuffleboard courts, fitness center with sauna, waterfront tiki huts with grilling area and community marina for fishing or boating opportunities. The indoor amenities are in process of remediation and photos are pre storm for reference. Bay Island is a 55+ community. Ask for more details on this exceptional value condo. SEPTEMBER UPDATE: Drywall installed, trim & doors installed, painting complete, cabinets ordered and unit on track for September completion! SELLER OPEN TO PAYING HOA FEES until unit has CO & is able to be occupied - ask for details.

Ubicación

Hechos y características

Tipo:
Residential
Estacionamiento:
Assigned
Año de construcción:
1973
Lote:
0.47 Hectáreas
Calefacción:
Central / Electric
precio por sq. medidor:
$258
Enfriamiento:
Central Air
HOA:
Sin datos
Más hechos y características
  • Piso

    • Concrete

    Calefacción

    • Central

    • Electric

    Enfriamiento

    • Central Air

    Accesorios

    • None

    Otras características interiores

    • Kitchen/Family Room Combo

    • Open Floorplan

    • Primary Bedroom Main Floor

    Dormitorios y baños

    • Dormitorios: 1

    • Baños completos: 1

  • Estacionamiento

    • Assigned

    Propiedad

    • Pisos: One

    • Características Exteriores: Balcony / Lighting / Sidewalk / Sliding Doors

    Lote

    • Lote: 0.47 Hectáreas

    Otra Información de Propiedad

    • Número de Parcela: 303116036170001060

  • Tipo y estilo

    • Tipo de propiedad: Residential

    • Subtipo de propiedad: Condominium

  • Utilidad

    • Cable Connected

    • Electricity Connected

    • Sewer Connected

    • Street Lights

    • Water Connected

  • Otra información financiera

    • Importe anual de impuestos: $417

  • Detalles de la fuente

    • MLS ID: TB8380070

    Otros hechos

    • Materiales de construcción: Block / Stucco

    • Detalles de la fundación: Slab

    • Características de lavandería: Common Area / Upper Level

    • Características del patio y el porche: Covered / Rear Porch / Screened

    • Caras de dirección: West

    • Salón: 600

    • Fuente de agua: Public

    • Nombre de subdivisión: BAY ISLAND GROUP 7

Casas similares

3018 59TH STREET S UNIT 115 placeholder 3018 59TH STREET S UNIT 115
-$55K (2025/12/03)
Activo con contrato
Condo / Coop
$194,900
2 camas 2 baños 1,250 sqft
3018 59TH STREET S UNIT 115
5377 FAIRFIELD AVENUE S UNIT 74 placeholder 5377 FAIRFIELD AVENUE S UNIT 74
12 días
Activo con contrato
Casa
$130,000
2 camas 2 baños 1,104 sqft
5377 FAIRFIELD AVENUE S UNIT 74
1847 SHORE DRIVE S UNIT 202 placeholder 1847 SHORE DRIVE S UNIT 202
16 días
Activo con contrato
Condo / Coop
$115,000
2 camas 1 baños 1,005 sqft
1847 SHORE DRIVE S UNIT 202
5728 14TH AVENUE N UNIT 202B placeholder 5728 14TH AVENUE N UNIT 202B
16 días
Activo con contrato
Condo / Coop
$159,000
2 camas 2 baños 1,030 sqft
5728 14TH AVENUE N UNIT 202B
6801 STONES THROW CIRCLE N UNIT 15201 placeholder 6801 STONES THROW CIRCLE N UNIT 15201
-$60K (2025/11/12)
Activo con contrato
Condo / Coop
$190,000
2 camas 2 baños 945 sqft
6801 STONES THROW CIRCLE N UNIT 15201
6960 20TH AVENUE N UNIT 307 placeholder 6960 20TH AVENUE N UNIT 307
36 días
Activo con contrato
Condo / Coop
$165,000
2 camas 2 baños 1,050 sqft
6960 20TH AVENUE N UNIT 307
7560 BAY ISLAND DRIVE S UNIT 348 placeholder 7560 BAY ISLAND DRIVE S UNIT 348
-$50K (2025/10/21)
Activo con contrato
Condo / Coop
$150,000
2 camas 2 baños 1,050 sqft
7560 BAY ISLAND DRIVE S UNIT 348
6026 22ND AVENUE N UNIT 5 placeholder 6026 22ND AVENUE N UNIT 5
58 días
Activo con contrato
Condo / Coop
$115,000
2 camas 2 baños 890 sqft
6026 22ND AVENUE N UNIT 5

The multiple listing information is provided by the Stellar MLS from a copyrighted compilation of listings. The compilation of listings and each individual listing are ©2025-present Stellar MLS. All Rights Reserved. The information provided is for consumers' personal, noncommercial use and may not be used for any purpose other than to identify prospective properties consumers may be interested in purchasing. All properties are subject to prior sale or withdrawal. All information provided is deemed reliable but is not guaranteed accurate, and should be independently verified. Listing courtesy of: SMITH & ASSOCIATES REAL ESTATE