Contacto
Cuéntenos sobre sus necesidades

6186 126TH AVENUE

Vendido Recientemente
$62,377

BTC: 0.92410370

ETH: 623.77000000

Fecha de venta: 2025-12-26
130 días
0 room(s)
32,425 sqft
Est. Rango de ventas estimado: $0 - $0
$0

Visión general

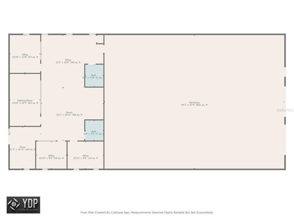
Offered for Sublease is this 4900sf Flex space in Largo. This space has a beautiful custom buildout with glass-walled office and conference rooms, giving the space a wide open feel. The front office space features three private offices, a conference room, a wide open team area, a welcoming foyer, an open kitchen area, and two ADA restrooms. The rear space boasts 3,000+ sf of clear span, 18' clear height shop floor or warehouse space, serviced by 200 amp, 480 V 3 Phase power, 6" concrete slab, dry sprinkler system, and two drive-in roll-up doors. All furniture and custom fixtures are excluded from this sublease, but everything is available and negotiable. This is a turnkey opportunity for you to sign the lease, move in, and be in business from day one. This sublease will have escalations and other terms as in the original lease.

Ubicación

Hechos y características

Tipo:
Commercial Lease
Estacionamiento:
6 to 12 Spaces
Año de construcción:
1982
Lote:
2.65 Hectáreas
Calefacción:
Central / Electric
precio por sq. medidor:
$2
Enfriamiento:
A/C - Office Only / Central Air
HOA:
Sin datos
Más hechos y características
  • Calefacción

    • Central

    • Electric

    Enfriamiento

    • A/C - Office Only

    • Central Air

  • Estacionamiento

    • 6 to 12 Spaces

    Lote

    • Lote: 2.65 Hectáreas

    Otra Información de Propiedad

    • Número de Parcela: 083016709744000603

    • Zonificación: M-1

  • Tipo y estilo

    • Tipo de propiedad: Commercial Lease

    • Subtipo de propiedad: Industrial

  • Otra información financiera

    • Importe anual de impuestos: $41,462

  • Detalles de la fuente

    • MLS ID: TB8418775

    Otros hechos

    • Materiales de construcción: Metal Frame

    • Detalles de la fundación: Slab

    • Salón: 32425

    • Fuente de agua: Public

    • Tamaño de la parcela: 370 x 313

    • Nombre de subdivisión: PINELLAS GROVES

Casas similares

82177 E STREET N UNIT 177 placeholder 82177 E STREET N UNIT 177
2 días
Vendido Recientemente
Casa
$30,000
2 camas 2 baños 1,008 sqft
82177 E STREET N UNIT 177
9790 66TH STREET N UNIT 444 placeholder 9790 66TH STREET N UNIT 444
3 días
Vendido Recientemente
$69,500
2 camas 2 baños 784 sqft
9790 66TH STREET N UNIT 444
12550 CROSS STREET placeholder 12550 CROSS STREET
3 días
Vendido Recientemente
Lotes / Tierras
$58,900
0 room(s)
12550 CROSS STREET
34188 CANAL DRIVE N placeholder 34188 CANAL DRIVE N
9 días
Vendido Recientemente
Casa
$58,000
2 camas 1 baños 672 sqft
34188 CANAL DRIVE N
82008 A STREET N UNIT 8 placeholder 82008 A STREET N UNIT 8
16 días
Vendido Recientemente
Casa
$45,000
2 camas 1 baños 814 sqft
82008 A STREET N UNIT 8
13806 60TH STREET N placeholder 13806 60TH STREET N
17 días
Vendido Recientemente
Casa
$49,000
3 camas 2 baños 1,584 sqft
13806 60TH STREET N
34126 OAK DRIVE N placeholder 34126 OAK DRIVE N
18 días
Vendido Recientemente
Casa
$69,900
2 camas 1 baños 764 sqft
34126 OAK DRIVE N
6537 116TH AVENUE placeholder 6537 116TH AVENUE
26 días
Vendido Recientemente
$62,400
0 room(s) 7,320 sqft
6537 116TH AVENUE

The multiple listing information is provided by the Stellar MLS from a copyrighted compilation of listings. The compilation of listings and each individual listing are ©2026-present Stellar MLS. All Rights Reserved. The information provided is for consumers' personal, noncommercial use and may not be used for any purpose other than to identify prospective properties consumers may be interested in purchasing. All properties are subject to prior sale or withdrawal. All information provided is deemed reliable but is not guaranteed accurate, and should be independently verified. Listing courtesy of: KELLER WILLIAMS REALTY- PALM H