Contacto
Cuéntenos sobre sus necesidades

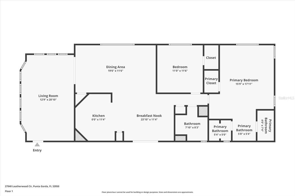
27940 LEATHERWOOD CIRCLE

En Venta
$179,000

BTC: 5.96666667

ETH: 89.50000000

-$20K (2025/11/06)
202 días
2 camas
2 baños
1,392 sqft
Est. Rango de ventas estimado: $0 - $0
$0

Visión general

You’re Going to Love This One! If you’ve been looking for space, privacy, and a move-in ready home—this is it! This 2 bedroom, 2 bath gem offers 1,392 square feet of air-conditioned living space with a huge, updated kitchen you’re going to love. There’s plenty of room to cook, entertain, and enjoy life, with lots of living space inside and an expansive backyard outside. The fully fenced yard backs up to peaceful woods, giving you tons of privacy—and the hot tub (installed in 2022) makes the outdoor living experience even better! A 12 x 22 insulated shed gives you extra storage or workspace, and the oversized driveway has plenty of room for your RV or boat. The home has been meticulously maintained, with a new roof in 2022, and is in excellent condition. Located on a large lot in a quiet neighborhood with no HOA or deed restrictions, 27940 Leatherwood Circle is close to shopping, dining, and everything Punta Gorda has to offer.

Ubicación

Hechos y características

Tipo:
Residential
Estacionamiento:
Sin datos
Año de construcción:
1979
Lote:
0.34 Hectáreas
Calefacción:
Electric
precio por sq. medidor:
$129
Enfriamiento:
Central Air
HOA:
Sin datos
Más hechos y características
  • Piso

    • Luxury Vinyl

    Calefacción

    • Electric

    Enfriamiento

    • Central Air

    Accesorios

    • Electric Water Heater

    • Range

    Otras características interiores

    • Open Floorplan

    Dormitorios y baños

    • Dormitorios: 2

    • Baños completos: 2

  • Propiedad

    • Pisos: One

    • Características Exteriores: Awning(s)

    Lote

    • Lote: 0.34 Hectáreas

    Otra Información de Propiedad

    • Número de Parcela: 412327427008

    • Zonificación: MHC

  • Tipo y estilo

    • Tipo de propiedad: Residential

    • Subtipo de propiedad: Manufactured Home

  • Utilidad

    • Electricity Connected

  • Otra información financiera

    • Importe anual de impuestos: $1,118

  • Detalles de la fuente

    • MLS ID: C7509964

    Otros hechos

    • Materiales de construcción: Vinyl Siding

    • Detalles de la fundación: Crawlspace

    • Características de lavandería: Electric Dryer Hookup / Washer Hookup

    • Características del lote: In County / Irregular Lot / Landscaped / Oversized Lot

    • Características de la ventana: Drapes / Rods / Window Treatments

    • Caras de dirección: Northwest

    • Otras estructuras: Shed(s)

    • Salón: 1392

    • Fuente de agua: Well

    • Tamaño de la parcela: 89 x 164

    • Nombre de subdivisión: LAKEWOOD 1ST ADD

Casas similares

10100 BURNT STORE ROAD UNIT 48 placeholder 10100 BURNT STORE ROAD UNIT 48
2 días
En Venta
Casa
$134,900
3 camas 2 baños 1,280 sqft
10100 BURNT STORE ROAD UNIT 48
2930 ACLINE ROAD placeholder 2930 ACLINE ROAD
3 días
En Venta
Casa
$215,000
3 camas 2 baños 1,260 sqft
2930 ACLINE ROAD
27930 LEATHERWOOD CIRCLE placeholder 27930 LEATHERWOOD CIRCLE
3 días
En Venta
$229,900
2 camas 2 baños 1,404 sqft
27930 LEATHERWOOD CIRCLE
10303 BURNT STORE ROAD UNIT 93 placeholder 10303 BURNT STORE ROAD UNIT 93
3 días
En Venta
$155,000
2 camas 2 baños 1,000 sqft
10303 BURNT STORE ROAD UNIT 93
28286 S TWIN LAKES DRIVE placeholder 28286 S TWIN LAKES DRIVE
-$10K (2025/12/04)
En Venta
Casa
$229,000
2 camas 2 baños 894 sqft
28286 S TWIN LAKES DRIVE
7442 GEWANT BOULEVARD placeholder 7442 GEWANT BOULEVARD
-$5K (2025/11/22)
En Venta
Lotes / Tierras
$130,000
0 room(s)
7442 GEWANT BOULEVARD
10303 BURNT STORE ROAD UNIT 245 placeholder 10303 BURNT STORE ROAD UNIT 245
38 días
En Venta
$165,000
2 camas 2 baños 1,269 sqft
10303 BURNT STORE ROAD UNIT 245
6027 QUINCE STREET placeholder 6027 QUINCE STREET
-$30K (2025/12/04)
En Venta
$184,999
2 camas 2 baños 728 sqft
6027 QUINCE STREET

The multiple listing information is provided by the Stellar MLS from a copyrighted compilation of listings. The compilation of listings and each individual listing are ©2025-present Stellar MLS. All Rights Reserved. The information provided is for consumers' personal, noncommercial use and may not be used for any purpose other than to identify prospective properties consumers may be interested in purchasing. All properties are subject to prior sale or withdrawal. All information provided is deemed reliable but is not guaranteed accurate, and should be independently verified. Listing courtesy of: EXIT COMPASS REALTY