Contacto
Cuéntenos sobre sus necesidades

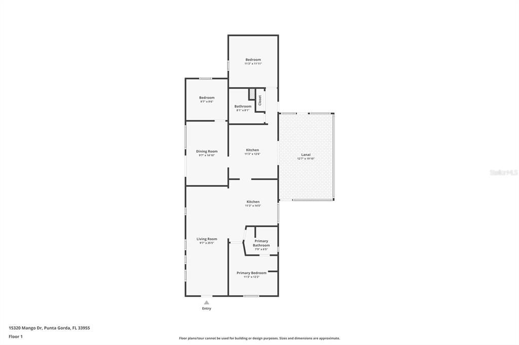
15320 MANGO DRIVE

Casa En Venta
$130,000

BTC: 4.33333333

ETH: 65.00000000

-$16K (2025/10/14)
134 días
3 camas
2 baños
1,164 sqft
Est. Rango de ventas estimado: $0 - $0
$0

Visión general

Opportunity Knocks in Punta Gorda! Discover comfort, flexibility, and value in this unique 3-bedroom, 2-bath home at 15320 Mango Drive. Built in 1974 and thoughtfully updated, the home features a NEWER metal roof, NEWER hot water heater, NEWER whole-home water filtration system, NEWER electrical panel and breakers, hurricane shutters for peace of mind, and a NEWLY renovated primary bathroom—making it completely move-in ready with peace of mind for years to come. Offering 1,164 square feet of total space, this home presents a versatile layout with two kitchens and two living rooms, ideal for multi-generational living, guest accommodations, or a private in-law suite or rental unit. Inside, you’ll find central air and heat, ceiling fans, an eat-in kitchen, and low-maintenance tile and laminate flooring throughout. The property is serviced by well water and a septic system, which was last pumped in 2025. Major systems have already been upgraded for modern efficiency and convenience. Set on a generous 12,221 sq ft lot, the home also includes a carport, paved driveway, rain gutters, and a large storage shed with a built-in workshop—perfect for projects, hobbies, or additional storage. Sliding patio doors enhance the indoor-outdoor flow, and hurricane shutters provide added protection during storm season. Conveniently located just minutes from shopping, dining, golf courses, marinas, parks, and historic downtown Punta Gorda, this home offers unbeatable value and flexibility. Whether you're seeking a primary residence, seasonal getaway, or income-producing opportunity, 15320 Mango Drive is a smart choice you don’t want to miss.

Ubicación

Hechos y características

Tipo:
Residential
Estacionamiento:
Sin datos
Año de construcción:
1974
Lote:
0.28 Hectáreas
Calefacción:
Electric
precio por sq. medidor:
$112
Enfriamiento:
Central Air
HOA:
Sin datos
Más hechos y características
  • Piso

    • Tile

    • Vinyl

    Calefacción

    • Electric

    Enfriamiento

    • Central Air

    Accesorios

    • Disposal

    • Dryer

    • Electric Water Heater

    • Range

    • Range Hood

    • Refrigerator

    • Washer

    Otras características interiores

    • Built-in Features

    • Living Room/Dining Room Combo

    • Open Floorplan

    • Primary Bedroom Main Floor

    • Window Treatments

    Dormitorios y baños

    • Dormitorios: 3

    • Baños completos: 2

  • Propiedad

    • Pisos: One

    • Características Exteriores: Hurricane Shutters / Private Mailbox

    Lote

    • Lote: 0.28 Hectáreas

    Otra Información de Propiedad

    • Número de Parcela: 412334251012

    • Zonificación: MHC

  • Tipo y estilo

    • Tipo de propiedad: Residential

    • Subtipo de propiedad: Mobile Home

  • Utilidad

    • BB/HS Internet Available

    • Cable Connected

    • Water Connected

  • Otra información financiera

    • Importe anual de impuestos: $2,098

  • Detalles de la fuente

    • MLS ID: C7512298

    Otros hechos

    • Materiales de construcción: Vinyl Siding / Wood Frame

    • Detalles de la fundación: Slab

    • Características de lavandería: Inside

    • Caras de dirección: Southwest

    • Salón: 1164

    • Fuente de agua: Well

    • Tamaño de la parcela: 82 x 150

    • Nombre de subdivisión: S P G HEIGHTS 8TH ADD

Casas similares

10100 BURNT STORE ROAD UNIT 48 placeholder 10100 BURNT STORE ROAD UNIT 48
2 días
En Venta
Casa
$134,900
3 camas 2 baños 1,280 sqft
10100 BURNT STORE ROAD UNIT 48
11350 PEPPER ROAD placeholder 11350 PEPPER ROAD
3 días
En Venta
$97,000
2 camas 2 baños 768 sqft
11350 PEPPER ROAD
10303 BURNT STORE ROAD UNIT 93 placeholder 10303 BURNT STORE ROAD UNIT 93
4 días
En Venta
$155,000
2 camas 2 baños 1,000 sqft
10303 BURNT STORE ROAD UNIT 93
272 MADRID BOULEVARD placeholder 272 MADRID BOULEVARD
10 días
En Venta
Lotes / Tierras
$140,000
0 room(s)
272 MADRID BOULEVARD
10303 BURNT STORE ROAD UNIT 245 placeholder 10303 BURNT STORE ROAD UNIT 245
39 días
En Venta
$165,000
2 camas 2 baños 1,269 sqft
10303 BURNT STORE ROAD UNIT 245
28350 JARDIN AVENUE placeholder 28350 JARDIN AVENUE
43 días
En Venta
Casa
$100,000
3 camas 2 baños 1,725 sqft
28350 JARDIN AVENUE
10100 BURNT STORE ROAD UNIT 14 placeholder 10100 BURNT STORE ROAD UNIT 14
49 días
En Venta
$159,900
2 camas 2 baños 960 sqft
10100 BURNT STORE ROAD UNIT 14
10303 BURNT STORE ROAD UNIT 5 placeholder 10303 BURNT STORE ROAD UNIT 5
-$10K (2025/11/03)
En Venta
$159,900
2 camas 2 baños 1,056 sqft
10303 BURNT STORE ROAD UNIT 5

The multiple listing information is provided by the Stellar MLS from a copyrighted compilation of listings. The compilation of listings and each individual listing are ©2025-present Stellar MLS. All Rights Reserved. The information provided is for consumers' personal, noncommercial use and may not be used for any purpose other than to identify prospective properties consumers may be interested in purchasing. All properties are subject to prior sale or withdrawal. All information provided is deemed reliable but is not guaranteed accurate, and should be independently verified. Listing courtesy of: GRANT TEAM REAL ESTATE, LLC