Contacto
Cuéntenos sobre sus necesidades

2100 KINGS HIGHWAY UNIT 126

Casa En Venta
$129,000

BTC: 4.30000000

ETH: 64.50000000

38 días
2 camas
2 baños
1,284 sqft
Est. Rango de ventas estimado: $0 - $0
$0

Visión general

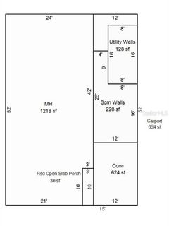
Welcome to 126 Iroquois Trail in Maple Leaf Golf & Country Club. This spacious 1,218 two bedroom home with bonus room is being sold furnished. Great investment opportunity with a renter already in place Nov 1st through March 31st. On the exterior, this home has upgraded Bermuda shutters on the front adding to the already charming curb appeal. The kitchen has a breakfast bar great for entertaining or enjoying your morning cup of coffee. Enjoy the bonus room that is filled with natural light in the afternoon. The bonus room also has sliders that lead out to the carport. The primary bedroom suite features an en-suite bathroom with a large vanity as well as walk in closet. The second bedroom also has a walk-in closet as well as built-in shelves, desk and a full size murphy bed, perfect for overnight guests that conveniently tucks away when not in use. The screeded carport area features a large shed for storage and doubles as the laundry room with washer and dryer. This home has just enough green space out back to give you added privacy. Upgrades include, Upgraded floors in the kitchen & hallway December 2024. Air Conditioner & duct work replaced in June 2023. Vapor barrier replaced in 2022. Water heater replaced in 2016.**Be sure to check out the 3-D virtual tour and walk through video links** Located in award winning Maple Leaf Golf & Country Club, a popular 55+ gated golf course community with an active resort lifestyle. Features a Par 62, 18 hole golf course, 5 tennis courts, bocce ball, lawn bowling, 2 shuffleboard courts, 4 heated swimming pools, 2 hot tubs, fitness facility, woodworking facility, 75+ clubs/activities, 4pickleball courts, restaurant with full service bar, tiki hut/bar and more. Don't miss out on this opportunity to live in a thriving community where every day feels like a vacation. It's true what they say, it's all about the lifestyle.

Ubicación

Hechos y características

Tipo:
Residential
Estacionamiento:
Covered / Driveway
Año de construcción:
1976
Lote:
0.11 Hectáreas
Calefacción:
Central
precio por sq. medidor:
$100
Enfriamiento:
Central Air
HOA:
$352
Más hechos y características
  • Piso

    • Ceramic Tile

    • Laminate

    • Vinyl

    Calefacción

    • Central

    Enfriamiento

    • Central Air

    Accesorios

    • Dishwasher

    • Dryer

    • Electric Water Heater

    • Microwave

    • Range Hood

    • Refrigerator

    • Washer

    Otras características interiores

    • Thermostat

    Dormitorios y baños

    • Dormitorios: 2

    • Baños completos: 2

  • Estacionamiento

    • Covered

    • Driveway

    Propiedad

    • Pisos: One

    • Características Exteriores: Hurricane Shutters / Irrigation System

    Lote

    • Lote: 0.11 Hectáreas

    Otra Información de Propiedad

    • Número de Parcela: 402318105910

    • Zonificación: MHP

  • Tipo y estilo

    • Tipo de propiedad: Residential

    • Subtipo de propiedad: Mobile Home

  • Utilidad

    • Cable Available

    • Electricity Connected

    • Fiber Optics

    • Phone Available

    • Public

    • Sewer Connected

    • Sprinkler Recycled

    • Street Lights

    • Underground Utilities

    • Water Connected

  • Otra información financiera

    • HOA: $352

    • Frecuencia HOA: Monthly

    • Importe anual de impuestos: $938

  • Detalles de la fuente

    • MLS ID: C7516842

    Otros hechos

    • Materiales de construcción: Vinyl Siding

    • Detalles de la fundación: Crawlspace

    • Características de lavandería: Outside

    • Características del patio y el porche: Screened / Side Porch

    • Características de la piscina: Heated / In Ground

    • Caras de dirección: Northwest

    • Otras estructuras: Shed(s)

    • Salón: 1284

    • Fuente de agua: Public

    • Nombre de subdivisión: MAPLE LEAF ESTATES

Casas similares

22375 EDGEWATER DRIVE UNIT 217 placeholder 22375 EDGEWATER DRIVE UNIT 217
Nuevo
En Venta
Condo / Coop
$115,800
2 camas 2 baños 987 sqft
22375 EDGEWATER DRIVE UNIT 217
23483 DUNSTAN AVENUE placeholder 23483 DUNSTAN AVENUE
1 días
En Venta
Lotes / Tierras
$140,000
0 room(s)
23483 DUNSTAN AVENUE
25225 RAMPART BOULEVARD UNIT 1602 placeholder 25225 RAMPART BOULEVARD UNIT 1602
3 días
En Venta
Casa
$158,000
2 camas 2 baños 886 sqft
25225 RAMPART BOULEVARD UNIT 1602
25225 RAMPART BOULEVARD UNIT 1604 placeholder 25225 RAMPART BOULEVARD UNIT 1604
6 días
En Venta
Condo / Coop
$163,500
2 camas 2 baños 876 sqft
25225 RAMPART BOULEVARD UNIT 1604
443 HALLCREST TERRACE placeholder 443 HALLCREST TERRACE
9 días
En Venta
Casa
$150,000
3 camas 2 baños 2,663 sqft
443 HALLCREST TERRACE
22481 WESTCHESTER BOULEVARD UNIT B36 placeholder 22481 WESTCHESTER BOULEVARD UNIT B36
9 días
En Venta
Condo / Coop
$102,000
2 camas 2 baños 1,046 sqft
22481 WESTCHESTER BOULEVARD UNIT B36
2100 KINGS HIGHWAY UNIT 956A placeholder 2100 KINGS HIGHWAY UNIT 956A
10 días
En Venta
$150,000
2 camas 2 baños 1,144 sqft
2100 KINGS HIGHWAY UNIT 956A
25225 RAMPART BOULEVARD BOULEVARD UNIT 1301 placeholder 25225 RAMPART BOULEVARD BOULEVARD UNIT 1301
10 días
En Venta
Condo / Coop
$157,000
2 camas 2 baños 886 sqft
25225 RAMPART BOULEVARD BOULEVARD UNIT 1301

The multiple listing information is provided by the Stellar MLS from a copyrighted compilation of listings. The compilation of listings and each individual listing are ©2025-present Stellar MLS. All Rights Reserved. The information provided is for consumers' personal, noncommercial use and may not be used for any purpose other than to identify prospective properties consumers may be interested in purchasing. All properties are subject to prior sale or withdrawal. All information provided is deemed reliable but is not guaranteed accurate, and should be independently verified. Listing courtesy of: RE/MAX PALM PCS