Contacto
Cuéntenos sobre sus necesidades

2900 S Yvonne, Lehigh Acres FL 33976

Lotes / Tierras En Venta
$47,900

BTC: 0.71103094

ETH: 24.56410256

65 días
0 room(s)
Est. Rango de ventas estimado: $0 - $0
$0

Visión general

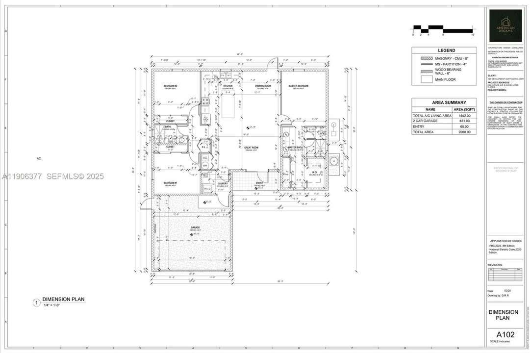
The survey has already been completed, and a model plan has been approved, so it is READY to build the property. Located in a rapidly growing area, these properties present an excellent investment opportunity. The 33976 zip code is the most popular in Lehigh Acres. Spanish is also spoken in the area. They are close to Southwest Florida International Airport, Fort Myers beaches, I-75, SR 82, shopping centers, medical services, schools, restaurants, JetBlue Park, and more. What truly sets this property apart is that it includes advanced planning and development work for a contemporary style home, saving the buyer months of paperwork, upfront costs, and administrative risk. The package includes: Complete architectural design for a contemporary 2,068 sq ft home with 3 BEDROOMS, 2 FULL BATHROOMS, and a 2-CAR GARAGE + Completed topographic survey, ready for immediate use + Approved floor plans, ready to proceed with final permitting + Approved SEPTIC SYSTEM design, including the AEROBIC TREATMENT UNIT, meeting all current county requirements. No trees to remove. Compared to other raw lots in the area, this parcel offers substantial savings in technical studies, engineering, design work, and permitting time, which fully justifies its higher market value. This property is READY to build. Located in a rapidly growing area, 33976 is one of the most sought-after areas in Lehigh Acres.

Ubicación

Hechos y características

Tipo:
Land/Boat Docks
Estacionamiento:
Sin datos
Año de construcción:
Sin datos
Lote:
11587.00 Hectáreas
Calefacción:
Sin datos
precio por sq. medidor:
Sin datos
Enfriamiento:
Sin datos
HOA:
Sin datos
Más hechos y características
  • Lote

    • Lote: 11587.00 Hectáreas

    Otra Información de Propiedad

    • Número de Parcela: 03452612001100100

  • Tipo y estilo

    • Tipo de propiedad: Land/Boat Docks

    • Subtipo de propiedad: Residential

  • Otra información financiera

    • Importe anual de impuestos: $474

  • Detalles de la fuente

    • MLS ID: A11906377

    Otros hechos

    • Características del lote: Other

    • Caras de dirección: East

    • Otras estructuras: None

    • Nombre de subdivisión: Lehigh Acres

Casas similares

2614 SW 33 RD, Lehigh Acres FL 33976 placeholder 2614 SW 33 RD, Lehigh Acres FL 33976
22 días
En Venta
Lotes / Tierras
$35,000
0 room(s)
2614 SW 33 RD, Lehigh Acres FL 33976
1088 ALABAMA ROAD S placeholder 1088 ALABAMA ROAD S
24 días
En Venta
Lotes / Tierras
$42,500
0 room(s)
1088 ALABAMA ROAD S
394 Palencia Ave, Lehigh Acres FL 33974 placeholder 394 Palencia Ave, Lehigh Acres FL 33974
37 días
En Venta
Lotes / Tierras
$35,000
0 room(s)
394 Palencia Ave, Lehigh Acres FL 33974
1505 S sally ave, Lehigh Acres FL 33976 placeholder 1505 S sally ave, Lehigh Acres FL 33976
47 días
En Venta
Lotes / Tierras
$60,000
0 room(s)
1505 S sally ave, Lehigh Acres FL 33976
4102 6TH ST W, Lehigh Acres FL 33971 placeholder 4102 6TH ST W, Lehigh Acres FL 33971
-$17K (2025/12/12)
En Venta
Lotes / Tierras
$34,900
0 room(s)
4102 6TH ST W, Lehigh Acres FL 33971
4100 6th St W, Lehigh Acres FL 33971 placeholder 4100 6th St W, Lehigh Acres FL 33971
-$17K (2025/12/12)
En Venta
Lotes / Tierras
$34,900
0 room(s)
4100 6th St W, Lehigh Acres FL 33971
3204 33rd St Sw, Lehigh Acres FL 33976 placeholder 3204 33rd St Sw, Lehigh Acres FL 33976
62 días
En Venta
Lotes / Tierras
$34,000
0 room(s)
3204 33rd St Sw, Lehigh Acres FL 33976
3119 SW 32 st, Lehigh Acres FL 33976 placeholder 3119 SW 32 st, Lehigh Acres FL 33976
63 días
En Venta
Lotes / Tierras
$35,000
0 room(s)
3119 SW 32 st, Lehigh Acres FL 33976

The multiple listing information is provided by the Miami Association of REALTORS® from a copyrighted compilation of listings. The compilation of listings and each individual listing are ©2026-present Miami Association of REALTORS®. All Rights Reserved. The information provided is for consumers' personal, noncommercial use and may not be used for any purpose other than to identify prospective properties consumers may be interested in purchasing. All properties are subject to prior sale or withdrawal. All information provided is deemed reliable but is not guaranteed accurate, and should be independently verified. Listing courtesy of: K & A Realty