Contacto
Cuéntenos sobre sus necesidades

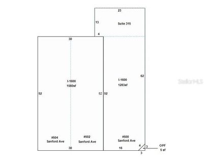
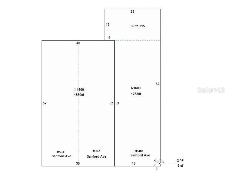
500 SANFORD AVENUE

En Venta
$26,400

BTC: 0.39188344

ETH: 13.53846154

70 días
0 room(s)
780 sqft
Est. Rango de ventas estimado: $0 - $0
$0

Visión general

In the heart of Downtown Sanford! 12+ month lease available for 502 Sanford Ave. This is a 780sf space with restroom. Perfect for retail, startup or established business looking to move or expand. Great walking traffic. This strip is also home to a coffee shop, hair salon and vintage clothing store. The exterior was just renovated with new paint, awnings, doors and more.

Ubicación

Florida SANFORD 32771 En Venta

Hechos y características

Tipo:
Commercial Lease
Estacionamiento:
Sin datos
Año de construcción:
1925
Lote:
0.13 Hectáreas
Calefacción:
Sin datos
precio por sq. medidor:
$34
Enfriamiento:
Central Air
HOA:
Sin datos
Más hechos y características
  • Enfriamiento

    • Central Air

  • Lote

    • Lote: 0.13 Hectáreas

    Otra Información de Propiedad

    • Número de Parcela: 2519305AG07010010

    • Zonificación: GC2

  • Tipo y estilo

    • Tipo de propiedad: Commercial Lease

    • Subtipo de propiedad: Retail

  • Otra información financiera

    • Importe anual de impuestos: $4,998

  • Detalles de la fuente

    • MLS ID: O6356396

    Otros hechos

    • Materiales de construcción: Stucco

    • Detalles de la fundación: Slab

    • Salón: 780

    • Nombre de subdivisión: SANFORD TOWN OF

Casas similares

1016 E 9TH STREET placeholder 1016 E 9TH STREET
23 días
En Venta
Lotes / Tierras
$30,000
0 room(s)
1016 E 9TH STREET
2920 W AIRPORT BOULEVARD UNIT 120 placeholder 2920 W AIRPORT BOULEVARD UNIT 120
111 días
En Venta
$26,340
0 room(s) 1,706 sqft
2920 W AIRPORT BOULEVARD UNIT 120
502 E AIRPORT BOULEVARD placeholder 502 E AIRPORT BOULEVARD
-$16K (2025/08/29)
En Venta
$29,940
0 room(s) 2,641 sqft
502 E AIRPORT BOULEVARD

The multiple listing information is provided by the Stellar MLS from a copyrighted compilation of listings. The compilation of listings and each individual listing are ©2026-present Stellar MLS. All Rights Reserved. The information provided is for consumers' personal, noncommercial use and may not be used for any purpose other than to identify prospective properties consumers may be interested in purchasing. All properties are subject to prior sale or withdrawal. All information provided is deemed reliable but is not guaranteed accurate, and should be independently verified. Listing courtesy of: CHARLES RUTENBERG REALTY ORLANDO