Contacto
Cuéntenos sobre sus necesidades

1112 LAKE SHORE RANCH DRIVE

Casa Activo con contrato
$299,900

BTC: 4.07884313

ETH: 148.86699263

29 días
4 camas
2 baños
1,754 sqft
Est. Rango de ventas estimado: $0 - $0
$0

Visión general

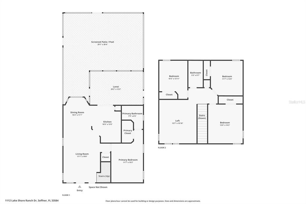
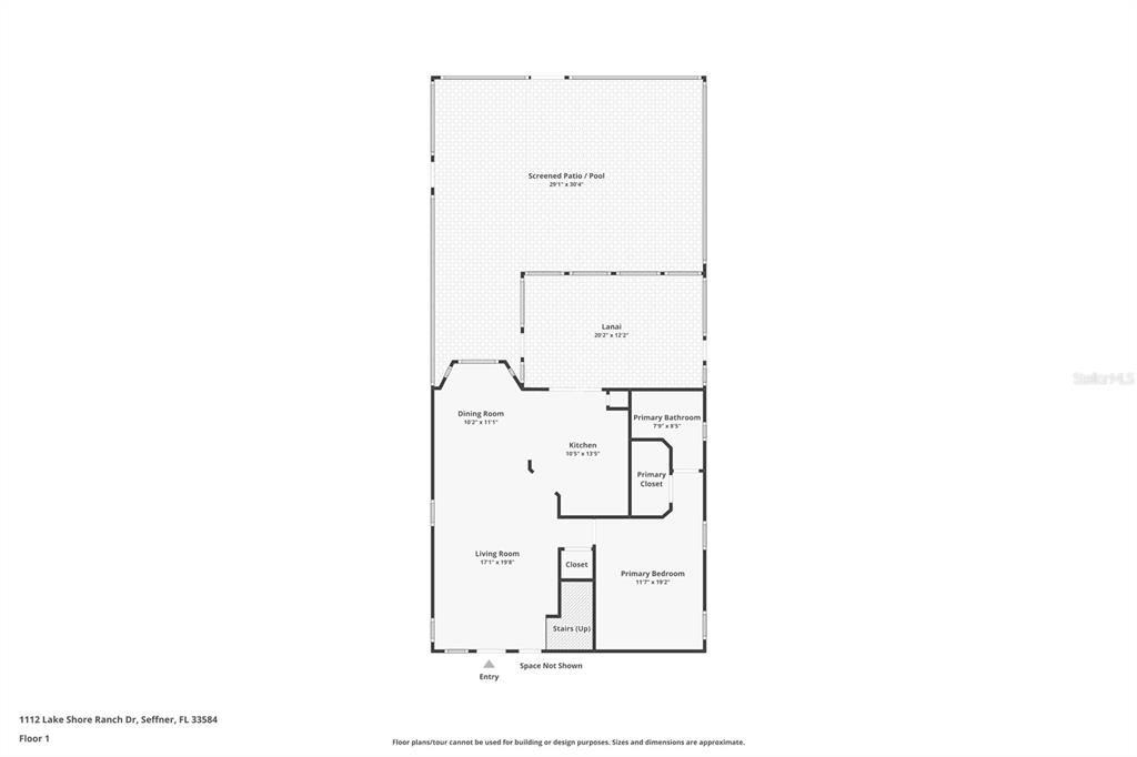
Under contract-accepting backup offers. Discover the possibilities at 1112 Lake Shore Ranch Dr in Seffner, FL, where this 4-bedroom, 2-bathroom house offers 1,754 square feet of living space with tremendous potential. Located in convenient Seffner, this property provides easy access to highways, schools, shopping, and dining options throughout the area. This home features a practical layout with the primary bedroom conveniently located on the first floor, making it suitable for various living arrangements. The recently installed roof provides added security and peace of mind for new owners. Step outside to enjoy the screened-in patio and pool area, which overlooks peaceful water views in a location that's not within a flood zone. The property offers excellent bones and flexibility for buyers looking to customize their living space. Whether you're seeking a move-in ready home or a project to transform into your dream residence, this house provides the foundation for either approach. The four bedrooms offer ample space for families, guests, or home office needs, while two full bathrooms serve the household efficiently. The outdoor space truly sets this property apart, with the pool and patio area creating an ideal setting for relaxation and entertainment. The serene water views add a calming element to daily life, while the screened patio extends your living space into the Florida climate. Seffner's location provides the perfect balance of suburban comfort with urban convenience. This home represents an opportunity to create something special in a desirable area. With its solid structure, attractive features, and prime location, this property is ready for your personal touch and vision to bring it back to life.

Ubicación

Hechos y características

Tipo:
Residential
Estacionamiento:
Sin datos
Año de construcción:
2001
Lote:
0.10 Hectáreas
Calefacción:
Central
precio por sq. medidor:
$171
Enfriamiento:
Central Air
HOA:
$230
Más hechos y características
  • Piso

    • Carpet

    • Ceramic Tile

    • Concrete

    Calefacción

    • Central

    Enfriamiento

    • Central Air

    Accesorios

    • Dishwasher

    • Range

    • Refrigerator

    Otras características interiores

    • Ceiling Fan(s)

    • Vaulted Ceiling(s)

    Dormitorios y baños

    • Dormitorios: 4

    • Baños completos: 2

  • Propiedad

    • Pisos: Two

    • Piscina Privada: Si

    • Características Exteriores: Sidewalk

    Lote

    • Lote: 0.10 Hectáreas

    Otra Información de Propiedad

    • Número de Parcela: U1229202AIA0000000071.0

    • Zonificación: PD

  • Tipo y estilo

    • Tipo de propiedad: Residential

    • Subtipo de propiedad: Single Family Residence

  • Utilidad

    • BB/HS Internet Available

    • Electricity Available

    • Electricity Connected

  • Otra información financiera

    • HOA: $230

    • Frecuencia HOA: Semi-Annually

    • Importe anual de impuestos: $3,103

  • Detalles de la fuente

    • MLS ID: TB8452772

    Otros hechos

    • Materiales de construcción: Block

    • Detalles de la fundación: Slab

    • Características de lavandería: Laundry Room

    • Características de la piscina: In Ground

    • Caras de dirección: South

    • Espacios de garaje: 2

    • Garaje adjunto: Si

    • Garaje: Si

    • Salón: 1754

    • Fuente de agua: Public

    • Tamaño de la parcela: 40 x 110

    • Nombre de subdivisión: LAKE SHORE RANCH PH I

Casas similares

11743 BLACKBROOK COURT placeholder 11743 BLACKBROOK COURT
Nuevo
Activo con contrato
Adosados
$316,460
3 camas 2 baños 1,675 sqft
11743 BLACKBROOK COURT
1748 E WHEELER ROAD placeholder 1748 E WHEELER ROAD
3 días
Activo con contrato
Casa
$384,900
3 camas 2 baños 2,044 sqft
1748 E WHEELER ROAD
11722 LYNN BROOK CIRCLE placeholder 11722 LYNN BROOK CIRCLE
7 días
Activo con contrato
Casa
$299,999
4 camas 3 baños 1,274 sqft
11722 LYNN BROOK CIRCLE
120 RUBY CIRCLE placeholder 120 RUBY CIRCLE
9 días
Activo con contrato
Casa
$279,900
3 camas 1 baños 1,253 sqft
120 RUBY CIRCLE
3144 SUMMER HOUSE DRIVE placeholder 3144 SUMMER HOUSE DRIVE
10 días
Activo con contrato
Casa
$309,900
4 camas 2 baños 1,507 sqft
3144 SUMMER HOUSE DRIVE
1918 BOW COURT placeholder 1918 BOW COURT
11 días
Activo con contrato
Casa
$300,000
3 camas 2 baños 1,300 sqft
1918 BOW COURT
1214 OAKHILL STREET placeholder 1214 OAKHILL STREET
16 días
Activo con contrato
Casa
$349,990
3 camas 2 baños 1,112 sqft
1214 OAKHILL STREET
11769 BLACKBROOK COURT placeholder 11769 BLACKBROOK COURT
17 días
Activo con contrato
Adosados
$362,650
4 camas 3 baños 2,121 sqft
11769 BLACKBROOK COURT

The multiple listing information is provided by the Stellar MLS from a copyrighted compilation of listings. The compilation of listings and each individual listing are ©2026-present Stellar MLS. All Rights Reserved. The information provided is for consumers' personal, noncommercial use and may not be used for any purpose other than to identify prospective properties consumers may be interested in purchasing. All properties are subject to prior sale or withdrawal. All information provided is deemed reliable but is not guaranteed accurate, and should be independently verified. Listing courtesy of: EXP REALTY LLC