Contacto
Cuéntenos sobre sus necesidades

1218 LAKE ARIANA BOULEVARD

Casa En Venta
$495,000

BTC: 5.69948187

ETH: 247.50000000

Nuevo
Frente al mar
4 camas
3 baños
2,247 sqft
Est. Rango de ventas estimado: $0 - $0
$0

Visión general

One or more photo(s) has been virtually staged. If you’ve been dreaming of life on the water, you won’t want to miss this lakefront home on Lake Ariana. This four-bedroom, three-bathroom residence offers a spacious layout with plenty of room for everyday living and entertaining friends. Perfectly west-facing, the home delivers spectacular sunset views that can be enjoyed evening after evening. With 100 feet of private shoreline and a dock, the lake becomes a natural part of daily life—whether that means quiet mornings fishing, afternoons boating with family and friends, or unwinding as the sun dips below the horizon. Outdoor living is a true highlight, featuring a screened-in rear patio and a front balcony overlooking the water, both ideal for morning coffee or relaxing at sunset. This property’s unique features allow you to make the lake life what you want it to be. Plus, you can breathe easy knowing many of the home’s major updates are already complete, including the roof (2023) and several 2024 improvements such as the water heater, upstairs AC with ductwork, insulation, and front-facing windows. Inside, the kitchen features granite countertops, and all three full bathrooms have been completely updated. Tucked into a peaceful lakefront setting yet conveniently located with easy access to I-4 and the Polk Parkway, this home offers the perfect balance of tranquility and accessibility, with the lively downtown Auburndale just minutes away. Homes like this offer more than a place to live—they offer a way of life on the lake.

Ubicación

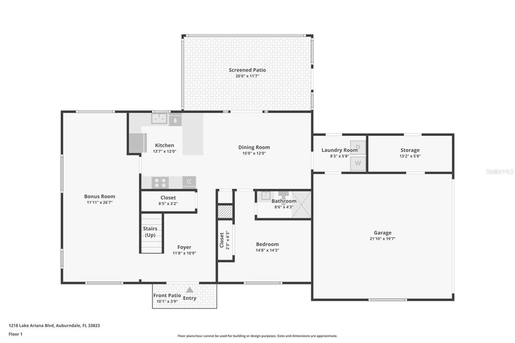
Hechos y características

Tipo:
Residential
Estacionamiento:
Covered / Driveway / Garage Faces Side
Año de construcción:
1974
Lote:
0.37 Hectáreas
Calefacción:
Electric
precio por sq. medidor:
$220
Enfriamiento:
Central Air
HOA:
Sin datos
Más hechos y características
  • Piso

    • Carpet

    • Tile

    • Hardwood

    Calefacción

    • Electric

    Enfriamiento

    • Central Air

    Accesorios

    • Built-In Oven

    • Electric Water Heater

    • Refrigerator

    Otras características interiores

    • Ceiling Fan(s)

    • Crown Molding

    • Eating Space In Kitchen

    • PrimaryBedroom Upstairs

    • Solid Surface Counters

    • Stone Counters

    • Thermostat

    • Walk-In Closet(s)

    Dormitorios y baños

    • Dormitorios: 4

    • Baños completos: 3

  • Estacionamiento

    • Covered

    • Driveway

    • Garage Faces Side

    Propiedad

    • Pisos: Two

    • Características Exteriores: Balcony / French Doors / Private Entrance / Private Mailbox / Private Yard / Sidewalk / Sliding Doors

    Lote

    • Lote: 0.37 Hectáreas

    Otra Información de Propiedad

    • Número de Parcela: 252802308400000050

  • Tipo y estilo

    • Tipo de propiedad: Residential

    • Subtipo de propiedad: Single Family Residence

  • Utilidad

    • Electricity Connected

    • Public

    • Sewer Connected

    • Street Lights

    • Water Connected

  • Otra información financiera

    • Importe anual de impuestos: $4,395

  • Detalles de la fuente

    • MLS ID: TB8456113

    Otros hechos

    • Materiales de construcción: Brick / Concrete / Wood Frame

    • Detalles de la fundación: Block / Slab / Stem Wall

    • Características de lavandería: Inside / Laundry Room

    • Características del lote: Landscaped

    • Características del patio y el porche: Covered / Front Porch / Porch / Rear Porch / Screened

    • Características de la ventana: Blinds

    • Caras de dirección: South

    • Frente al mar: Si

    • Nombre del cuerpo de agua: LAKE ARIANA

    • Espacios de garaje: 2

    • Garaje adjunto: Si

    • Garaje: Si

    • Salón: 2247

    • Fuente de agua: Public

    • Tamaño de la parcela: 100 x 125

    • Nombre de subdivisión: ARIANA ESTATES

Casas similares

518 BENNETT STREET placeholder 518 BENNETT STREET
Nuevo
En Venta
Casa
$358,000
3 camas 2 baños 1,588 sqft
518 BENNETT STREET
125 RUDY STREET placeholder 125 RUDY STREET
-$10K (2025/12/16)
En Venta
Casa
$489,900
4 camas 3 baños 3,878 sqft
125 RUDY STREET
1206 SUSAN LANE placeholder 1206 SUSAN LANE
12 días
En Venta
Casa
$369,999
3 camas 2 baños 1,892 sqft
1206 SUSAN LANE
2080 KENNWOOD GROVE LANE placeholder 2080 KENNWOOD GROVE LANE
13 días
En Venta
Lotes / Tierras
$350,000
0 room(s)
2080 KENNWOOD GROVE LANE
1591 MATTIE POINTE PLACE placeholder 1591 MATTIE POINTE PLACE
18 días
En Venta
Casa
$398,000
4 camas 2 baños 1,989 sqft
1591 MATTIE POINTE PLACE
245 VIOLA DRIVE placeholder 245 VIOLA DRIVE
-$4K (2025/12/02)
En Venta
Casa
$470,900
4 camas 3 baños 2,509 sqft
245 VIOLA DRIVE
755 AUBURN GROVE COURT placeholder 755 AUBURN GROVE COURT
20 días
En Venta
Casa
$450,000
5 camas 3 baños 2,704 sqft
755 AUBURN GROVE COURT
102 DEEN BOULEVARD placeholder 102 DEEN BOULEVARD
20 días
En Venta
Casa
$399,000
4 camas 2 baños 2,059 sqft
102 DEEN BOULEVARD

The multiple listing information is provided by the Stellar MLS from a copyrighted compilation of listings. The compilation of listings and each individual listing are ©2025-present Stellar MLS. All Rights Reserved. The information provided is for consumers' personal, noncommercial use and may not be used for any purpose other than to identify prospective properties consumers may be interested in purchasing. All properties are subject to prior sale or withdrawal. All information provided is deemed reliable but is not guaranteed accurate, and should be independently verified. Listing courtesy of: REDFIN CORPORATION