Contacto
Cuéntenos sobre sus necesidades

12432 NOVA AVENUE

Casa Vendido Recientemente
$770,000

BTC: 8.86586068

ETH: 385.00000000

Fecha de venta: 2025-12-17
13 días
Frente al mar
3 camas
2 baños
2,401 sqft
Est. Rango de ventas estimado: $0 - $0
$0

Visión general

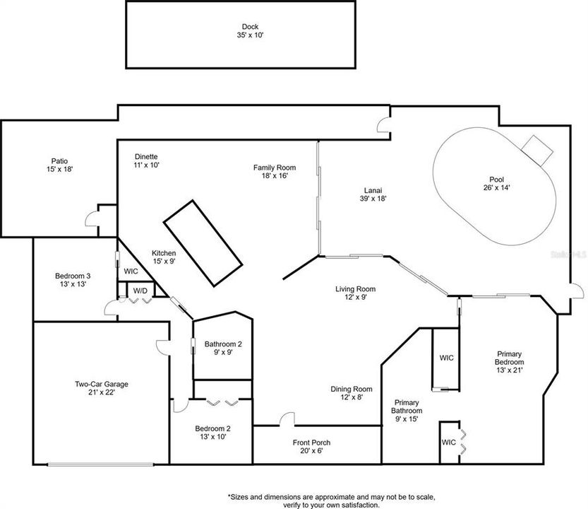
Wake up every day captivated by the sweeping PANORAMIC WATER VIEWS of the Myakka River from the comfort of this luxury Gulf Cove residence, custom built by the highly reputable FERO Homes. Perfectly positioned on a quiet cul-de-sac, this home offers 160 FEET OF PRISTINE WATERFRONT on an oversized lot—a dream retreat for boaters and those who love the waterfront lifestyle. Significant upgrades such as a NEWER ROOF AND A/C, plus IMPACT WINDOWS AND SLIDERS, ensure lasting comfort, energy efficiency, and confidence in every season. Step outside to your private (35ft x 10ft) DOCK WITH POWER AND WATER, featuring a 10,000 LB BOAT LIFT and SAILBOAT ACCESS—the ultimate setup for direct Gulf access via the scenic Myakka River. After a day on the water, unwind in your OVERSIZED HEATED POOL (26’ x 14’ with a 7-ft deep end), surrounded by an updated panoramic screened enclosure that makes every sunrise inspiring and every sunset a breathtaking display of orange and purple hues. Inside, soaring high ceilings, travertine-style tile floors, and a welcoming fireplace create a relaxed yet refined coastal ambiance. The chef’s kitchen is a showstopper, featuring quartz countertops, a massive island, custom cabinetry, pull-out pantry drawers, and a sleek Wolf downdraft vent that disappears when not in use. From the formal dining room to the sunlit breakfast nook, every space is designed to showcase those breathtaking water views. The primary suite is a private retreat with panoramic water views, direct pool access, and a spa-like bath complete with dual sinks, granite counters, a garden tub, and two large walk-in closets. A split floor plan ensures privacy for guests, with two additional bedrooms perfect for family, a home office, or creative space. Outdoor living shines here, ideal for entertaining or relaxing year-round. An optional $75 annual HOA fee includes access to a private community boat ramp just minutes away. Conveniently close to schools, shopping, and dining, and only a short drive to Englewood, Manasota Key, and Boca Grande beaches. Don’t miss the opportunity to make this waterfront gem your home!

Ubicación

Hechos y características

Tipo:
Residential
Estacionamiento:
Sin datos
Año de construcción:
1989
Lote:
0.29 Hectáreas
Calefacción:
Electric
precio por sq. medidor:
$323
Enfriamiento:
Central Air
HOA:
Sin datos
Más hechos y características
  • Piso

    • Carpet

    • Porcelain Tile

    Calefacción

    • Electric

    Enfriamiento

    • Central Air

    Accesorios

    • Convection Oven

    • Dishwasher

    • Disposal

    • Dryer

    • Electric Water Heater

    • Microwave

    • Range Hood

    • Refrigerator

    • Washer

    Otras características interiores

    • High Ceilings

    • Living Room/Dining Room Combo

    • Open Floorplan

    • Primary Bedroom Main Floor

    • Skylight(s)

    • Solid Surface Counters

    • Solid Wood Cabinets

    • Split Bedroom

    • Vaulted Ceiling(s)

    • Walk-In Closet(s)

    • Window Treatments

    Dormitorios y baños

    • Dormitorios: 3

    • Baños completos: 2

  • Propiedad

    • Pisos: One

    • Piscina Privada: Si

    • Características Exteriores: Irrigation System / Lighting / Outdoor Grill / Outdoor Shower / Private Mailbox / Sliding Doors

    Lote

    • Lote: 0.29 Hectáreas

    Otra Información de Propiedad

    • Número de Parcela: 402119429002

    • Zonificación: RSF3.5

  • Tipo y estilo

    • Tipo de propiedad: Residential

    • Subtipo de propiedad: Single Family Residence

  • Utilidad

    • Cable Connected

    • Electricity Connected

    • Fiber Optics

    • Water Connected

  • Otra información financiera

    • Importe anual de impuestos: $6,648

  • Detalles de la fuente

    • MLS ID: C7516757

    Otros hechos

    • Materiales de construcción: Block

    • Detalles de la fundación: Slab

    • Características de la chimenea: Electric / Living Room

    • Características de lavandería: Inside

    • Características del lote: Cul-De-Sac / City Lot / Irregular Lot / Landscaped / Oversized Lot

    • Características del patio y el porche: Covered / Enclosed / Front Porch / Screened

    • Características de la piscina: Gunite / Heated / In Ground

    • Características de la ventana: Storm Window(s)

    • Caras de dirección: South

    • Frente al mar: Si

    • Hogar: Si

    • Nombre del cuerpo de agua: MYAKKA RIVER

    • Espacios de garaje: 2

    • Garaje adjunto: Si

    • Garaje: Si

    • Salón: 2401

    • Fuente de agua: Public

    • Nombre de subdivisión: PORT CHARLOTTE SEC 060

Casas similares

13112 N MARSH DRIVE placeholder 13112 N MARSH DRIVE
Nuevo
Vendido Recientemente
Casa
$530,000
3 camas 2 baños 1,901 sqft
13112 N MARSH DRIVE
3165 SILKWOOD LANE placeholder 3165 SILKWOOD LANE
Nuevo
Vendido Recientemente
Casa
$549,500
2 camas 2 baños 2,059 sqft
3165 SILKWOOD LANE
14116 MYAKKA POINTE DRIVE placeholder 14116 MYAKKA POINTE DRIVE
Nuevo
Vendido Recientemente
Casa
$870,000
4 camas 3 baños 2,493 sqft
14116 MYAKKA POINTE DRIVE
14010 ROYAL POINTE DRIVE placeholder 14010 ROYAL POINTE DRIVE
Nuevo
Vendido Recientemente
Casa
$647,000
3 camas 3 baños 3,445 sqft
14010 ROYAL POINTE DRIVE
13379 GOLF POINTE DRIVE placeholder 13379 GOLF POINTE DRIVE
Nuevo
Vendido Recientemente
Casa
$599,000
3 camas 2 baños 2,017 sqft
13379 GOLF POINTE DRIVE
14117 MYAKKA POINTE DRIVE placeholder 14117 MYAKKA POINTE DRIVE
Nuevo
Vendido Recientemente
Casa
$950,000
4 camas 3 baños 3,140 sqft
14117 MYAKKA POINTE DRIVE
14181 MYAKKA POINTE DRIVE placeholder 14181 MYAKKA POINTE DRIVE
Nuevo
Vendido Recientemente
Casa
$775,500
3 camas 3 baños 2,434 sqft
14181 MYAKKA POINTE DRIVE
14109 MYAKKA POINTE DRIVE placeholder 14109 MYAKKA POINTE DRIVE
Nuevo
Vendido Recientemente
Casa
$875,000
4 camas 4 baños 3,227 sqft
14109 MYAKKA POINTE DRIVE

The multiple listing information is provided by the Stellar MLS from a copyrighted compilation of listings. The compilation of listings and each individual listing are ©2025-present Stellar MLS. All Rights Reserved. The information provided is for consumers' personal, noncommercial use and may not be used for any purpose other than to identify prospective properties consumers may be interested in purchasing. All properties are subject to prior sale or withdrawal. All information provided is deemed reliable but is not guaranteed accurate, and should be independently verified. Listing courtesy of: PREFERRED SHORE LLC