Contacto
Cuéntenos sobre sus necesidades

12917 42ND TERRACE W

Casa En Venta
$3,399,000

BTC: 113.30000000

ETH: 1,699.50000000

-$490K (2025/08/27)
286 días
Frente al mar
4 camas
3 baños
2,798 sqft
Est. Rango de ventas estimado: $0 - $0
$0

Visión general

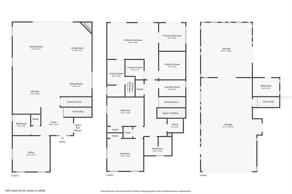
Welcome to this stunning home in the exclusive Sunset Harbor gated community, a private enclave of eight custom-built residences situated on the tranquil Anna Maria Sound. No expense was spared on this gorgeous waterfront home featuring 4 bedroom 3.5 baths with over 5000 sq ft of indoor/outdoor living space. Ceiling fans in every bedroom, custom shelving enhanced closets, upgraded lighting, quartz countertops, custom cabinets and trim work throughout, solid wood 8’ doors, Hunter Douglas plantation shutters, and a stunning hand-built Ambrosia maple wood staircase are just a some of the features in this newly constructed custom home. Built to Florida Category 5 hurricane standards, this residence includes a tankless water heater, two Trane heating and air conditioning units, controlled by Honeywell Home programmable thermostats and a 50-year concrete flat roof and newly installed reinforced rip rap along a concrete wall at the rear of the property add durability. Step outside to your oasis back yard complete with a 11 by 38-foot heated saltwater pool and spa with designer lighting, all set atop a concrete raised platform. An outdoor custom built outdoor kitchen with a wet bar, refrigerator and propane-powered grill are perfect for entertaining and dining poolside while enjoying incredible views of Anna Maria sound. A 950-pound capacity elevator with Italian marble flooring serves all three floors. The rear of the home includes two 10-by-30-foot fenced decks with porcelain tile flooring, a new dock with an assigned slip that includes a 10,000-pound lift with water and power. The garage level is built on 31 thirty-foot concrete/steel reinforced pylons and features an outdoor shower and a 75-by-25-foot outdoor living area with custom turf and travertine pavers. The oversized garage accommodates 2-4 vehicles and features keyless entry, epoxy concrete flooring, and aluminum ceiling storage racks. The second floor showcases custom-built cabinets in the library, a Hunter Douglas hardwired designer roller sunshade on the slider, a 9-by-11-foot covered front porch, and a custom hand-built fireplace mantle with a propane starting system. The kitchen is thoughtfully designed with lighting in and under the cabinets, a farmhouse porcelain sink, a Kitchen-Aid ice maker that produces 25 pounds of ice daily, a Silhouette professional beverage refrigerator, and custom-built cabinets with a hooded specialty-designed vent. Schedule your private showing today!

Ubicación

Hechos y características

Tipo:
Residential
Estacionamiento:
Sin datos
Año de construcción:
2023
Lote:
0.23 Hectáreas
Calefacción:
Central
precio por sq. medidor:
$1,215
Enfriamiento:
Central Air
HOA:
$4,000
Más hechos y características
  • Piso

    • Carpet

    • Porcelain Tile

    • Hardwood

    Calefacción

    • Central

    Enfriamiento

    • Central Air

    Accesorios

    • Bar Fridge

    • Built-In Oven

    • Cooktop

    • Dishwasher

    • Dryer

    • Ice Maker

    • Microwave

    • Tankless Water Heater

    Otras características interiores

    • Built-in Features

    • Ceiling Fan(s)

    • Elevator

    • High Ceilings

    • Kitchen/Family Room Combo

    • Solid Wood Cabinets

    • Thermostat

    • Vaulted Ceiling(s)

    • Walk-In Closet(s)

    • Window Treatments

    Dormitorios y baños

    • Dormitorios: 4

    • Baños: 1

    • Baños completos: 3

  • Propiedad

    • Pisos: Two

    • Piscina Privada: Si

    • Características Exteriores: Irrigation System / Outdoor Kitchen / Outdoor Shower / Private Mailbox / Sliding Doors

    Lote

    • Lote: 0.23 Hectáreas

    Otra Información de Propiedad

    • Número de Parcela: 7619700250

    • Zonificación: PDR/CH

  • Tipo y estilo

    • Tipo de propiedad: Residential

    • Subtipo de propiedad: Single Family Residence

  • Utilidad

    • Cable Connected

    • Electricity Connected

    • Sewer Connected

    • Street Lights

    • Water Connected

  • Otra información financiera

    • HOA: $4,000

    • Frecuencia HOA: Annually

    • Importe anual de impuestos: $21,660

  • Detalles de la fuente

    • MLS ID: A4638181

    Otros hechos

    • Materiales de construcción: Block / Wood Frame

    • Detalles de la fundación: Slab

    • Características de lavandería: Laundry Room

    • Características de la piscina: Gunite / Heated / In Ground / Salt Water

    • Caras de dirección: West

    • Frente al mar: Si

    • Espacios de garaje: 4

    • Garaje adjunto: Si

    • Garaje: Si

    • Salón: 2798

    • Fuente de agua: Public

    • Nombre de subdivisión: SUNSET HARBOR

Casas similares

3708 GULF DRIVE UNIT 1 placeholder 3708 GULF DRIVE UNIT 1
3 días
En Venta
Condo / Coop
$2,395,000
2 camas 2 baños 1,398 sqft
3708 GULF DRIVE UNIT 1
2908 AVENUE B placeholder 2908 AVENUE B
10 días
En Venta
Casa
$3,150,000
4 camas 3 baños 2,701 sqft
2908 AVENUE B
9816 2ND TERRACE NW placeholder 9816 2ND TERRACE NW
10 días
En Venta
Casa
$3,299,000
3 camas 4 baños 4,176 sqft
9816 2ND TERRACE NW
651 BROADWAY STREET placeholder 651 BROADWAY STREET
12 días
En Venta
Casa
$2,899,000
4 camas 3 baños 3,320 sqft
651 BROADWAY STREET
403 GULF DRIVE S placeholder 403 GULF DRIVE S
14 días
En Venta
Lotes / Tierras
$2,399,000
0 room(s)
403 GULF DRIVE S
305 55TH STREET placeholder 305 55TH STREET
14 días
En Venta
Casa
$4,395,000
4 camas 4 baños 3,010 sqft
305 55TH STREET
108 11TH STREET S placeholder 108 11TH STREET S
15 días
En Venta
Casa
$3,999,000
7 camas 7 baños 3,266 sqft
108 11TH STREET S
215 64TH STREET placeholder 215 64TH STREET
15 días
En Venta
Casa
$3,395,000
4 camas 3 baños 2,690 sqft
215 64TH STREET

The multiple listing information is provided by the Stellar MLS from a copyrighted compilation of listings. The compilation of listings and each individual listing are ©2025-present Stellar MLS. All Rights Reserved. The information provided is for consumers' personal, noncommercial use and may not be used for any purpose other than to identify prospective properties consumers may be interested in purchasing. All properties are subject to prior sale or withdrawal. All information provided is deemed reliable but is not guaranteed accurate, and should be independently verified. Listing courtesy of: MICHAEL SAUNDERS & COMPANY