Contacto
Cuéntenos sobre sus necesidades

1370 JANE LACEY LANE

Casa Vendido Recientemente
$800,000

BTC: 9.26462073

ETH: 273.41079973

Fecha de venta: 2025-12-15
18 días
4 camas
2 baños
3,052 sqft
Est. Rango de ventas estimado: $0 - $0
$0

Visión general

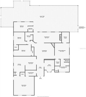
Discover country living with convenience on this 2.5-acre gated property just minutes from shopping, dining, golf, 7 miles to the beach. The 4-bedroom, 2.5-bath main home features an open layout, screened lanai, and sparkling pool—perfect for entertaining or relaxing. Main home features tile flooring throughout, wood burning fireplace in living room and electric fireplace in the family room, vaulted ceilings w/ skylights and metal roofing plus a game room with bar but potential to convert back to 2 car garage. Large screened lanai with pool feature half bath, firepit and grill area, plus bar and room for a spa. A detached garage has been converted into a comfortable in-law residence complete with kitchenette, bedroom, bathroom, and storage. Additional highlights include an RV carport, 1-stall barn, and fenced area ready for horses. Enjoy privacy, space, and versatility—all within easy reach of town amenities.

Ubicación

Hechos y características

Tipo:
Residential
Estacionamiento:
Bath In Garage / Boat / Circular Driveway / Converted Garage / Covered / Guest / Off Street / Oversized / RV Carport / RV Parking / Workshop in Garage
Año de construcción:
1990
Lote:
2.50 Hectáreas
Calefacción:
Central / Electric
precio por sq. medidor:
$278
Enfriamiento:
Central Air
HOA:
Sin datos
Más hechos y características
  • Piso

    • Ceramic Tile

    Calefacción

    • Central

    • Electric

    Enfriamiento

    • Central Air

    Accesorios

    • Dishwasher

    • Dryer

    • Electric Water Heater

    • Microwave

    • Range

    • Refrigerator

    • Washer

    Otras características interiores

    • Built-in Features

    • Ceiling Fan(s)

    • Crown Molding

    • Dry Bar

    • Eating Space In Kitchen

    • High Ceilings

    • Open Floorplan

    • Primary Bedroom Main Floor

    • Skylight(s)

    • Split Bedroom

    • Stone Counters

    • Vaulted Ceiling(s)

    • Walk-In Closet(s)

    • Window Treatments

    Dormitorios y baños

    • Dormitorios: 4

    • Baños: 1

    • Baños completos: 2

  • Estacionamiento

    • Bath In Garage

    • Boat

    • Circular Driveway

    • Converted Garage

    • Covered

    • Guest

    • Off Street

    • Oversized

    • RV Carport

    • RV Parking

    • Workshop in Garage

    Propiedad

    • Pisos: One

    • Piscina Privada: Si

    • Características Exteriores: Hurricane Shutters / Irrigation System / Lighting / Outdoor Grill / Outdoor Shower / Rain Gutters / Storage

    Lote

    • Lote: 2.50 Hectáreas

    Otra Información de Propiedad

    • Número de Parcela: 734005000030

    • Zonificación: 01A3

  • Tipo y estilo

    • Tipo de propiedad: Residential

    • Subtipo de propiedad: Single Family Residence

  • Utilidad

    • Public

    • Water Connected

  • Otra información financiera

    • Importe anual de impuestos: $2,806

  • Detalles de la fuente

    • MLS ID: NS1086293

    Otros hechos

    • Materiales de construcción: Brick / Stucco / Wood Frame

    • Detalles de la fundación: Slab

    • Características de la chimenea: Electric / Wood Burning

    • Características de lavandería: Laundry Room

    • Características del lote: Landscaped / Near Golf Course / Private / Zoned for Horses

    • Características del patio y el porche: Covered / Enclosed / Front Porch / Rear Porch / Screened

    • Características de la piscina: In Ground / Lighting / Outside Bath Access / Pool Sweep / Screen Enclosure

    • Características de la ventana: Blinds / Shutters / Window Treatments

    • Caras de dirección: East

    • Otras estructuras: Barn(s) / Finished RV Port / Guest House / Shed(s) / Storage / Workshop

    • Hogar: Si

    • Espacios de garaje: 3

    • Garaje: Si

    • Salón: 3052

    • Fuente de agua: Public

    • Tamaño de la parcela: 231 x 454

    • Nombre de subdivisión: TURNBULL BAY WOODS

Casas similares

 placeholder
Nuevo
Vendido Recientemente
Casa
$610,000
3 camas 2 baños 1,710 sqft
116 PONCE DE LEON CIRCLE placeholder 116 PONCE DE LEON CIRCLE
Nuevo
Vendido Recientemente
Casa
$1,100,000
3 camas 2 baños 2,617 sqft
116 PONCE DE LEON CIRCLE
803 CANYON CREEK DRIVE placeholder 803 CANYON CREEK DRIVE
Nuevo
Vendido Recientemente
Casa
$652,515
5 camas 3 baños 3,287 sqft
803 CANYON CREEK DRIVE
705 COPPER CREEK DRIVE placeholder 705 COPPER CREEK DRIVE
Nuevo
Vendido Recientemente
Casa
$600,672
4 camas 3 baños 2,551 sqft
705 COPPER CREEK DRIVE
74 RAINS COURT placeholder 74 RAINS COURT
Nuevo
Vendido Recientemente
Casa
$618,000
3 camas 2 baños 1,964 sqft
74 RAINS COURT
115 INLET HARBOR ROAD placeholder 115 INLET HARBOR ROAD
Nuevo
Vendido Recientemente
$600,000
6 camas 5 baños 4,056 sqft
115 INLET HARBOR ROAD
2858 SUNSET DRIVE placeholder 2858 SUNSET DRIVE
Nuevo
Vendido Recientemente
Casa
$599,900
3 camas 2 baños 1,333 sqft
2858 SUNSET DRIVE
1751 HIDEAWAY FOREST TRAIL placeholder 1751 HIDEAWAY FOREST TRAIL
Nuevo
Vendido Recientemente
Casa
$800,000
3 camas 2 baños 2,227 sqft
1751 HIDEAWAY FOREST TRAIL

The multiple listing information is provided by the Stellar MLS from a copyrighted compilation of listings. The compilation of listings and each individual listing are ©2025-present Stellar MLS. All Rights Reserved. The information provided is for consumers' personal, noncommercial use and may not be used for any purpose other than to identify prospective properties consumers may be interested in purchasing. All properties are subject to prior sale or withdrawal. All information provided is deemed reliable but is not guaranteed accurate, and should be independently verified. Listing courtesy of: WATSON REALTY CORP