Contacto
Cuéntenos sobre sus necesidades

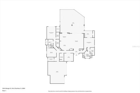
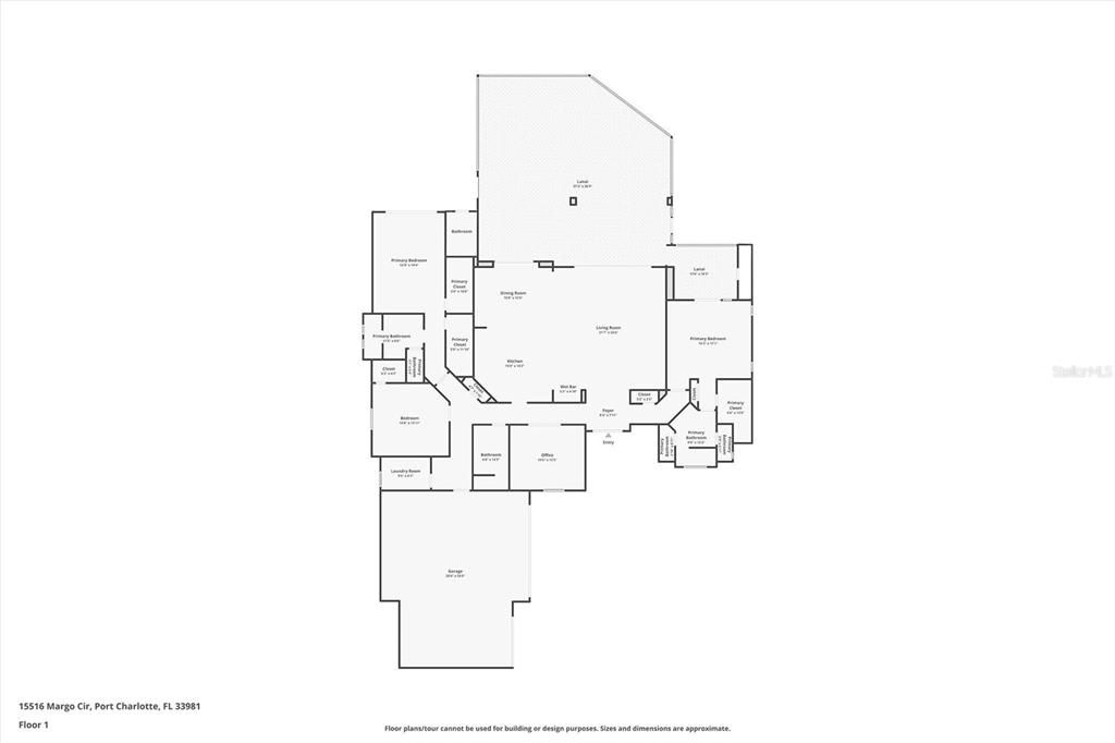
15516 MARGO CIRCLE

Casa En Venta
$1,395,000

BTC: 20.70747727

ETH: 726.56250000

-$55K (2026/01/07)
76 días
Frente al mar
3 camas
3 baños
3,208 sqft
Est. Rango de ventas estimado: $0 - $0
$0

Visión general

WATERFRONT LUXURY LIVING – “LUKE BROTHERS” CUSTOM MINI ESTATE HOME IN SOUTH GULF COVE! This spectacular 3-bedroom, 3.5-bath, 3-car garage waterfront pool home offers the ultimate blend of luxury, comfort, and Florida coastal charm. Sitting proudly on almost a half-acre sailboat water tip lot with 149 feet of concrete seawall and mesmerizing views of intersecting canals! This property has one of the closest locations to the lock with immediate access to the river! From your covered composite dock with water and electric, a 10,000 LB boat lift, and a lower deck perfect for kayak access, you’ll have quick access to Charlotte Harbor and the Gulf of Mexico. Step inside and feel the elegance immediately. With over 3,200 sq ft of meticulously designed space, this home features two master suites, each with its own private ensuite bath and lanai access. Volume ceilings soar high above with lighted double tray details in the great room, dining room, and both master suites—adding brilliance to every gathering. The porcelain plank tile flooring, plantation shutters, and crown molding create a polished and timeless appeal throughout. The grand center island kitchen is a chef’s dream, complete with rich wood cabinetry, under-cabinet lighting, and Cambria quartz countertops that flow seamlessly through the entire home. Enjoy a built-in pantry with pull-out drawers, slow-close cabinets, and a lighted quartz bar that makes entertaining effortless. Every glance from the kitchen, dining area, and great room leads your eyes to the sparkling pool and wide canal views. Each bedroom is generously sized with walk-in closets, lighted tray ceilings, and spa-inspired bathrooms featuring quartz counters, dual sinks, and tiled walk-in showers with glass enclosures. The oversized three-car garage offers epoxy flooring, a built-in workshop, and a central vacuum system. The brick paver driveway and double leaded-glass entry doors set an impressive tone, while the paver pool deck, under-fascia lighting, and lighted dock path make evenings magical. With sprayed attic insulation, your home stays cool and efficient year-round. Located in the highly desirable South Gulf Cove waterfront community, this property offers convenient access to shopping, dining, Town Center Mall, Boca Grande beaches, and the beautiful Gulf waters. Whether boating, fishing, or relaxing by the pool and spa, every day feels like paradise in this high-quality, custom-built home. Schedule your private showing today and experience waterfront luxury at its finest!

Ubicación

Hechos y características

Tipo:
Residential
Estacionamiento:
Boat / Driveway / Garage Door Opener / Golf Cart Parking / Guest / RV Parking
Año de construcción:
2017
Lote:
0.39 Hectáreas
Calefacción:
Central
precio por sq. medidor:
$435
Enfriamiento:
Central Air
HOA:
Sin datos
Más hechos y características
  • Piso

    • Tile

    Calefacción

    • Central

    Enfriamiento

    • Central Air

    Accesorios

    • Dishwasher

    • Microwave

    • Range

    • Refrigerator

    Otras características interiores

    • Built-in Features

    • Ceiling Fan(s)

    • Crown Molding

    • Eating Space In Kitchen

    • High Ceilings

    • Living Room/Dining Room Combo

    • Open Floorplan

    • Solid Surface Counters

    • Split Bedroom

    • Stone Counters

    • Thermostat

    • Tray Ceiling(s)

    • Walk-In Closet(s)

    • Window Treatments

    Dormitorios y baños

    • Dormitorios: 3

    • Baños: 1

    • Baños completos: 3

  • Estacionamiento

    • Boat

    • Driveway

    • Garage Door Opener

    • Golf Cart Parking

    • Guest

    • RV Parking

    Propiedad

    • Pisos: One

    • Piscina Privada: Si

    • Características Exteriores: Irrigation System / Lighting / Outdoor Grill / Outdoor Kitchen / Rain Gutters / Sidewalk / Sliding Doors / Storage

    Lote

    • Lote: 0.39 Hectáreas

    Otra Información de Propiedad

    • Número de Parcela: 412115201004

    • Zonificación: RSF3.5

  • Tipo y estilo

    • Tipo de propiedad: Residential

    • Subtipo de propiedad: Single Family Residence

  • Utilidad

    • Cable Available

    • Electricity Connected

    • Public

  • Otra información financiera

    • Importe anual de impuestos: $18,045

  • Detalles de la fuente

    • MLS ID: C7516662

    Otros hechos

    • Materiales de construcción: Block / Stucco

    • Detalles de la fundación: Slab

    • Características de lavandería: Electric Dryer Hookup / Inside / Laundry Room / Washer Hookup

    • Características del lote: In County / Irregular Lot / Landscaped / Oversized Lot

    • Características del patio y el porche: Covered / Deck / Front Porch / Patio / Porch / Rear Porch / Screened

    • Características de la piscina: Deck / Gunite / Heated / In Ground / Outside Bath Access / Screen Enclosure

    • Características de la ventana: Shutters

    • Caras de dirección: South

    • Otras estructuras: Outdoor Kitchen

    • Estilo arquitectónico: Florida

    • Frente al mar: Si

    • Nombre del cuerpo de agua: TATE WATERWAY

    • Espacios de garaje: 3

    • Garaje adjunto: Si

    • Garaje: Si

    • Salón: 3208

    • Fuente de agua: Public

    • Tamaño de la parcela: 63 x 189 x 149 x 134

    • Nombre de subdivisión: PORT CHARLOTTE SEC 093

Casas similares

13428 AMARYLLIS CIRCLE placeholder 13428 AMARYLLIS CIRCLE
5 días
En Venta
Casa
$1,180,000
4 camas 3 baños 2,472 sqft
13428 AMARYLLIS CIRCLE
15650 MEACHAM CIRCLE placeholder 15650 MEACHAM CIRCLE
27 días
En Venta
Casa
$1,200,000
3 camas 3 baños 2,471 sqft
15650 MEACHAM CIRCLE
15212 AQUARIUS CIRCLE placeholder 15212 AQUARIUS CIRCLE
36 días
En Venta
Casa
$1,149,000
4 camas 4 baños 2,591 sqft
15212 AQUARIUS CIRCLE
15872 MELPORT CIRCLE placeholder 15872 MELPORT CIRCLE
40 días
En Venta
Casa
$1,100,000
3 camas 3 baños 2,261 sqft
15872 MELPORT CIRCLE
14412 PONCE DE LEON TRAIL placeholder 14412 PONCE DE LEON TRAIL
47 días
En Venta
Casa
$1,075,000
4 camas 2 baños 2,366 sqft
14412 PONCE DE LEON TRAIL
8379 GASPARILLA ROAD placeholder 8379 GASPARILLA ROAD
50 días
En Venta
Comercial
$1,640,000
0 room(s) 6,048 sqft
8379 GASPARILLA ROAD
9222 ROSEBUD CIRCLE placeholder 9222 ROSEBUD CIRCLE
51 días
En Venta
Casa
$1,664,000
4 camas 3 baños 3,156 sqft
9222 ROSEBUD CIRCLE
14299 MONTMARTE AVENUE placeholder 14299 MONTMARTE AVENUE
-$22K (2026/01/03)
En Venta
Casa
$1,078,000
4 camas 3 baños 2,257 sqft
14299 MONTMARTE AVENUE

The multiple listing information is provided by the Stellar MLS from a copyrighted compilation of listings. The compilation of listings and each individual listing are ©2026-present Stellar MLS. All Rights Reserved. The information provided is for consumers' personal, noncommercial use and may not be used for any purpose other than to identify prospective properties consumers may be interested in purchasing. All properties are subject to prior sale or withdrawal. All information provided is deemed reliable but is not guaranteed accurate, and should be independently verified. Listing courtesy of: KW PEACE RIVER PARTNERS