Contacto
Cuéntenos sobre sus necesidades

1781 Fairfield, Port Saint Lucie, FL 34983

Casa En Venta
$275,000

BTC: 3.18471338

ETH: 93.98496241

70 días
Frente al mar
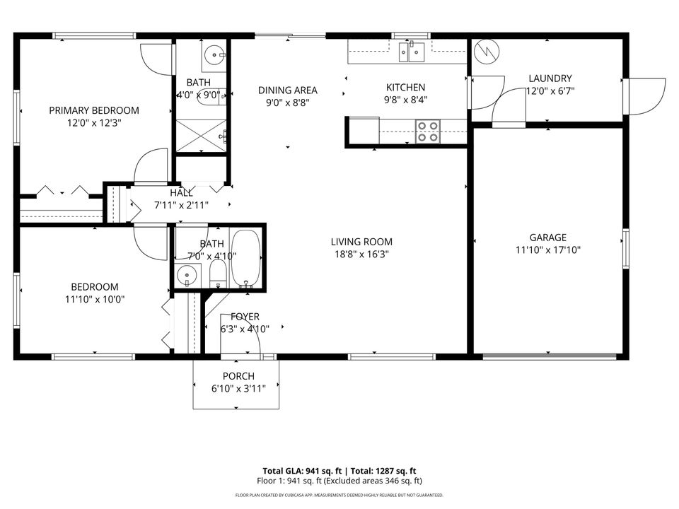
2 camas
2 baños
999 sqft
Est. Rango de ventas estimado: $0 - $0
$0

Visión general

This CBS 2-bedroom, 2-bathroom pool home with a 1-car garage is situated on a 0.23-acre lot in Port St. Lucie and presents an excellent opportunity for buyers seeking value and potential. The property features a rear canal, a shed, a fenced pool area, and convenient side access to the garage. Inside, the home offers a blank canvas with Corian kitchen countertops and additional storage closets, ready for your personal touches and updates. Centrally located near US-1 and Crosstown Parkway, this property offers easy access to shopping, dining, and major roadways. Buyer to verify exposure all measurements are approximate NO SITE UNSEEN OFFERS

Ubicación

Hechos y características

Tipo:
Residential
Estacionamiento:
Garage - Attached
Año de construcción:
1980
Lote:
10000 Pies Cuadrados
Calefacción:
Central / Electric
precio por sq. medidor:
$275
Enfriamiento:
Central / Electric
HOA:
Sin datos
Más hechos y características
  • Piso

    • Carpet

    • Parquet Floor

    • Tile

    Calefacción

    • Central

    • Electric

    Enfriamiento

    • Central

    • Electric

    Accesorios

    • Water Heater - Elec

    Otras características interiores

    • Stack Bedrooms

    Dormitorios y baños

    • Dormitorios: 2

    • Baños completos: 2

  • Estacionamiento

    • Garage - Attached

    Propiedad

    • Piscina Privada: Si

    • Características Exteriores: Fence / Screened Patio

    Lote

    • Lote: 10000 Pies Cuadrados

    Otra Información de Propiedad

    • Número de Parcela: 342054507490005

    • Zonificación: RS-2PS

  • Tipo y estilo

    • Tipo de propiedad: Residential

    • Subtipo de propiedad: Single Family Residence

  • Utilidad

    • Public Sewer

    • Public Water

  • Otra información financiera

    • Importe anual de impuestos: $5,414

  • Detalles de la fuente

    • MLS ID: RX-11132751

    Otros hechos

    • Materiales de construcción: CBS / Concrete

    • Características del lote: < 1/4 Acre

    • Características del patio y el porche: Patio

    • Características de la piscina: Concrete

    • Caras de dirección: Port St Lucie BLVD> Airoso Blvd >Thornhill> Fairfield

    • Frente al mar: Si

    • Espacios de garaje: 1

    • Garaje: Si

    • Salón: 999

    • Nombre de subdivisión: PORT ST LUCIE SECTION 10

Casas similares

168 Majestic, Port Saint Lucie, FL 34984 placeholder 168 Majestic, Port Saint Lucie, FL 34984
2 días
En Venta
Casa
$299,000
3 camas 2 baños 1,337 sqft
168 Majestic, Port Saint Lucie, FL 34984
1822 SE Oxmoor Ct, Port St. Lucie FL 34952 placeholder 1822 SE Oxmoor Ct, Port St. Lucie FL 34952
5 días
En Venta
Casa
$350,000
3 camas 2 baños 1,176 sqft
1822 SE Oxmoor Ct, Port St. Lucie FL 34952
1638 Green Acres, Port Saint Lucie, FL 34952 placeholder 1638 Green Acres, Port Saint Lucie, FL 34952
6 días
En Venta
Casa
$249,900
2 camas 2 baños 1,154 sqft
1638 Green Acres, Port Saint Lucie, FL 34952
821 Solaz, Port Saint Lucie, FL 34983 placeholder 821 Solaz, Port Saint Lucie, FL 34983
-$10K (2025/12/22)
En Venta
Casa
$275,000
3 camas 2 baños 1,136 sqft
821 Solaz, Port Saint Lucie, FL 34983
31 Alhambra, Port Saint Lucie, FL 34952 placeholder 31 Alhambra, Port Saint Lucie, FL 34952
7 días
En Venta
Casa
$229,000
2 camas 2 baños 1,451 sqft
31 Alhambra, Port Saint Lucie, FL 34952
1809 Morelia, Port Saint Lucie, FL 34953 placeholder 1809 Morelia, Port Saint Lucie, FL 34953
7 días
En Venta
Casa
$284,600
3 camas 2 baños 1,000 sqft
1809 Morelia, Port Saint Lucie, FL 34953
520 Azalea, Port Saint Lucie, FL 34983 placeholder 520 Azalea, Port Saint Lucie, FL 34983
8 días
En Venta
Casa
$329,900
2 camas 2 baños 960 sqft
520 Azalea, Port Saint Lucie, FL 34983
2975 Fiddlewood, Port Saint Lucie, FL 34952 placeholder 2975 Fiddlewood, Port Saint Lucie, FL 34952
8 días
En Venta
Casa
$214,900
2 camas 2 baños 936 sqft
2975 Fiddlewood, Port Saint Lucie, FL 34952

The multiple listing information is provided by the Beaches MLS from a copyrighted compilation of listings. The compilation of listings and each individual listing are ©2025-present Beaches MLS. All Rights Reserved. The information provided is for consumers' personal, noncommercial use and may not be used for any purpose other than to identify prospective properties consumers may be interested in purchasing. All properties are subject to prior sale or withdrawal. All information provided is deemed reliable but is not guaranteed accurate, and should be independently verified. Listing courtesy of: Genstone Realty