Contacto
Cuéntenos sobre sus necesidades

1826 RIVER WATCH BOULEVARD

Casa En Venta
$575,000

BTC: 6.65894615

ETH: 196.51401230

20 días
Frente al mar
4 camas
3 baños
2,428 sqft
Est. Rango de ventas estimado: $0 - $0
$0

Visión general

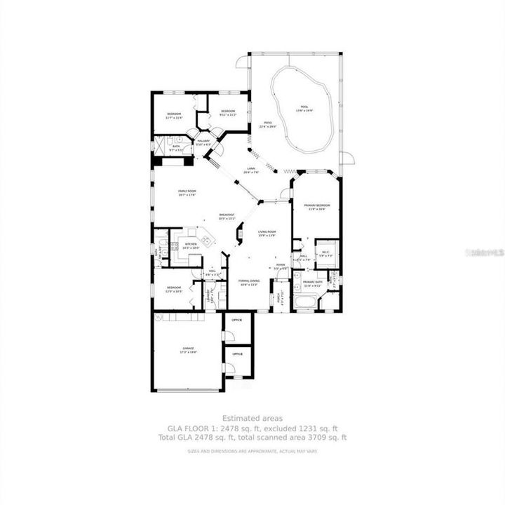
Discover this newly updated and impressively spacious 4-bedroom, 3-bath pond-front pool home, complete with a rare two-room bonus suite off the full-size two-car garage—ideal for a workshop, private gym, music studio, office, or extra air-conditioned storage. Step inside and be immediately captivated by the bright, open-concept floor plan. The gourmet kitchen has been fully transformed with brand-new hardwood, soft-close shaker cabinets, sparkling white quartz countertops, an island sink equipped with a premium Delta 2.0 faucet and glass rinser, modern LED fixtures, under-cabinet lighting, and Basel Oak parquet XPR luxury vinyl plank flooring that flows seamlessly through the kitchen, family room, living room, and dining room. The interior has been freshly painted in Sherwin Williams Chantilly Lace, enhancing the natural light that pours in through multiple sets of glass sliders and windows overlooking the serene pond-front pool deck. The entire pool cage has been rescreened, and every bedroom—as well as the family and formal living rooms—features new contemporary ceiling fans with color-adjustable integrated LED lighting. This home offers peace of mind as well as beauty: never flooded, no flood insurance required (located in the preferred X zone), and equipped with storm shutters for all windows and doors, including quick-close shutters on every pool-access point. The water heater and living-room fireplace run on natural gas. Significant structural and system updates include permitted deep compaction grouting (completed and finalized in 2015 with all documentation available, a new roof in 2018, and A/C replaced in 2014. Residents of the sought-after River Watch community enjoy exclusive access to a private boat ramp on the 30-mile Anclote River, which winds westward to the Gulf of Mexico—perfect for boating, fishing, kayaking, or paddleboarding right from your own neighborhood. A community park and playground sit just 200 feet from your doorstep. This exceptional property blends modern upgrades, thoughtful features, and a prime waterfront lifestyle—an opportunity you won’t want to miss.

Ubicación

Hechos y características

Tipo:
Residential
Estacionamiento:
Driveway / Garage Door Opener
Año de construcción:
1996
Lote:
0.17 Hectáreas
Calefacción:
Electric / Natural Gas
precio por sq. medidor:
$237
Enfriamiento:
Central Air
HOA:
$878
Más hechos y características
  • Piso

    • Carpet

    • Luxury Vinyl

    Calefacción

    • Electric

    • Natural Gas

    Enfriamiento

    • Central Air

    Accesorios

    • Dishwasher

    • Electric Water Heater

    • Microwave

    • Refrigerator

    Otras características interiores

    • Ceiling Fan(s)

    • High Ceilings

    • Open Floorplan

    • Stone Counters

    • Window Treatments

    Dormitorios y baños

    • Dormitorios: 4

    • Baños completos: 3

  • Estacionamiento

    • Driveway

    • Garage Door Opener

    Propiedad

    • Pisos: One

    • Piscina Privada: Si

    • Características Exteriores: Hurricane Shutters / Irrigation System / Lighting / Rain Gutters / Sliding Doors

    Lote

    • Lote: 0.17 Hectáreas

    Otra Información de Propiedad

    • Número de Parcela: 062716758610001380

  • Tipo y estilo

    • Tipo de propiedad: Residential

    • Subtipo de propiedad: Single Family Residence

  • Utilidad

    • Natural Gas Connected

    • Public

    • Water Connected

  • Otra información financiera

    • HOA: $878

    • Frecuencia HOA: Annually

    • Importe anual de impuestos: $7,993

  • Detalles de la fuente

    • MLS ID: TB8453110

    Otros hechos

    • Materiales de construcción: Block / Stucco

    • Detalles de la fundación: Slab

    • Características de la chimenea: Gas / Wood Burning

    • Características de lavandería: Laundry Room

    • Características de la piscina: In Ground / Lighting / Pool Sweep

    • Caras de dirección: Southeast

    • Frente al mar: Si

    • Hogar: Si

    • Nombre del cuerpo de agua: ANCLOTE RIVER

    • Espacios de garaje: 2

    • Garaje adjunto: Si

    • Garaje: Si

    • Salón: 2428

    • Fuente de agua: Public

    • Nombre de subdivisión: RIVER WATCH

Casas similares

200 MERES BOULEVARD UNIT 16 placeholder 200 MERES BOULEVARD UNIT 16
9 días
En Venta
Condo / Coop
$425,000
2 camas 2 baños 965 sqft
200 MERES BOULEVARD UNIT 16
2749 BIG PINE DRIVE placeholder 2749 BIG PINE DRIVE
9 días
En Venta
Casa
$419,000
3 camas 2 baños 1,510 sqft
2749 BIG PINE DRIVE
5749 BACARDI COURT placeholder 5749 BACARDI COURT
14 días
En Venta
Casa
$419,000
3 camas 2 baños 1,660 sqft
5749 BACARDI COURT
5904 SPRINGRUN COURT placeholder 5904 SPRINGRUN COURT
16 días
En Venta
Casa
$479,000
3 camas 2 baños 2,284 sqft
5904 SPRINGRUN COURT
2320 RIKKOLA LANE placeholder 2320 RIKKOLA LANE
-$750 (2025/12/23)
En Venta
Casa
$564,990
4 camas 3 baños 3,316 sqft
2320 RIKKOLA LANE
2012 FERN RIDGE COURT placeholder 2012 FERN RIDGE COURT
22 días
En Venta
Casa
$500,000
4 camas 3 baños 2,768 sqft
2012 FERN RIDGE COURT
838 CALLISTA CAY placeholder 838 CALLISTA CAY
-$127K (2025/12/19)
En Venta
Adosados
$423,225
3 camas 2 baños 2,222 sqft
838 CALLISTA CAY
39924 US HIGHWAY 19 HIGHWAY N UNIT 39924 placeholder 39924 US HIGHWAY 19 HIGHWAY N UNIT 39924
29 días
En Venta
Comercial
$649,000
0 room(s) 2,200 sqft
39924 US HIGHWAY 19 HIGHWAY N UNIT 39924

The multiple listing information is provided by the Stellar MLS from a copyrighted compilation of listings. The compilation of listings and each individual listing are ©2025-present Stellar MLS. All Rights Reserved. The information provided is for consumers' personal, noncommercial use and may not be used for any purpose other than to identify prospective properties consumers may be interested in purchasing. All properties are subject to prior sale or withdrawal. All information provided is deemed reliable but is not guaranteed accurate, and should be independently verified. Listing courtesy of: COASTAL PROPERTIES GROUP INTERNATIONAL