Contacto
Cuéntenos sobre sus necesidades

2 SUMMERWOOD ROAD N

Casa Activo con contrato
$459,990

BTC: 15.33300000

ETH: 229.99500000

75 días
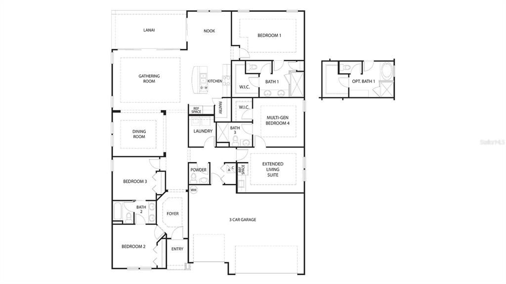
4 camas
3 baños
2,498 sqft
Est. Rango de ventas estimado: $0 - $0
$0

Visión general

Under Construction. Welcome to Sawmill Branch! We are proud to build in beautiful Flagler County. Homes are located minutes from fantastic shopping, dining and top-rated Belle Terre Elementary School. Residents will enjoy the quick commute to I-95 and area beaches! Thoughtfully designed one and two-story open concept homes offer a fantastic and affordable new home value with smart energy-efficient features.

Ubicación

Hechos y características

Tipo:
Residential
Estacionamiento:
Sin datos
Año de construcción:
2023
Lote:
0.13 Hectáreas
Calefacción:
Electric
precio por sq. medidor:
$184
Enfriamiento:
Central Air
HOA:
$233
Más hechos y características
  • Piso

    • Carpet

    • Tile

    • Hardwood

    Calefacción

    • Electric

    Enfriamiento

    • Central Air

    Accesorios

    • Dishwasher

    • Disposal

    • Electric Water Heater

    • Microwave

    • Range

    Otras características interiores

    • Kitchen/Family Room Combo

    • Living Room/Dining Room Combo

    • Open Floorplan

    • Split Bedroom

    • Thermostat

    • Walk-In Closet(s)

    Dormitorios y baños

    • Dormitorios: 4

    • Baños: 1

    • Baños completos: 3

  • Propiedad

    • Pisos: One

    • Características Exteriores: Irrigation System

    Lote

    • Lote: 0.13 Hectáreas

    Otra Información de Propiedad

    • Número de Parcela: 2110305416000002710

    • Zonificación: 25

  • Tipo y estilo

    • Tipo de propiedad: Residential

    • Subtipo de propiedad: Single Family Residence

  • Utilidad

    • Public

  • Otra información financiera

    • HOA: $233

    • Frecuencia HOA: Annually

  • Detalles de la fuente

    • MLS ID: FC306851

    Otros hechos

    • Materiales de construcción: Wood Frame

    • Detalles de la fundación: Slab

    • Características de lavandería: Inside / Laundry Room

    • Caras de dirección: East

    • Espacios de garaje: 3

    • Garaje adjunto: Si

    • Garaje: Si

    • Salón: 2498

    • Fuente de agua: None

    • Nombre de subdivisión: SAWMILL BRANCH

Casas similares

10 AUCILLA PLACE placeholder 10 AUCILLA PLACE
Nuevo
Activo con contrato
Casa
$443,573
3 camas 2 baños 1,836 sqft
10 AUCILLA PLACE
66 REVERIE DRIVE placeholder 66 REVERIE DRIVE
Nuevo
Activo con contrato
Casa
$489,990
3 camas 2 baños 2,588 sqft
66 REVERIE DRIVE
31 REVERIE DRIVE S placeholder 31 REVERIE DRIVE S
Nuevo
Activo con contrato
Casa
$552,564
4 camas 3 baños 3,229 sqft
31 REVERIE DRIVE S
4 AUCILLA PLACE placeholder 4 AUCILLA PLACE
Nuevo
Activo con contrato
Casa
$585,287
4 camas 3 baños 3,229 sqft
4 AUCILLA PLACE
5 GOLDEN OAK WAY placeholder 5 GOLDEN OAK WAY
1 días
Activo con contrato
Casa
$366,990
4 camas 3 baños 1,987 sqft
5 GOLDEN OAK WAY
39 SAWDUST LANE placeholder 39 SAWDUST LANE
1 días
Activo con contrato
Casa
$405,990
5 camas 3 baños 2,444 sqft
39 SAWDUST LANE
5 BUTTERFLY PLACE placeholder 5 BUTTERFLY PLACE
12 días
Activo con contrato
Casa
$332,800
3 camas 2 baños 1,505 sqft
5 BUTTERFLY PLACE
2 SUMMERWOOD ROAD N placeholder 2 SUMMERWOOD ROAD N
18 días
Activo con contrato
Casa
$459,990
4 camas 3 baños 2,498 sqft
2 SUMMERWOOD ROAD N

The multiple listing information is provided by the Stellar MLS from a copyrighted compilation of listings. The compilation of listings and each individual listing are ©2025-present Stellar MLS. All Rights Reserved. The information provided is for consumers' personal, noncommercial use and may not be used for any purpose other than to identify prospective properties consumers may be interested in purchasing. All properties are subject to prior sale or withdrawal. All information provided is deemed reliable but is not guaranteed accurate, and should be independently verified. Listing courtesy of: D.R. HORTON REALTY, INC