Contacto
Cuéntenos sobre sus necesidades

2052 MAVERICK COURT

Casa Activo con contrato
$555,990

BTC: 7.56184058

ETH: 275.98719317

Nuevo
4 camas
2 baños
2,100 sqft
Est. Rango de ventas estimado: $0 - $0
$0

Visión general

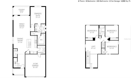
One or more photo(s) has been virtually staged. Under Construction. The Magnolia floorplan offers a comfortable two-story layout featuring 4 bedrooms and 2.5 bathrooms, ideal for those seeking both space and functionality. The main floor includes a spacious family room adjacent to the dining area, with a covered patio extending from the family room for outdoor enjoyment. The kitchen provides direct access to the dining space, and a separate laundry room sits conveniently near the two-car garage entrance. The primary suite, located on the first floor, includes a private bathroom and a walk-in closet, creating a peaceful retreat. Upstairs, a versatile loft area is surrounded by three additional bedrooms, making it perfect for a cozy lounge or play area. The Magnolia balances everyday convenience with thoughtful design for a welcoming home environment.

Ubicación

Hechos y características

Tipo:
Residential
Estacionamiento:
Sin datos
Año de construcción:
2025
Lote:
0.16 Hectáreas
Calefacción:
Electric
precio por sq. medidor:
$265
Enfriamiento:
Central Air
HOA:
$100
Más hechos y características
  • Piso

    • Carpet

    • Tile

    Calefacción

    • Electric

    Enfriamiento

    • Central Air

    Accesorios

    • Built-In Oven

    • Convection Oven

    • Cooktop

    • Dishwasher

    • Disposal

    • Electric Water Heater

    • Ice Maker

    • Microwave

    Otras características interiores

    • Eating Space In Kitchen

    • Kitchen/Family Room Combo

    • Living Room/Dining Room Combo

    • Open Floorplan

    • Primary Bedroom Main Floor

    • Split Bedroom

    • Thermostat

    • Walk-In Closet(s)

    Dormitorios y baños

    • Dormitorios: 4

    • Baños: 1

    • Baños completos: 2

  • Propiedad

    • Pisos: Two

    • Características Exteriores: Sidewalk / Sliding Doors / Sprinkler Metered

    Lote

    • Lote: 0.16 Hectáreas

    Otra Información de Propiedad

    • Número de Parcela: 322126002500010510

  • Tipo y estilo

    • Tipo de propiedad: Residential

    • Subtipo de propiedad: Single Family Residence

  • Utilidad

    • Electricity Available

    • Fiber Optics

    • Sprinkler Recycled

    • Underground Utilities

  • Otra información financiera

    • HOA: $100

    • Frecuencia HOA: Annually

    • Importe anual de impuestos: $375

  • Detalles de la fuente

    • MLS ID: G5102190

    Otros hechos

    • Materiales de construcción: Block / Stucco

    • Detalles de la fundación: Slab

    • Características de lavandería: Inside / Laundry Room

    • Características del lote: Cleared / Sidewalk

    • Características del patio y el porche: Enclosed / Front Porch / Rear Porch / Screened

    • Caras de dirección: North

    • Estilo arquitectónico: Contemporary

    • Espacios de garaje: 2

    • Garaje adjunto: Si

    • Garaje: Si

    • Salón: 2100

    • Fuente de agua: Public

    • Tamaño de la parcela: 40 x 100

    • Nombre de subdivisión: HILLS OF MINNEOLA

Casas similares

1571 CADENCE STREET placeholder 1571 CADENCE STREET
Nuevo
Activo con contrato
Casa
$566,990
4 camas 3 baños 1,654 sqft
1571 CADENCE STREET
2208 KEYSTONE PASS BOULEVARD placeholder 2208 KEYSTONE PASS BOULEVARD
Nuevo
Activo con contrato
Casa
$648,162
4 camas 3 baños 3,038 sqft
2208 KEYSTONE PASS BOULEVARD
2022 ASHER AVENUE placeholder 2022 ASHER AVENUE
Nuevo
Activo con contrato
Casa
$559,740
4 camas 2 baños 2,100 sqft
2022 ASHER AVENUE
1631 PYRAMID HILL STREET placeholder 1631 PYRAMID HILL STREET
Nuevo
Activo con contrato
Casa
$549,990
4 camas 2 baños 2,235 sqft
1631 PYRAMID HILL STREET
2212 AXEL STREET placeholder 2212 AXEL STREET
Nuevo
Activo con contrato
Casa
$659,985
5 camas 4 baños 3,065 sqft
2212 AXEL STREET
2149 AXEL STREET placeholder 2149 AXEL STREET
Nuevo
Activo con contrato
Casa
$599,990
4 camas 2 baños 2,235 sqft
2149 AXEL STREET
1900 SUNSHINE PEAK DRIVE placeholder 1900 SUNSHINE PEAK DRIVE
Nuevo
Activo con contrato
Casa
$525,495
4 camas 2 baños 2,100 sqft
1900 SUNSHINE PEAK DRIVE
2168 SUNSHINE PEAK DRIVE placeholder 2168 SUNSHINE PEAK DRIVE
Nuevo
Activo con contrato
Casa
$599,990
4 camas 2 baños 2,100 sqft
2168 SUNSHINE PEAK DRIVE

The multiple listing information is provided by the Stellar MLS from a copyrighted compilation of listings. The compilation of listings and each individual listing are ©2026-present Stellar MLS. All Rights Reserved. The information provided is for consumers' personal, noncommercial use and may not be used for any purpose other than to identify prospective properties consumers may be interested in purchasing. All properties are subject to prior sale or withdrawal. All information provided is deemed reliable but is not guaranteed accurate, and should be independently verified. Listing courtesy of: OLYMPUS EXECUTIVE REALTY INC