Contacto
Cuéntenos sobre sus necesidades

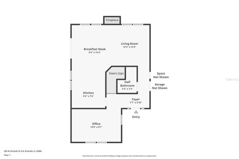
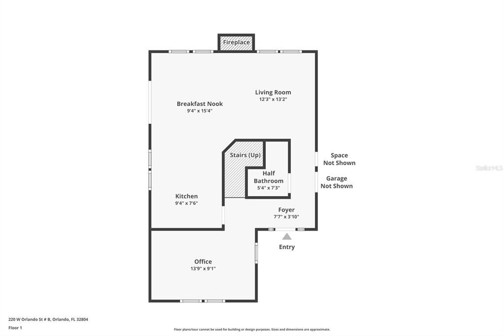
220 W ORLANDO STREET UNIT B

Casa Activo con contrato
$468,000

BTC: 15.60000000

ETH: 234.00000000

2 días
3 camas
2 baños
1,402 sqft
Est. Rango de ventas estimado: $0 - $0
$0

Visión general

Under contract-accepting backup offers. Welcome to a beautifully maintained home in the heart of College Park (32804). Ideally located just one block from top-rated Princeton Elementary School, the College Park Community Center, public pool, and Princeton Park, this home offers both convenience and the true College Park lifestyle. Inside, you’ll find a bright, inviting layout with thoughtful updates and modern finishes. The open living and dining areas create an easy flow, and the kitchen offers ample cabinet space and natural light. Each bedroom provides a relaxing retreat, and the home’s thoughtful design makes it perfect for everyday living or entertaining. An attached two-car garage provides plenty of space for parking and storage. A rare find in this neighborhood. Enjoy quiet mornings on your private patio or take a short stroll to Edgewater Drive’s restaurants, shops, and cafés. With Downtown Orlando and major roadways nearby, this home combines small-town charm with city accessibility.

Ubicación

Hechos y características

Tipo:
Residential
Estacionamiento:
Driveway / Garage Door Opener
Año de construcción:
1994
Lote:
0.08 Hectáreas
Calefacción:
Central
precio por sq. medidor:
$334
Enfriamiento:
Central Air
HOA:
Sin datos
Más hechos y características
  • Piso

    • Tile

    • Hardwood

    Calefacción

    • Central

    Enfriamiento

    • Central Air

    Accesorios

    • Dishwasher

    • Disposal

    • Electric Water Heater

    • Microwave

    • Range

    • Refrigerator

    Otras características interiores

    • Ceiling Fan(s)

    • Kitchen/Family Room Combo

    • Stone Counters

    • Walk-In Closet(s)

    Dormitorios y baños

    • Dormitorios: 3

    • Baños: 1

    • Baños completos: 2

  • Estacionamiento

    • Driveway

    • Garage Door Opener

    Propiedad

    • Pisos: Two

    • Características Exteriores: Garden / Rain Gutters / Sidewalk / Sliding Doors

    Lote

    • Lote: 0.08 Hectáreas

    Otra Información de Propiedad

    • Número de Parcela: 142229721700100

    • Zonificación: R-2A/T/W

  • Tipo y estilo

    • Tipo de propiedad: Residential

    • Subtipo de propiedad: Single Family Residence

  • Utilidad

    • Electricity Connected

    • Public

    • Sewer Connected

    • Street Lights

    • Water Connected

  • Otra información financiera

    • Importe anual de impuestos: $4,888

  • Detalles de la fuente

    • MLS ID: O6358586

    Otros hechos

    • Materiales de construcción: Cement Siding

    • Detalles de la fundación: Block

    • Características de la chimenea: Family Room / Wood Burning

    • Características de lavandería: In Garage

    • Características del patio y el porche: Front Porch

    • Características de la ventana: Blinds

    • Caras de dirección: East

    • Estilo arquitectónico: Traditional

    • Hogar: Si

    • Espacios de garaje: 2

    • Garaje adjunto: Si

    • Garaje: Si

    • Salón: 1402

    • Fuente de agua: Public

    • Nombre de subdivisión: PORCHES AT COLLEGE PARK

Casas similares

1651 N PARK AVENUE placeholder 1651 N PARK AVENUE
Nuevo
Activo con contrato
Casa
$505,000
3 camas 2 baños 1,263 sqft
1651 N PARK AVENUE
3007 E CENTRAL BOULEVARD UNIT 3007 placeholder 3007 E CENTRAL BOULEVARD UNIT 3007
1 días
Activo con contrato
Condo / Coop
$477,000
3 camas 2 baños 2,053 sqft
3007 E CENTRAL BOULEVARD UNIT 3007
1616 CHRISTY AVENUE placeholder 1616 CHRISTY AVENUE
2 días
Activo con contrato
Casa
$450,000
3 camas 1 baños 1,416 sqft
1616 CHRISTY AVENUE
804 VASSAR STREET placeholder 804 VASSAR STREET
2 días
Activo con contrato
Lotes / Tierras
$400,000
0 room(s)
804 VASSAR STREET
1010 ARAGON AVENUE placeholder 1010 ARAGON AVENUE
2 días
Activo con contrato
Casa
$575,000
3 camas 2 baños 1,453 sqft
1010 ARAGON AVENUE
4008 SHORECREST DRIVE placeholder 4008 SHORECREST DRIVE
2 días
Activo con contrato
Casa
$549,000
4 camas 3 baños 2,421 sqft
4008 SHORECREST DRIVE
1305 HERON DRIVE placeholder 1305 HERON DRIVE
4 días
Activo con contrato
Casa
$594,990
3 camas 2 baños 1,568 sqft
1305 HERON DRIVE
742 HAYDEN LANE placeholder 742 HAYDEN LANE
5 días
Activo con contrato
Casa
$475,000
2 camas 1 baños 1,138 sqft
742 HAYDEN LANE

The multiple listing information is provided by the Stellar MLS from a copyrighted compilation of listings. The compilation of listings and each individual listing are ©2025-present Stellar MLS. All Rights Reserved. The information provided is for consumers' personal, noncommercial use and may not be used for any purpose other than to identify prospective properties consumers may be interested in purchasing. All properties are subject to prior sale or withdrawal. All information provided is deemed reliable but is not guaranteed accurate, and should be independently verified. Listing courtesy of: HOME PRO REALTY CORP.