Contacto
Cuéntenos sobre sus necesidades

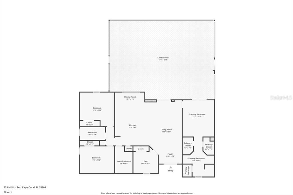
225 NE 8TH TERRACE

Casa Activo con contrato
$515,000

BTC: 5.30454855

ETH: 166.12903226

-$25K (2025/12/09)
197 días
4 camas
2 baños
1,800 sqft
Est. Rango de ventas estimado: $0 - $0
$0

Visión general

Brand new construction home with a pool! Located on 120 ft wide freshwater canal with access to lakes. Home is on city water, sewer, and irrigation. Step inside and be greeted by high ceilings, open-concept living, and designer finishes throughout. The heart of the home features a gourmet kitchen with granite countertops, large kitchen island, soft-close cabinetry, and stainless steel appliances—perfect for entertaining or relaxing evenings in. The living area includes sliding glass doors opening to the large lanai and panoramic views. The spacious primary suite offers large sliders opening directly to your private screened lanai and sparkling pool, as well as two walk in closets with built in shelving. The ensuite spa-like bathroom has dual sinks and a large walk in tiled shower with a glass door. Whether you're cooling off on a summer day or enjoying the golden hour overlooking the canal, this outdoor space is your personal paradise. Additional highlights include: paved driveway and lanai, hurricane impact windows and doors, 3 car garage, large lanai equipped with pool cage, inside laundry/utility room with cabinetry, beautiful tile throughout the home, plenty of closets all with built in shelving. For added safety, all doors leading to the pool area are equipped with alarm sensors. No HOA. Not in a flood zone. Centrally located just minutes from the Pine Island corridor which offers various shopping, dining, and more. There are many parks in the immediate plus nearby Gator Mikes, Sunsplash, and NW library. Cape Coral is well served by major roads US-41 and I-75 making traveling easy and convenient. Don’t miss this rare opportunity to own brand new construction with direct freshwater access in sunny Florida. Move-in ready and waiting for you!

Ubicación

Hechos y características

Tipo:
Residential
Estacionamiento:
Driveway / Garage Door Opener / Oversized
Año de construcción:
2025
Lote:
0.23 Hectáreas
Calefacción:
Central / Electric
precio por sq. medidor:
$286
Enfriamiento:
Central Air
HOA:
Sin datos
Más hechos y características
  • Piso

    • Tile

    Calefacción

    • Central

    • Electric

    Enfriamiento

    • Central Air

    Accesorios

    • Dishwasher

    • Disposal

    • Freezer

    • Ice Maker

    • Microwave

    • Range

    • Refrigerator

    Otras características interiores

    • Ceiling Fan(s)

    • Eating Space In Kitchen

    • High Ceilings

    • Open Floorplan

    • Split Bedroom

    • Stone Counters

    • Walk-In Closet(s)

    Dormitorios y baños

    • Dormitorios: 4

    • Baños completos: 2

  • Estacionamiento

    • Driveway

    • Garage Door Opener

    • Oversized

    Propiedad

    • Pisos: One

    • Piscina Privada: Si

    • Características Exteriores: Irrigation System / Lighting / Private Mailbox

    Lote

    • Lote: 0.23 Hectáreas

    Otra Información de Propiedad

    • Número de Parcela: 014423C402413.0450

    • Zonificación: R1-W

  • Tipo y estilo

    • Tipo de propiedad: Residential

    • Subtipo de propiedad: Single Family Residence

  • Utilidad

    • BB/HS Internet Available

    • Cable Available

    • Electricity Connected

    • Public

    • Sewer Connected

    • Sprinkler Recycled

    • Water Connected

  • Otra información financiera

    • Importe anual de impuestos: $1,719

  • Detalles de la fuente

    • MLS ID: A4656403

    Otros hechos

    • Materiales de construcción: Concrete / Stucco

    • Detalles de la fundación: Slab

    • Características de lavandería: Electric Dryer Hookup / Inside / Laundry Room / Washer Hookup

    • Características del lote: Landscaped

    • Características del patio y el porche: Enclosed / Patio / Screened

    • Características de la piscina: In Ground / Screen Enclosure

    • Caras de dirección: South

    • Estilo arquitectónico: Ranch

    • Espacios de garaje: 3

    • Garaje adjunto: Si

    • Garaje: Si

    • Salón: 1800

    • Fuente de agua: Public

    • Tamaño de la parcela: 80 x 125

    • Nombre de subdivisión: CAPE CORAL

Casas similares

1202 SW 11TH PLACE placeholder 1202 SW 11TH PLACE
12 días
Activo con contrato
Casa
$665,000
3 camas 3 baños 1,591 sqft
1202 SW 11TH PLACE
2909 NW 6th AVE, Cape Coral FL 33993 placeholder 2909 NW 6th AVE, Cape Coral FL 33993
-$100 (2025/08/22)
Activo con contrato
Casa
$394,900
4 camas 3 baños 1,691 sqft
2909 NW 6th AVE, Cape Coral FL 33993
1012 NW 9th St, Cape Coral FL 33993 placeholder 1012 NW 9th St, Cape Coral FL 33993
24 días
Activo con contrato
Casa
$519,900
4 camas 3 baños 2,127 sqft
1012 NW 9th St, Cape Coral FL 33993
447 SW 6TH ST, Other City - In The State Of Florida FL 33991 placeholder 447 SW 6TH ST, Other City - In The State Of Florida FL 33991
27 días
Activo con contrato
Casa
$490,000
3 camas 3 baños
447 SW 6TH ST, Other City - In The State Of Florida FL 33991
322 NW 9th st, Cape Coral FL 33993 placeholder 322 NW 9th st, Cape Coral FL 33993
-$40K (2025/11/11)
Activo con contrato
Casa
$459,999
4 camas 3 baños 1,905 sqft
322 NW 9th st, Cape Coral FL 33993
2122 NE 14th PL, Cape Coral FL 33909 placeholder 2122 NE 14th PL, Cape Coral FL 33909
-$15K (2025/04/24)
Activo con contrato
Casa
$435,000
3 camas 3 baños 1,735 sqft
2122 NE 14th PL, Cape Coral FL 33909
624 NW 15th ST, Cape Coral FL 33993 placeholder 624 NW 15th ST, Cape Coral FL 33993
+$13K (2025/06/11)
Activo con contrato
Casa
$437,990
4 camas 3 baños 1,767 sqft
624 NW 15th ST, Cape Coral FL 33993
129 SW 9th Pl, Cape Coral FL 33991 placeholder 129 SW 9th Pl, Cape Coral FL 33991
-$20K (2025/02/07)
Activo con contrato
Casa
$389,999
4 camas 2 baños 1,809 sqft
129 SW 9th Pl, Cape Coral FL 33991

The multiple listing information is provided by the Stellar MLS from a copyrighted compilation of listings. The compilation of listings and each individual listing are ©2026-present Stellar MLS. All Rights Reserved. The information provided is for consumers' personal, noncommercial use and may not be used for any purpose other than to identify prospective properties consumers may be interested in purchasing. All properties are subject to prior sale or withdrawal. All information provided is deemed reliable but is not guaranteed accurate, and should be independently verified. Listing courtesy of: CAPECORALLOTS.COM