Contacto
Cuéntenos sobre sus necesidades

2501 SUNRISE DRIVE SE

Casa Activo con contrato
$2,800,000

BTC: 93.33333333

ETH: 1,400.00000000

37 días
Frente al mar
3 camas
2 baños
2,824 sqft
Est. Rango de ventas estimado: $0 - $0
$0

Visión general

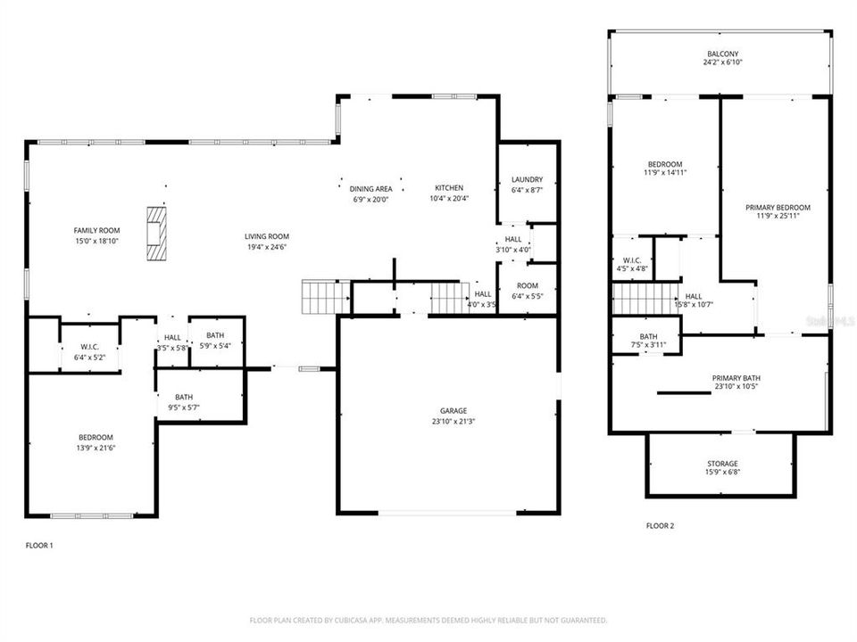
Paradise awaits you in this 2018 meticulously built custom home by Triple Point Design located in Tropical Shores, only 1.5 miles from downtown St. Pete. From the moment you walk up to the entrance, you will understand how special this home is from the stunning solid wood pivot door to the beautiful sculpture that greets your guests. Imagine walking in your front door everyday to be treated to the breathtaking views of Big Bayou. The main living area has 14' ceilings with floor to ceiling water views with two separate seating areas with a see through fireplace between them. Open your accordion glass doors and step out onto a patio that overlooks your pool, private dock and green space for the dogs. If you like to entertain, your guests will never want to leave your 75’ open water view of Big Bayou, which is a boater's dream. Back inside, your chef's kitchen, with 9' ceilings , features Bosch appliances, including a built-in coffee bar. The soft close cabinets and doors are made of zebra wood and oak and add an unmatched sophistication as you prepare your meals overlooking a large island and seating area. Not only does the kitchen offer an abundance of storage, but there is an additional butler's pantry as well as a large wine refrigerator right off the kitchen. The primary suite is located on the second floor with nothing short of amazing water views to wake up to every morning. The attached ensuite is too stunning to describe in words with its large designer walk in closet! The home features a whole house propane generator for an additional piece of mind and no flood waters entered the home or garage. You do not want to miss this rare opportunity to move into your turnkey dream home!

Ubicación

Hechos y características

Tipo:
Residential
Estacionamiento:
Driveway / Electric Vehicle Charging Station(s) / Garage Door Opener
Año de construcción:
2018
Lote:
0.17 Hectáreas
Calefacción:
Central / Electric / Heat Pump
precio por sq. medidor:
$992
Enfriamiento:
Central Air
HOA:
Sin datos
Más hechos y características
  • Piso

    • Porcelain Tile

    • Hardwood

    Calefacción

    • Central

    • Electric

    • Heat Pump

    Enfriamiento

    • Central Air

    Accesorios

    • Built-In Oven

    • Convection Oven

    • Cooktop

    • Dishwasher

    • Disposal

    • Dryer

    • Gas Water Heater

    • Ice Maker

    • Microwave

    • Refrigerator

    • Tankless Water Heater

    • Washer

    • Wine Refrigerator

    Otras características interiores

    • Built-in Features

    • Eating Space In Kitchen

    • High Ceilings

    • Open Floorplan

    • PrimaryBedroom Upstairs

    • Solid Surface Counters

    • Solid Wood Cabinets

    • Walk-In Closet(s)

    • Window Treatments

    Dormitorios y baños

    • Dormitorios: 3

    • Baños: 2

    • Baños completos: 2

  • Estacionamiento

    • Driveway

    • Electric Vehicle Charging Station(s)

    • Garage Door Opener

    Propiedad

    • Pisos: Two

    • Piscina Privada: Si

    • Características Exteriores: Balcony / Irrigation System / Lighting / Sliding Doors

    Lote

    • Lote: 0.17 Hectáreas

    Otra Información de Propiedad

    • Número de Parcela: 323117922680060070

    • Zonificación: RES

  • Tipo y estilo

    • Tipo de propiedad: Residential

    • Subtipo de propiedad: Single Family Residence

  • Utilidad

    • Cable Available

    • Electricity Connected

    • Propane

    • Public

    • Sewer Connected

    • Sprinkler Meter

    • Sprinkler Recycled

    • Street Lights

  • Otra información financiera

    • Importe anual de impuestos: $17,547

  • Detalles de la fuente

    • MLS ID: TB8434280

    Otros hechos

    • Materiales de construcción: Block / Cement Siding / Stucco

    • Detalles de la fundación: Block

    • Características de la chimenea: Living Room

    • Características de lavandería: Inside / Laundry Room

    • Características del lote: FloodZone / City Lot / Landscaped / Near Marina

    • Características del patio y el porche: Covered / Front Porch / Patio / Rear Porch

    • Características de la piscina: Chlorine Free / Gunite / Heated / In Ground / Lighting / Outside Bath Access / Salt Water

    • Características de la ventana: Shades / Storm Window(s) / Tinted Windows / Window Treatments

    • Caras de dirección: North

    • Estilo arquitectónico: Contemporary

    • Frente al mar: Si

    • Hogar: Si

    • Nombre del cuerpo de agua: BIG BAYOU

    • Espacios de garaje: 2

    • Garaje: Si

    • Salón: 2824

    • Fuente de agua: Public

    • Tamaño de la parcela: 75 x 100

    • Nombre de subdivisión: TROPICAL SHORES 2ND ADD

Casas similares

100 BEACH DRIVE NE UNIT 1402 placeholder 100 BEACH DRIVE NE UNIT 1402
Nuevo
Activo con contrato
Condo / Coop
$2,650,000
3 camas 3 baños 2,750 sqft
100 BEACH DRIVE NE UNIT 1402
100 BEACH DRIVE NE UNIT 1803 placeholder 100 BEACH DRIVE NE UNIT 1803
16 días
Activo con contrato
Condo / Coop
$2,649,000
2 camas 2 baños 2,400 sqft
100 BEACH DRIVE NE UNIT 1803
300 BEACH DRIVE NE UNIT 1604 placeholder 300 BEACH DRIVE NE UNIT 1604
32 días
Activo con contrato
Condo / Coop
$2,400,000
3 camas 3 baños 2,736 sqft
300 BEACH DRIVE NE UNIT 1604
300 BEACH DRIVE NE UNIT 1104 placeholder 300 BEACH DRIVE NE UNIT 1104
-$100K (2025/11/10)
Activo con contrato
Condo / Coop
$1,999,000
3 camas 3 baños 2,736 sqft
300 BEACH DRIVE NE UNIT 1104
2660 DRIFTWOOD ROAD S placeholder 2660 DRIFTWOOD ROAD S
94 días
Activo con contrato
Lotes / Tierras
$2,200,000
0 room(s)
2660 DRIFTWOOD ROAD S
4830 PARADISE WAY S placeholder 4830 PARADISE WAY S
98 días
Activo con contrato
Casa
$1,995,000
4 camas 4 baños 4,141 sqft
4830 PARADISE WAY S
126 4TH AVENUE NE UNIT 1201 placeholder 126 4TH AVENUE NE UNIT 1201
-$150K (2025/09/04)
Activo con contrato
Condo / Coop
$2,450,000
3 camas 3 baños 2,156 sqft
126 4TH AVENUE NE UNIT 1201
301 1ST STREET S UNIT 1601 placeholder 301 1ST STREET S UNIT 1601
-$125K (2025/09/17)
Activo con contrato
Condo / Coop
$2,375,000
3 camas 4 baños 2,712 sqft
301 1ST STREET S UNIT 1601

The multiple listing information is provided by the Stellar MLS from a copyrighted compilation of listings. The compilation of listings and each individual listing are ©2025-present Stellar MLS. All Rights Reserved. The information provided is for consumers' personal, noncommercial use and may not be used for any purpose other than to identify prospective properties consumers may be interested in purchasing. All properties are subject to prior sale or withdrawal. All information provided is deemed reliable but is not guaranteed accurate, and should be independently verified. Listing courtesy of: SMITH & ASSOCIATES REAL ESTATE