Contacto
Cuéntenos sobre sus necesidades

2761 EAGLE GLEN CIRCLE

Casa Activo con contrato
$365,000

BTC: 5.21428571

ETH: 177.61557178

5 días
4 camas
2 baños
1,952 sqft
Est. Rango de ventas estimado: $0 - $0
$0

Visión general

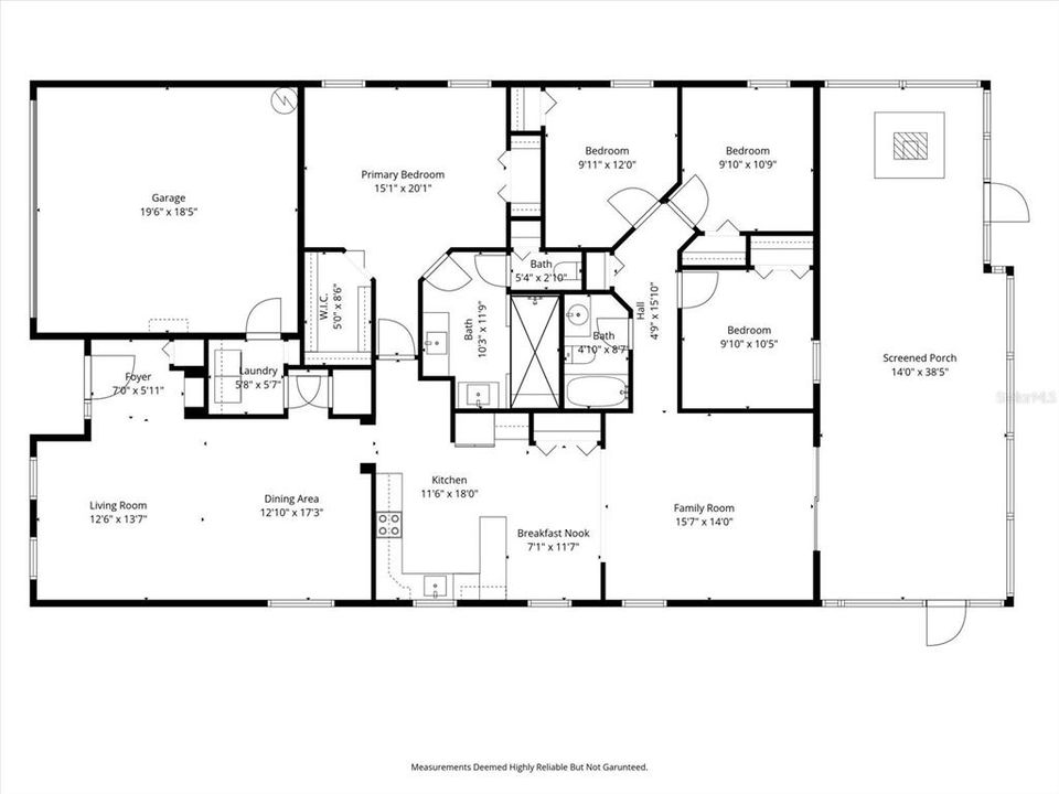
Thoughtfully redesigned and completely updated, this home offers a functional layout with modern finishes and a natural flow ideal for everyday living and entertaining. From the entry, the home opens into a welcoming living room that connects seamlessly to the dining area, creating a comfortable front-of-home gathering space filled with natural light. The kitchen sits at the heart of the home and has been fully renovated with contemporary cabinetry, updated countertops, and modern appliances. It opens to a breakfast nook and a spacious family room, providing a second living area perfect for casual gatherings or relaxing at the end of the day. Sliding doors extend the living space outdoors to an oversized screened porch, offering an inviting setting to enjoy Florida living year-round. The primary bedroom is privately positioned on one side of the home and offers generous proportions, bamboo flooring, a walk-in closet, and a completely upgraded en-suite bathroom with modern finishes and a clean, spa-inspired design. Three additional bedrooms are located on the opposite wing, all comfortably sized and served by an updated bathroom, making the layout well suited for families, guests, or home office flexibility. Tile flooring run throughout the home, with carpet reserved only for the secondary bedrooms. Recently installed Energy Star–qualified, tinted, double-pane low-E windows enhance comfort and efficiency, while major systems have already been addressed, including a newer roof and A/C system. A two-car garage, dedicated laundry room, and well-defined spaces round out a layout that feels both open and intentional. Conveniently located near schools, a local college, shopping, dining, and major roadways, this home offers easy access to Orlando, Central Florida theme parks, and surrounding communities. Residents also enjoy a community clubhouse, two community pools, sport courts, and sidewalks that connect the entire neighborhood, making it easy to stay active and connected. A true move-in-ready opportunity where every detail has been thoughtfully upgraded and nothing has been left untouched.

Ubicación

Hechos y características

Tipo:
Residential
Estacionamiento:
Sin datos
Año de construcción:
2004
Lote:
0.22 Hectáreas
Calefacción:
Central / Electric
precio por sq. medidor:
$187
Enfriamiento:
Central Air
HOA:
$226
Más hechos y características
  • Piso

    • Bamboo

    • Carpet

    • Tile

    Calefacción

    • Central

    • Electric

    Enfriamiento

    • Central Air

    Accesorios

    • Convection Oven

    • Dishwasher

    • Disposal

    • Dryer

    • Electric Water Heater

    • Range

    • Refrigerator

    • Washer

    Otras características interiores

    • Ceiling Fan(s)

    • Kitchen/Family Room Combo

    • Living Room/Dining Room Combo

    • Primary Bedroom Main Floor

    • Solid Wood Cabinets

    • Split Bedroom

    • Stone Counters

    • Thermostat

    • Walk-In Closet(s)

    • Window Treatments

    Dormitorios y baños

    • Dormitorios: 4

    • Baños completos: 2

  • Propiedad

    • Pisos: One

    • Características Exteriores: Irrigation System / Rain Gutters / Sidewalk

    Lote

    • Lote: 0.22 Hectáreas

    Otra Información de Propiedad

    • Número de Parcela: 17262930010001017B

    • Zonificación: OPUD

  • Tipo y estilo

    • Tipo de propiedad: Residential

    • Subtipo de propiedad: Single Family Residence

  • Utilidad

    • Public

  • Otra información financiera

    • HOA: $226

    • Frecuencia HOA: Quarterly

    • Importe anual de impuestos: $1,995

  • Detalles de la fuente

    • MLS ID: O6370210

    Otros hechos

    • Materiales de construcción: Block / Stucco

    • Detalles de la fundación: Slab

    • Características de lavandería: Inside / Laundry Room

    • Características del lote: In County / Landscaped / Near Public Transit / Sidewalk

    • Características del patio y el porche: Porch / Rear Porch / Screened

    • Características de la ventana: Blinds / Double Pane Windows / ENERGY STAR Qualified Windows / Low-Emissivity Windows / Tinted Windows

    • Caras de dirección: South

    • Estilo arquitectónico: Traditional

    • Espacios de garaje: 2

    • Garaje adjunto: Si

    • Garaje: Si

    • Salón: 1952

    • Fuente de agua: Public

    • Tamaño de la parcela: 93 x 133 x 60 x 126

    • Nombre de subdivisión: EAGLE LAKE PH 1

Casas similares

4256 DESERT ROSE AVENUE placeholder 4256 DESERT ROSE AVENUE
2 días
Activo con contrato
Casa
$340,000
3 camas 2 baños 1,320 sqft
4256 DESERT ROSE AVENUE
3500 SUZETTE DRIVE placeholder 3500 SUZETTE DRIVE
4 días
Activo con contrato
Casa
$280,000
3 camas 2 baños 1,285 sqft
3500 SUZETTE DRIVE
4122 GOOSEBERRY TRAIL placeholder 4122 GOOSEBERRY TRAIL
7 días
Activo con contrato
Casa
$397,990
3 camas 2 baños 1,843 sqft
4122 GOOSEBERRY TRAIL
1651 GRANADA BOULEVARD placeholder 1651 GRANADA BOULEVARD
8 días
Activo con contrato
Casa
$399,900
5 camas 3 baños 2,312 sqft
1651 GRANADA BOULEVARD
3505 FOREST PARK DRIVE placeholder 3505 FOREST PARK DRIVE
9 días
Activo con contrato
Casa
$289,000
3 camas 2 baños 2,053 sqft
3505 FOREST PARK DRIVE
4558 NOBLE STREET placeholder 4558 NOBLE STREET
9 días
Activo con contrato
Casa
$425,490
4 camas 2 baños 1,877 sqft
4558 NOBLE STREET
4710 SEELEY STREET placeholder 4710 SEELEY STREET
15 días
Activo con contrato
Casa
$360,000
4 camas 2 baños 1,972 sqft
4710 SEELEY STREET
3425 SUZETTE DRIVE placeholder 3425 SUZETTE DRIVE
18 días
Activo con contrato
Casa
$415,000
3 camas 2 baños 1,615 sqft
3425 SUZETTE DRIVE

The multiple listing information is provided by the Stellar MLS from a copyrighted compilation of listings. The compilation of listings and each individual listing are ©2026-present Stellar MLS. All Rights Reserved. The information provided is for consumers' personal, noncommercial use and may not be used for any purpose other than to identify prospective properties consumers may be interested in purchasing. All properties are subject to prior sale or withdrawal. All information provided is deemed reliable but is not guaranteed accurate, and should be independently verified. Listing courtesy of: REAL BROKER, LLC