Contacto
Cuéntenos sobre sus necesidades

281 NORTHVIEW STREET

Casa Activo con contrato
$214,900

BTC: 3.11497806

ETH: 106.67394704

6 días
3 camas
2 baños
1,282 sqft
Est. Rango de ventas estimado: $0 - $0
$0

Visión general

Under contract-accepting backup offers. Welcome to 281 Northview!!!! A Versatile As-Is Opportunity in a Lively, Welcoming Port Charlotte Community Full of potential and solid updates, 281 Northview is an excellent opportunity for both homeowners and investors seeking a property with value and room to personalize. This 3-bedroom, 2-bath split-level home is being sold as-is, offering flexibility for future improvements. For added peace of mind, the seller is including a 1-year American Home Shield home warranty. Major components were updated in 2018, including the roof and appliances. The main living area features vaulted ceilings, abundant natural light, and an open flow into the dining space and galley-style kitchen. With its 2018 appliances and ample cabinetry, the kitchen is fully functional for everyday use while still offering room for future enhancements. A standout feature of this home is the large back flex room, ideal for use as a second living area, office, playroom, or creative space. With plumbing located directly on the opposite side of the shared wall, this space also offers excellent potential to be converted into a spacious laundry or utility room. Upstairs, the bedrooms are bright, comfortable, and neutrally finished, ready for personal touches. Both bathrooms are clean and functional, providing a solid foundation for any desired updates. Outside, the property offers a fully fenced backyard with mature tropical landscaping, including Birds of Paradise. The inviting front porch adds curb appeal, while the yard provides room for pets, outdoor activities, or gardening. Additional Highlights: • Home sold as-is • Roof and appliances updated in 2018 • Includes a 1-year American Home Shield home warranty • Excellent opportunity for investors • Fully fenced backyard with Birds of Paradise • Two separate living areas for flexible use • Back flex room offers potential for a large laundry or utility room • Vaulted ceilings and open layout • Two-car garage with additional storage • No HOA • Located in a lively and friendly community close to shopping, dining, parks, and schools 281 Northview offers strong potential, solid updates, and a flexible layout in a desirable Port Charlotte Charming home back on the market! Previous contract fell through due to financing issues outside of the home's condition. Ready for showings!!

Ubicación

Hechos y características

Tipo:
Residential
Estacionamiento:
Driveway / Garage Door Opener
Año de construcción:
1984
Lote:
0.23 Hectáreas
Calefacción:
Central / Electric
precio por sq. medidor:
$168
Enfriamiento:
Central Air
HOA:
Sin datos
Más hechos y características
  • Piso

    • Carpet

    • Laminate

    Calefacción

    • Central

    • Electric

    Enfriamiento

    • Central Air

    Accesorios

    • Dishwasher

    • Dryer

    • Electric Water Heater

    • Exhaust Fan

    • Microwave

    • Range

    • Refrigerator

    • Washer

    Otras características interiores

    • Cathedral Ceiling(s)

    • Ceiling Fan(s)

    • Crown Molding

    • Living Room/Dining Room Combo

    • Primary Bedroom Main Floor

    • Split Bedroom

    • Thermostat

    • Vaulted Ceiling(s)

    • Walk-In Closet(s)

    • Window Treatments

    Dormitorios y baños

    • Dormitorios: 3

    • Baños completos: 2

  • Estacionamiento

    • Driveway

    • Garage Door Opener

    Propiedad

    • Pisos: Two

    • Características Exteriores: Hurricane Shutters / Lighting / Private Mailbox

    Lote

    • Lote: 0.23 Hectáreas

    Otra Información de Propiedad

    • Número de Parcela: 402203327009

    • Zonificación: RSF3.5

  • Tipo y estilo

    • Tipo de propiedad: Residential

    • Subtipo de propiedad: Single Family Residence

  • Utilidad

    • Cable Connected

    • Electricity Connected

    • Public

    • Sewer Connected

    • Water Connected

  • Otra información financiera

    • Importe anual de impuestos: $2,603

  • Detalles de la fuente

    • MLS ID: N6141245

    Otros hechos

    • Materiales de construcción: Vinyl Siding / Wood Frame / Wood Siding

    • Detalles de la fundación: Block / Slab

    • Características de lavandería: In Garage

    • Características del lote: Cleared / In County / Landscaped / Near Golf Course

    • Características del patio y el porche: Front Porch

    • Caras de dirección: East

    • Espacios de garaje: 2

    • Garaje adjunto: Si

    • Garaje: Si

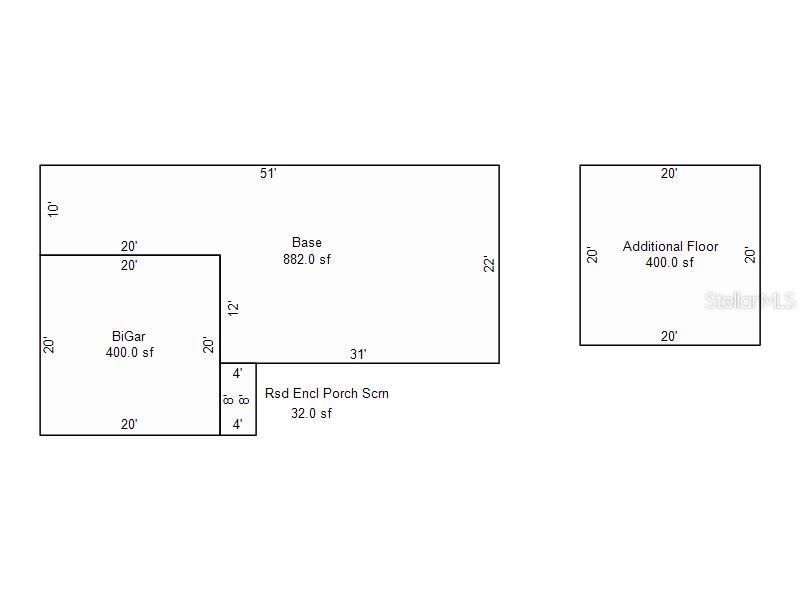
    • Salón: 1282

    • Fuente de agua: Public

    • Tamaño de la parcela: 80 x 125

    • Nombre de subdivisión: PORT CHARLOTTE SEC 033

Casas similares

520 FLETCHER STREET placeholder 520 FLETCHER STREET
1 días
Activo con contrato
Casa
$229,900
2 camas 2 baños 1,094 sqft
520 FLETCHER STREET
2350 FIREBRAND ROAD placeholder 2350 FIREBRAND ROAD
1 días
Activo con contrato
Casa
$250,000
3 camas 2 baños 1,689 sqft
2350 FIREBRAND ROAD
772 FOREST HILL LANE NW placeholder 772 FOREST HILL LANE NW
2 días
Activo con contrato
Casa
$198,000
3 camas 2 baños 1,572 sqft
772 FOREST HILL LANE NW
1171 TYRONE STREET placeholder 1171 TYRONE STREET
4 días
Activo con contrato
Casa
$245,000
3 camas 2 baños 1,244 sqft
1171 TYRONE STREET
417 ROSE APPLE CIRCLE placeholder 417 ROSE APPLE CIRCLE
4 días
Activo con contrato
Casa
$275,000
3 camas 2 baños 1,780 sqft
417 ROSE APPLE CIRCLE
21914 CELLINI AVENUE placeholder 21914 CELLINI AVENUE
5 días
Activo con contrato
Casa
$200,000
3 camas 1 baños 952 sqft
21914 CELLINI AVENUE
20363 MOUNT PROSPECT AVENUE placeholder 20363 MOUNT PROSPECT AVENUE
5 días
Activo con contrato
Casa
$214,900
2 camas 2 baños 1,348 sqft
20363 MOUNT PROSPECT AVENUE
1249 WHITE OAK TRAIL placeholder 1249 WHITE OAK TRAIL
8 días
Activo con contrato
Casa
$275,000
3 camas 2 baños 1,535 sqft
1249 WHITE OAK TRAIL

The multiple listing information is provided by the Stellar MLS from a copyrighted compilation of listings. The compilation of listings and each individual listing are ©2026-present Stellar MLS. All Rights Reserved. The information provided is for consumers' personal, noncommercial use and may not be used for any purpose other than to identify prospective properties consumers may be interested in purchasing. All properties are subject to prior sale or withdrawal. All information provided is deemed reliable but is not guaranteed accurate, and should be independently verified. Listing courtesy of: RE/MAX PALM REALTY