Contacto
Cuéntenos sobre sus necesidades

2980 NE 20TH TERRACE

Casa Activo con contrato
$272,990

BTC: 4.03532890

ETH: 139.63682864

-$8K (2025/12/30)
90 días
4 camas
2 baños
1,498 sqft
Est. Rango de ventas estimado: $0 - $0
$0

Visión general

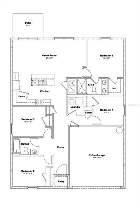
Under Construction. This all concrete block constructed, one-story home optimizes living space, featuring an open-concept kitchen overlooking the great room and outdoor patio. The well-appointed kitchen comes with all stainless-steel appliances, including a built-in dishwasher, range, and microwave. Bedroom 1 is located at the rear of the home for privacy and features an ensuite bathroom and walk-in closet near the bathroom. Two additional bedrooms at the front of the home are separated by the second bathroom. The third bedroom is located across the hallway near the laundry room. Pictures, photographs, colors, features, and sizes are for illustration purposes only and will vary from the homes as built. Home and community information including pricing, included features, terms, availability and amenities are subject to change and prior sale at any time without notice or obligation. CRC057592.

Ubicación

Hechos y características

Tipo:
Residential
Estacionamiento:
Sin datos
Año de construcción:
2025
Lote:
0.15 Hectáreas
Calefacción:
Electric / Heat Pump
precio por sq. medidor:
$182
Enfriamiento:
Central Air
HOA:
$95
Más hechos y características
  • Piso

    • Carpet

    • Luxury Vinyl

    Calefacción

    • Electric

    • Heat Pump

    Enfriamiento

    • Central Air

    Accesorios

    • Dishwasher

    • Microwave

    • Range

    Otras características interiores

    • Open Floorplan

    Dormitorios y baños

    • Dormitorios: 4

    • Baños completos: 2

  • Propiedad

    • Pisos: One

    • Características Exteriores: Irrigation System

    Lote

    • Lote: 0.15 Hectáreas

    Otra Información de Propiedad

    • Número de Parcela: 2428607900

    • Zonificación: PUD

  • Tipo y estilo

    • Tipo de propiedad: Residential

    • Subtipo de propiedad: Single Family Residence

  • Utilidad

    • Other

  • Otra información financiera

    • HOA: $95

    • Frecuencia HOA: Monthly

  • Detalles de la fuente

    • MLS ID: OM711202

    Otros hechos

    • Materiales de construcción: Block

    • Detalles de la fundación: Slab

    • Características de lavandería: Laundry Room

    • Caras de dirección: Northeast

    • Espacios de garaje: 2

    • Garaje adjunto: Si

    • Garaje: Si

    • Salón: 1498

    • Fuente de agua: Public

    • Nombre de subdivisión: EMERSON POINTE

Casas similares

4701 NE 7TH AVENUE placeholder 4701 NE 7TH AVENUE
Nuevo
Activo con contrato
Casa
$315,000
3 camas 2 baños 1,779 sqft
4701 NE 7TH AVENUE
4476 NE 31ST PL placeholder 4476 NE 31ST PL
Nuevo
Activo con contrato
Casa
$323,800
4 camas 2 baños 2,000 sqft
4476 NE 31ST PL
1415 NE 32ND AVENUE placeholder 1415 NE 32ND AVENUE
1 días
Activo con contrato
Comercial
$275,000
0 room(s) 1,484 sqft
1415 NE 32ND AVENUE
2120 NE 37TH COURT placeholder 2120 NE 37TH COURT
2 días
Activo con contrato
Casa
$260,000
3 camas 2 baños 1,735 sqft
2120 NE 37TH COURT
3236 NE 38TH LANE placeholder 3236 NE 38TH LANE
2 días
Activo con contrato
Casa
$270,990
4 camas 2 baños 1,879 sqft
3236 NE 38TH LANE
1916 NE 10TH STREET placeholder 1916 NE 10TH STREET
4 días
Activo con contrato
Casa
$256,000
3 camas 2 baños 1,499 sqft
1916 NE 10TH STREET
2992 NE 20TH TERRACE placeholder 2992 NE 20TH TERRACE
8 días
Activo con contrato
Casa
$319,070
5 camas 3 baños 2,077 sqft
2992 NE 20TH TERRACE
3781 NE 32ND COURT placeholder 3781 NE 32ND COURT
+$10K (2025/10/14)
Activo con contrato
Casa
$254,990
3 camas 2 baños 1,428 sqft
3781 NE 32ND COURT

The multiple listing information is provided by the Stellar MLS from a copyrighted compilation of listings. The compilation of listings and each individual listing are ©2026-present Stellar MLS. All Rights Reserved. The information provided is for consumers' personal, noncommercial use and may not be used for any purpose other than to identify prospective properties consumers may be interested in purchasing. All properties are subject to prior sale or withdrawal. All information provided is deemed reliable but is not guaranteed accurate, and should be independently verified. Listing courtesy of: DR HORTON REALTY OF WEST CENTRAL FLORIDA