Contacto
Cuéntenos sobre sus necesidades

3021 ALTON DRIVE

Casa En Venta
$1,575,000

BTC: 23.37940982

ETH: 820.31250000

56 días
Frente al mar
3 camas
3 baños
1,793 sqft
Est. Rango de ventas estimado: $0 - $0
$0

Visión general

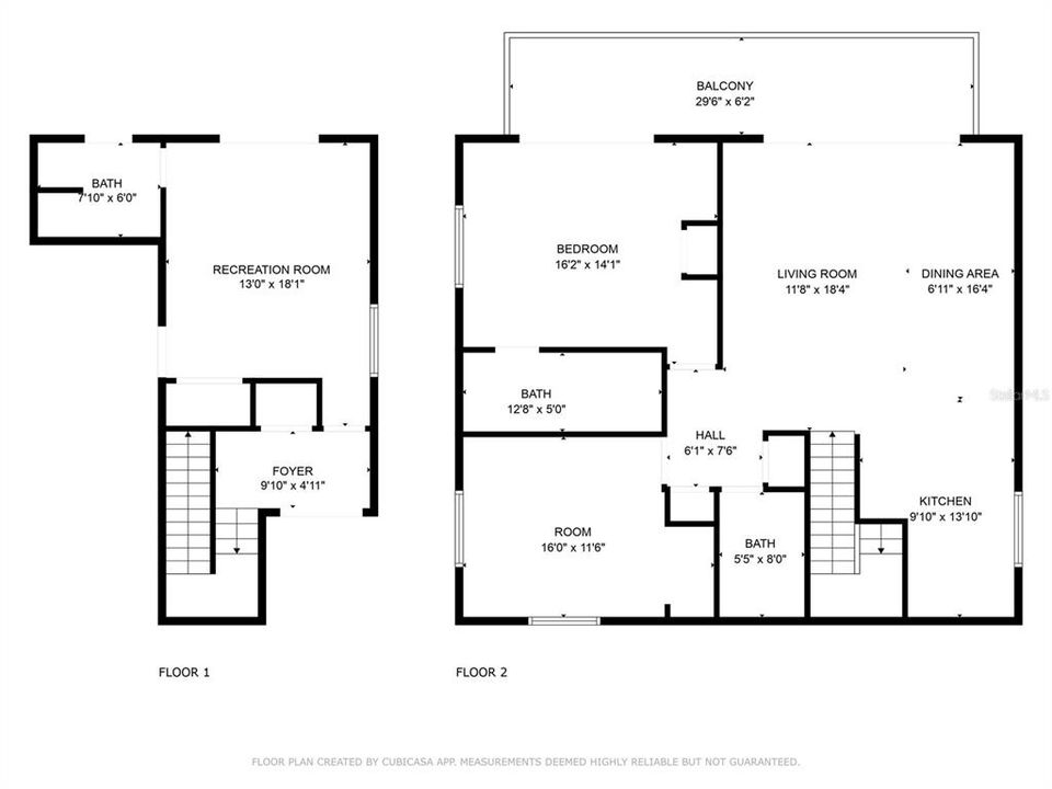
Family-owned since it was built, this home has been lovingly maintained and thoughtfully cared for over the years. This is a rare opportunity to own a distinctive residence offering 110 feet of prime waterfront, perfect for docking a sailboat or yacht. With nearly 1,800 square feet of interior living space, this home features three bedrooms, three bathrooms, an oversized garage, additional storage under the stairs, and a versatile bonus area ideal for a workshop, gym, or expanded storage. Enjoy the best of indoor/outdoor living with a spacious pavered patio on the lower level and a covered porch upstairs that seamlessly connects the living area and the primary bedroom. Start the morning with breathtaking sunrises over sparkling blue-green waters and end the day just minutes away watching sunsets at Pass-a-Grille Beach, less than two miles from the front door. The property is truly one of a kind, situated in a premier location within Vina del Mar. It rests on elevated ground next to the original Vina del Mar builder's residence, with buried power lines and open views across a large, deep-water canal in a protected basin. With zero bridge restrictions and just 2.5 miles to the Gulf, boating access to open waters is fast and hassle-free. The lot is intentionally xeriscaped with white shell and native Florida plants for low-maintenance and year-round ease. There’s ample space for kayaks, paddleboards, or canoes, and even room to add a pool. The private dock includes a 7,000 lb boat lift and a generously sized boat slip, ready for your next adventure. Just steps away is the 3.5-acre Vina del Mar community park, offering a playground, picnic pavilion with BBQ grill, a dog park, and lighted courts for basketball, tennis, and pickleball. Ready for that dream lifestyle where you can sip morning coffee with sunrise views and end the day with your toes in the sand watching a beachside sunset? This is it. Don’t miss your chance to make the ultimate lifestyle move!

Ubicación

Hechos y características

Tipo:
Residential
Estacionamiento:
Sin datos
Año de construcción:
1969
Lote:
0.15 Hectáreas
Calefacción:
Central / Electric
precio por sq. medidor:
$878
Enfriamiento:
Central Air
HOA:
Sin datos
Más hechos y características
  • Piso

    • Carpet

    • Tile

    • Travertine

    Calefacción

    • Central

    • Electric

    Enfriamiento

    • Central Air

    Accesorios

    • Dishwasher

    • Disposal

    • Dryer

    • Electric Water Heater

    • Microwave

    • Range

    • Refrigerator

    • Washer

    Otras características interiores

    • Crown Molding

    • Living Room/Dining Room Combo

    • PrimaryBedroom Upstairs

    • Solid Wood Cabinets

    Dormitorios y baños

    • Dormitorios: 3

    • Baños completos: 3

  • Propiedad

    • Pisos: Two

    • Características Exteriores: Balcony / Rain Gutters / Sliding Doors / Storage

    Lote

    • Lote: 0.15 Hectáreas

    Otra Información de Propiedad

    • Número de Parcela: 073216615600010100

  • Tipo y estilo

    • Tipo de propiedad: Residential

    • Subtipo de propiedad: Single Family Residence

  • Utilidad

    • Cable Connected

    • Electricity Connected

    • Sewer Connected

    • Underground Utilities

    • Water Connected

  • Otra información financiera

    • Frecuencia HOA: Annually

    • Importe anual de impuestos: $4,264

  • Detalles de la fuente

    • MLS ID: TB8431369

    Otros hechos

    • Materiales de construcción: Block / Stucco / Wood Frame

    • Detalles de la fundación: Slab

    • Características de lavandería: In Garage

    • Características del lote: Cul-De-Sac

    • Características del patio y el porche: Patio / Rear Porch

    • Caras de dirección: Northwest

    • Frente al mar: Si

    • Espacios de garaje: 2

    • Garaje adjunto: Si

    • Garaje: Si

    • Salón: 1793

    • Fuente de agua: Public

    • Tamaño de la parcela: 84 x 104

    • Nombre de subdivisión: NORTH VINA DEL MAR 1ST ADD

Casas similares

7600 BAYSHORE DRIVE UNIT 703A placeholder 7600 BAYSHORE DRIVE UNIT 703A
1 días
En Venta
Condo / Coop
$1,275,000
2 camas 2 baños 1,510 sqft
7600 BAYSHORE DRIVE UNIT 703A
4401 43RD STREET S placeholder 4401 43RD STREET S
1 días
En Venta
Casa
$1,650,000
4 camas 3 baños 2,343 sqft
4401 43RD STREET S
521 PINELLAS BAYWAY S UNIT 107 placeholder 521 PINELLAS BAYWAY S UNIT 107
2 días
En Venta
Adosados
$1,199,000
3 camas 3 baños 2,140 sqft
521 PINELLAS BAYWAY S UNIT 107
280 N JULIA CIRCLE placeholder 280 N JULIA CIRCLE
5 días
En Venta
Casa
$1,799,900
3 camas 2 baños 1,929 sqft
280 N JULIA CIRCLE
43 BAYVIEW COURT S UNIT #A placeholder 43 BAYVIEW COURT S UNIT #A
7 días
En Venta
Condo / Coop
$1,199,000
3 camas 3 baños 2,799 sqft
43 BAYVIEW COURT S UNIT #A
4951 BACOPA LANE S UNIT 103 placeholder 4951 BACOPA LANE S UNIT 103
12 días
En Venta
Condo / Coop
$1,295,000
2 camas 2 baños 1,822 sqft
4951 BACOPA LANE S UNIT 103
842 2ND AVENUE S placeholder 842 2ND AVENUE S
20 días
En Venta
Casa
$1,249,000
4 camas 3 baños 2,103 sqft
842 2ND AVENUE S
6650 SUNSET WAY UNIT 207 placeholder 6650 SUNSET WAY UNIT 207
23 días
En Venta
Condo / Coop
$1,250,000
2 camas 2 baños 2,070 sqft
6650 SUNSET WAY UNIT 207

The multiple listing information is provided by the Stellar MLS from a copyrighted compilation of listings. The compilation of listings and each individual listing are ©2026-present Stellar MLS. All Rights Reserved. The information provided is for consumers' personal, noncommercial use and may not be used for any purpose other than to identify prospective properties consumers may be interested in purchasing. All properties are subject to prior sale or withdrawal. All information provided is deemed reliable but is not guaranteed accurate, and should be independently verified. Listing courtesy of: KELLER WILLIAMS ST PETE REALTY