Contacto
Cuéntenos sobre sus necesidades

307 WATER SHORE DRIVE

Casa Activo con contrato
$355,000

BTC: 11.83333333

ETH: 177.50000000

-$14K (2025/11/04)
23 días
3 camas
2 baños
2,128 sqft
Est. Rango de ventas estimado: $0 - $0
$0

Visión general

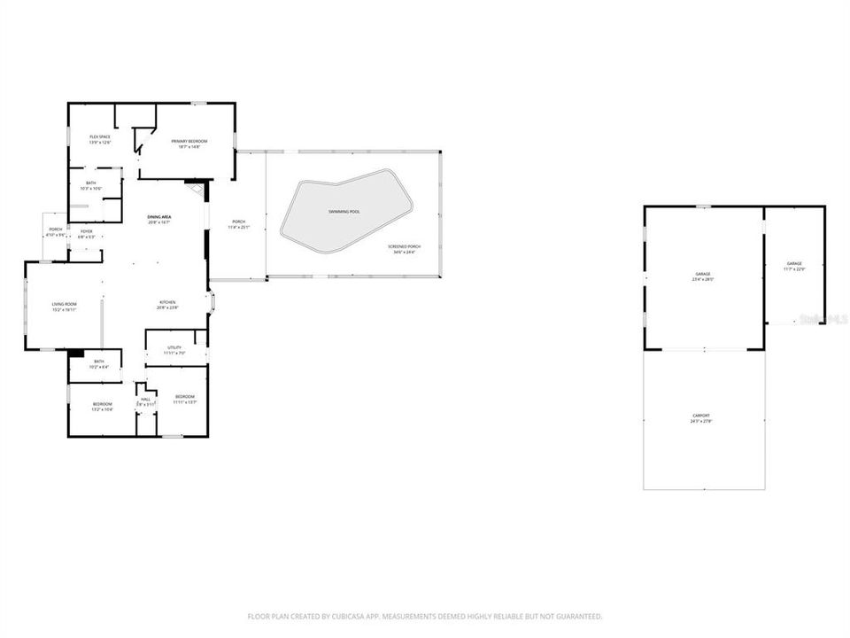
Under contract-accepting backup offers. Prime Leesburg Pool Home with Chain of Lakes Access! Enjoy the best of Florida living in this inviting 3-bedroom, 2-bath home with deeded access to Lake Griffin and the Chain of Lakes—complete with a private community boat ramp and dock for endless boating and fishing adventures. Situated on just over a half-acre, this property offers the perfect balance of indoor comfort and outdoor enjoyment. Relax or entertain in your own backyard oasis featuring a screened-in inground pool, spacious covered back porch, and a fully fenced yard shaded by a stunning canopy of live oaks. Inside, you’ll find a bright and open layout with an eat-in kitchen that opens to the pool area through sliding glass doors and features a cozy wood-burning fireplace, creating a warm and inviting gathering space. A flex room provides versatile use for an office, craft room, or hobby area. Both bathrooms feature skylights, adding natural light throughout, and one bedroom includes a loft area—perfect for storage or a child’s hideaway. The property also boasts an oversized detached 2-car garage/workshop with a 2-car carport, offering flexible use for vehicles, projects, or storage. Additional highlights include a generator hook-up, city water and sewer, a reverse osmosis system at the kitchen sink, and plenty of room to park a boat or RV. Major updates include a new roof (2022) and HVAC system (2021). Don’t miss this rare opportunity to own a pool home with private lake access, a workshop, and beautiful natural surroundings—schedule your showing today! Seller is offering $5,000 to the buyer for prepaids|closing costs|rate buydown with an accepted contract.

Ubicación

Hechos y características

Tipo:
Residential
Estacionamiento:
Driveway
Año de construcción:
1992
Lote:
0.58 Hectáreas
Calefacción:
Electric
precio por sq. medidor:
$167
Enfriamiento:
Central Air
HOA:
$950
Más hechos y características
  • Piso

    • Carpet

    • Concrete

    • Tile

    Calefacción

    • Electric

    Enfriamiento

    • Central Air

    Accesorios

    • Dishwasher

    • Disposal

    • Dryer

    • Electric Water Heater

    • Kitchen Reverse Osmosis System

    • Microwave

    • Range Hood

    • Refrigerator

    • Washer

    Otras características interiores

    • Ceiling Fan(s)

    • High Ceilings

    • Primary Bedroom Main Floor

    • Skylight(s)

    • Solid Wood Cabinets

    • Split Bedroom

    • Thermostat

    • Walk-In Closet(s)

    • Window Treatments

    Dormitorios y baños

    • Dormitorios: 3

    • Baños completos: 2

  • Estacionamiento

    • Driveway

    Propiedad

    • Pisos: One

    • Piscina Privada: Si

    • Características Exteriores: Awning(s) / Sliding Doors / Storage

    Lote

    • Lote: 0.58 Hectáreas

    Otra Información de Propiedad

    • Número de Parcela: 191925200000002600

    • Zonificación: R-2

  • Tipo y estilo

    • Tipo de propiedad: Residential

    • Subtipo de propiedad: Single Family Residence

  • Utilidad

    • Cable Available

    • Electricity Connected

    • Public

    • Sewer Connected

    • Water Connected

  • Otra información financiera

    • HOA: $950

    • Frecuencia HOA: Annually

    • Importe anual de impuestos: $1,837

  • Detalles de la fuente

    • MLS ID: G5103612

    Otros hechos

    • Materiales de construcción: Brick / Vinyl Siding / Wood Frame

    • Detalles de la fundación: Slab

    • Características de la chimenea: Other Room / Wood Burning

    • Características de lavandería: Electric Dryer Hookup / Inside / Laundry Room / Washer Hookup

    • Características del lote: City Lot

    • Características del patio y el porche: Covered / Patio / Screened

    • Características de la piscina: Gunite / In Ground / Screen Enclosure

    • Características de la ventana: Drapes / Rods / Window Treatments

    • Caras de dirección: North

    • Otras estructuras: Storage / Workshop

    • Hogar: Si

    • Nombre del cuerpo de agua: LAKE GRIFFIN

    • Espacios de garaje: 2

    • Garaje: Si

    • Salón: 2128

    • Fuente de agua: Public

    • Nombre de subdivisión: LEESBURG WATERS EDGE

Casas similares

7708 SLOEWOOD DRIVE placeholder 7708 SLOEWOOD DRIVE
3 días
Activo con contrato
Casa
$284,990
3 camas 2 baños 1,452 sqft
7708 SLOEWOOD DRIVE
MOCKINGBIRD LANE placeholder MOCKINGBIRD LANE
7 días
Activo con contrato
Lotes / Tierras
$299,900
0 room(s)
MOCKINGBIRD LANE
1102 MIZELL ROAD placeholder 1102 MIZELL ROAD
-$42K (2025/11/13)
Activo con contrato
Casa
$288,000
3 camas 2 baños 1,749 sqft
1102 MIZELL ROAD
2301 ANGEL FISH LOOP placeholder 2301 ANGEL FISH LOOP
-$45K (2025/11/21)
Activo con contrato
Casa
$400,000
4 camas 3 baños 2,931 sqft
2301 ANGEL FISH LOOP
2228 LAKE POINTE CIRCLE placeholder 2228 LAKE POINTE CIRCLE
-$5K (2025/10/09)
Activo con contrato
Casa
$315,000
4 camas 2 baños 1,820 sqft
2228 LAKE POINTE CIRCLE
1906 ANGEL FISH LOOP placeholder 1906 ANGEL FISH LOOP
-$36K (2025/10/01)
Activo con contrato
Casa
$324,000
3 camas 2 baños 2,035 sqft
1906 ANGEL FISH LOOP
504 S 12TH STREET placeholder 504 S 12TH STREET
-$37K (2025/11/10)
Activo con contrato
Casa
$298,000
3 camas 2 baños 2,042 sqft
504 S 12TH STREET
9178 HARRIS HAWK DRIVE placeholder 9178 HARRIS HAWK DRIVE
-$22K (2025/10/30)
Activo con contrato
Casa
$321,490
4 camas 2 baños 1,839 sqft
9178 HARRIS HAWK DRIVE

The multiple listing information is provided by the Stellar MLS from a copyrighted compilation of listings. The compilation of listings and each individual listing are ©2025-present Stellar MLS. All Rights Reserved. The information provided is for consumers' personal, noncommercial use and may not be used for any purpose other than to identify prospective properties consumers may be interested in purchasing. All properties are subject to prior sale or withdrawal. All information provided is deemed reliable but is not guaranteed accurate, and should be independently verified. Listing courtesy of: HANSON REAL ESTATE GROUP, INC.