Contacto
Cuéntenos sobre sus necesidades

31110 STONE ARCH AVENUE

Casa Activo con contrato
$349,999

BTC: 4.99285307

ETH: 170.31581509

19 días
4 camas
2 baños
1,980 sqft
Est. Rango de ventas estimado: $0 - $0
$0

Visión general

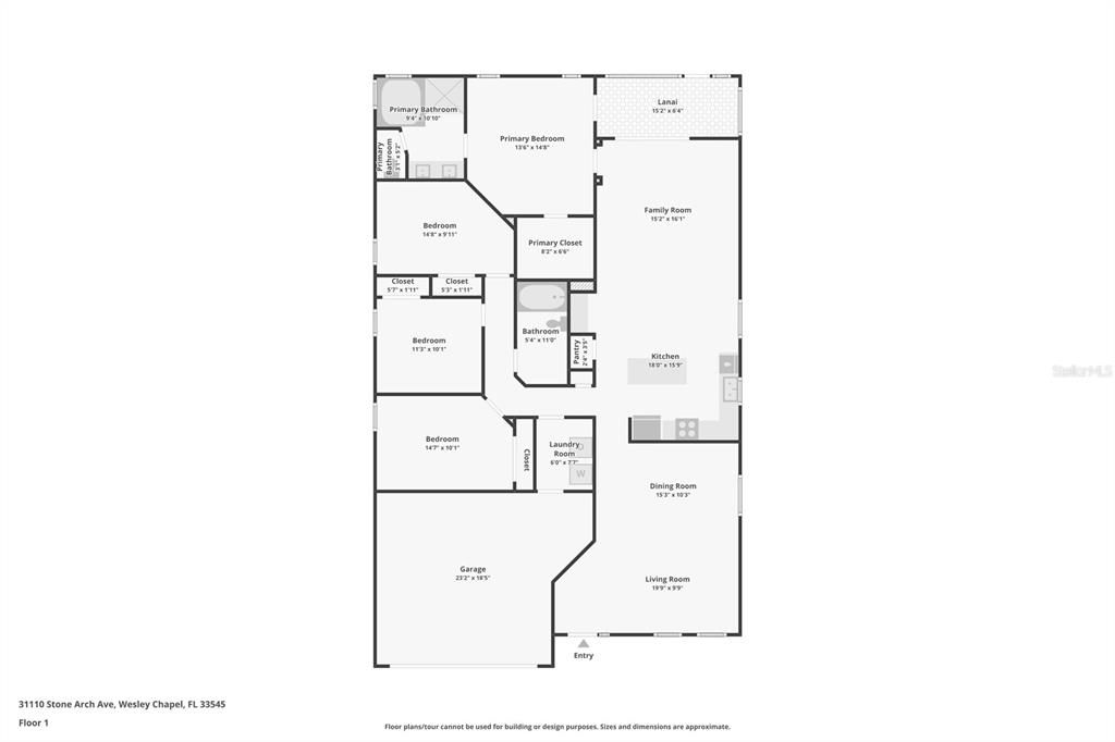
Welcome to this inviting four bedroom two bath home located in Wesley Chapel, offering a comfortable layout and everyday convenience. Set on an oversized corner lot, the home is filled with abundant natural light, creating a bright and welcoming atmosphere throughout. The thoughtfully designed split floorplan provides both privacy and functionality, featuring a living and dining area along with a separate kitchen and family room that works well for daily living and entertaining. The kitchen opens to the family room, making it easy to stay connected while hosting or relaxing. Laminate and carpet flooring add a blend of style and comfort across the main living areas and bedrooms. Recent updates add peace of mind, including a roof installed in 2020, an AC system replaced in 2020 with the remainder of a ten year transferable warranty on parts and the HVAC compressor, and a water heater installed in 2024. A two car garage offers ample parking and storage, while the spacious yard allows room to enjoy outdoor living. The nearby community park provides additional space for recreation and leisure. Conveniently located close to shopping, restaurants, sports facilities, and major highways, this home offers easy access to surrounding amenities while maintaining a residential feel. A great opportunity for buyers seeking space, light, and a practical layout in a desirable Wesley Chapel location.

Ubicación

Hechos y características

Tipo:
Residential
Estacionamiento:
Sin datos
Año de construcción:
2005
Lote:
0.18 Hectáreas
Calefacción:
Central / Electric
precio por sq. medidor:
$177
Enfriamiento:
Central Air
HOA:
$350
Más hechos y características
  • Piso

    • Carpet

    • Laminate

    Calefacción

    • Central

    • Electric

    Enfriamiento

    • Central Air

    Accesorios

    • Dishwasher

    • Disposal

    • Electric Water Heater

    • Microwave

    • Range

    Otras características interiores

    • Solid Wood Cabinets

    • Stone Counters

    • Walk-In Closet(s)

    Dormitorios y baños

    • Dormitorios: 4

    • Baños completos: 2

  • Propiedad

    • Pisos: One

    • Características Exteriores: Sliding Doors

    Lote

    • Lote: 0.18 Hectáreas

    Otra Información de Propiedad

    • Número de Parcela: 3425200030004000150

    • Zonificación: MPUD

  • Tipo y estilo

    • Tipo de propiedad: Residential

    • Subtipo de propiedad: Single Family Residence

  • Utilidad

    • Electricity Connected

    • Fire Hydrant

    • Public

    • Sewer Connected

    • Street Lights

  • Otra información financiera

    • HOA: $350

    • Frecuencia HOA: Annually

    • Importe anual de impuestos: $3,308

  • Detalles de la fuente

    • MLS ID: TB8456958

    Otros hechos

    • Materiales de construcción: Block / Stucco

    • Detalles de la fundación: Slab

    • Características de lavandería: Inside

    • Características del lote: Corner Lot / In County / Oversized Lot

    • Características del patio y el porche: Covered / Deck / Patio / Porch

    • Características de la ventana: Blinds

    • Caras de dirección: North

    • Espacios de garaje: 2

    • Garaje adjunto: Si

    • Garaje: Si

    • Salón: 1980

    • Fuente de agua: Public

    • Nombre de subdivisión: BRIDGEWATER PH 4

Casas similares

32541 WELLING BLADE LOOP placeholder 32541 WELLING BLADE LOOP
-$5K (2025/11/07)
Activo con contrato
Adosados
$311,990
3 camas 2 baños 1,673 sqft
32541 WELLING BLADE LOOP
30942 BACLAN DRIVE placeholder 30942 BACLAN DRIVE
+$6K (2025/12/17)
Activo con contrato
Casa
$374,900
4 camas 3 baños 1,810 sqft
30942 BACLAN DRIVE
31265 PAPER BIRCH STREET placeholder 31265 PAPER BIRCH STREET
6 días
Activo con contrato
Adosados
$296,990
3 camas 2 baños 1,673 sqft
31265 PAPER BIRCH STREET
32439 WELLING BLADE LOOP placeholder 32439 WELLING BLADE LOOP
-$1K (2025/12/10)
Activo con contrato
Adosados
$319,990
3 camas 2 baños 1,673 sqft
32439 WELLING BLADE LOOP
29300 BAY HOLLOW DRIVE UNIT 3258/3256 placeholder 29300 BAY HOLLOW DRIVE UNIT 3258/3256
7 días
Activo con contrato
Condo / Coop
$260,000
3 camas 3 baños 1,519 sqft
29300 BAY HOLLOW DRIVE UNIT 3258/3256
31253 PAPER BIRCH STREET placeholder 31253 PAPER BIRCH STREET
7 días
Activo con contrato
Adosados
$296,990
3 camas 2 baños 1,673 sqft
31253 PAPER BIRCH STREET
7754 TUSCAN BAY CIRCLE placeholder 7754 TUSCAN BAY CIRCLE
7 días
Activo con contrato
Casa
$349,995
3 camas 2 baños 1,516 sqft
7754 TUSCAN BAY CIRCLE
7900 BAY PINES DRIVE placeholder 7900 BAY PINES DRIVE
8 días
Activo con contrato
Casa
$280,000
3 camas 2 baños 2,080 sqft
7900 BAY PINES DRIVE

The multiple listing information is provided by the Stellar MLS from a copyrighted compilation of listings. The compilation of listings and each individual listing are ©2026-present Stellar MLS. All Rights Reserved. The information provided is for consumers' personal, noncommercial use and may not be used for any purpose other than to identify prospective properties consumers may be interested in purchasing. All properties are subject to prior sale or withdrawal. All information provided is deemed reliable but is not guaranteed accurate, and should be independently verified. Listing courtesy of: REDFIN CORPORATION