Contacto
Cuéntenos sobre sus necesidades

3118 SWEETGUM STREET

Casa Activo con contrato
$330,000

BTC: 3.79965458

ETH: 165.00000000

-$20K (2025/10/29)
210 días
3 camas
2 baños
1,392 sqft
Est. Rango de ventas estimado: $0 - $0
$0

Visión general

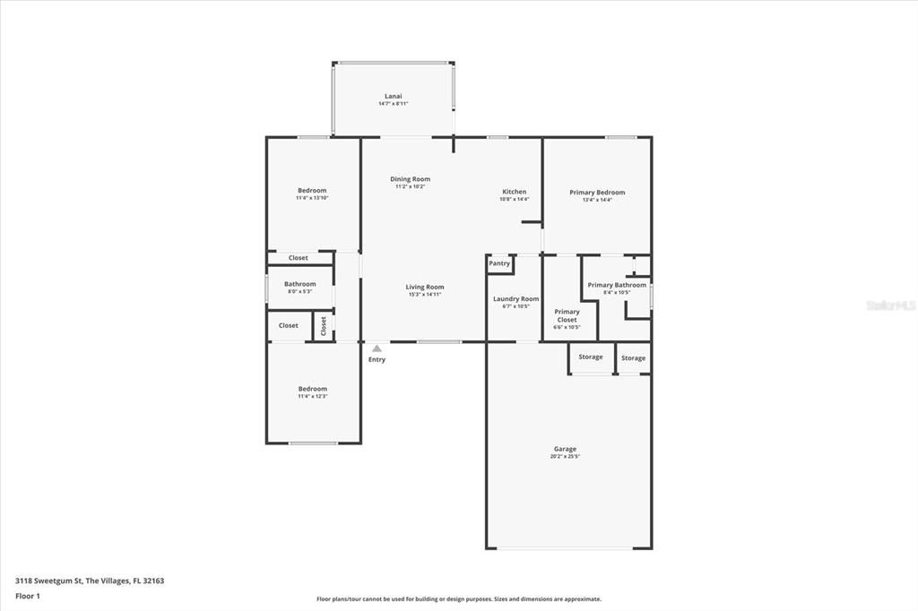
Centrally located between Brownwood Town Center and Sawgrass. Fenney Recreation Center is just 5 minutes by golf cart. This 3 bedroom 2 bath Bougainville Designer home offers a welcoming rock bed, low-maintenance landscaping and a covered front porch perfect for enjoying your morning coffee. Step inside to a spacious open and split floor plan with vaulted ceilings, ceiling fans throughout, and elegant Luxury Vinyl Plank flooring in the kitchen, living, dining, and hallway areas. The heart of the home boasts a bright kitchen featuring a solar tube for natural light, high-definition laminate countertops, stainless steel appliances, pull-out shelves, and a convenient pantry closet. Retreat to the carpeted master suite with its own ensuite bath complete with dual vanity, a glass door walk-in shower with bench, glass block window, and a walk-in closet. Guest bedrooms share a well-appointed bathroom with a tub/shower combo. New carpet in the bedrooms adds a cozy touch, while a pocket door provides privacy to the guest wing. Enjoy outdoor living year-round in the covered and screened lanai with a privacy wall behind. Additional highlights include: inside laundry with mud sink, a storage closet in the garage, pull-down attic stairs, a full 2-car garage, gutters all around, Nova water filtration system, and a tankless hot water heater. The Blue Heron and Fenney pools are just ½ mile away. Close to Red Fox and Gray Fox golf courses. Magnolia Plaza for shopping and dining is just 10 minutes away. Come enjoy all the Villages has to provide. Be sure to watch our video of this home and schedule your showing so you can start living The Villages dream.

Ubicación

Hechos y características

Tipo:
Residential
Estacionamiento:
Driveway / Garage Door Opener
Año de construcción:
2017
Lote:
0.12 Hectáreas
Calefacción:
Central
precio por sq. medidor:
$237
Enfriamiento:
Central Air
HOA:
Sin datos
Más hechos y características
  • Piso

    • Carpet

    • Luxury Vinyl

    Calefacción

    • Central

    Enfriamiento

    • Central Air

    Accesorios

    • Dishwasher

    • Disposal

    • Dryer

    • Range

    • Refrigerator

    • Tankless Water Heater

    • Washer

    • Water Purifier

    Otras características interiores

    • Ceiling Fan(s)

    • Open Floorplan

    • Solid Surface Counters

    • Solid Wood Cabinets

    • Split Bedroom

    • Vaulted Ceiling(s)

    • Walk-In Closet(s)

    • Window Treatments

    Dormitorios y baños

    • Dormitorios: 3

    • Baños completos: 2

  • Estacionamiento

    • Driveway

    • Garage Door Opener

    Propiedad

    • Pisos: One

    • Características Exteriores: Irrigation System / Rain Gutters / Sidewalk / Sliding Doors

    Lote

    • Lote: 0.12 Hectáreas

    Otra Información de Propiedad

    • Número de Parcela: G32K052

    • Zonificación: R-1

  • Tipo y estilo

    • Tipo de propiedad: Residential

    • Subtipo de propiedad: Single Family Residence

  • Utilidad

    • BB/HS Internet Available

    • Cable Available

    • Electricity Connected

    • Phone Available

    • Sewer Connected

    • Water Connected

  • Otra información financiera

    • Importe anual de impuestos: $4,100

  • Detalles de la fuente

    • MLS ID: G5096730

    Otros hechos

    • Materiales de construcción: Vinyl Siding / Wood Frame

    • Detalles de la fundación: Slab

    • Características de lavandería: Inside

    • Características del patio y el porche: Front Porch / Rear Porch / Screened

    • Características de la ventana: Blinds

    • Caras de dirección: North

    • Estilo arquitectónico: Cottage

    • Espacios de garaje: 2

    • Garaje adjunto: Si

    • Garaje: Si

    • Salón: 1392

    • Fuente de agua: Public

    • Nombre de subdivisión: THE VILLAGES

Casas similares

3102 SWEETGUM STREET placeholder 3102 SWEETGUM STREET
22 días
Activo con contrato
Casa
$409,000
3 camas 2 baños 1,766 sqft
3102 SWEETGUM STREET
6801 E WARM SPRINGS AVENUE placeholder 6801 E WARM SPRINGS AVENUE
34 días
Activo con contrato
Casa
$295,000
3 camas 1 baños 1,205 sqft
6801 E WARM SPRINGS AVENUE
2389 TIFFANY TERRACE placeholder 2389 TIFFANY TERRACE
-$17K (2025/10/31)
Activo con contrato
Casa
$262,900
2 camas 2 baños 979 sqft
2389 TIFFANY TERRACE
2306 SHEEHAN STREET placeholder 2306 SHEEHAN STREET
-$20K (2025/09/27)
Activo con contrato
Casa
$279,000
2 camas 2 baños 1,227 sqft
2306 SHEEHAN STREET

The multiple listing information is provided by the Stellar MLS from a copyrighted compilation of listings. The compilation of listings and each individual listing are ©2025-present Stellar MLS. All Rights Reserved. The information provided is for consumers' personal, noncommercial use and may not be used for any purpose other than to identify prospective properties consumers may be interested in purchasing. All properties are subject to prior sale or withdrawal. All information provided is deemed reliable but is not guaranteed accurate, and should be independently verified. Listing courtesy of: KELLER WILLIAMS CORNERSTONE RE