Contacto
Cuéntenos sobre sus necesidades

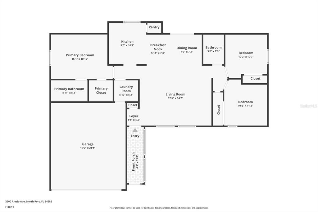
3200 ALESIO AVENUE

Casa Activo con contrato
$320,000

BTC: 10.66666667

ETH: 160.00000000

19 días
3 camas
2 baños
1,192 sqft
Est. Rango de ventas estimado: $0 - $0
$0

Visión general

Under contract-accepting backup offers. Florida living is at its best at this beautifully maintained 3-bedroom, 2-bath home with a private heated pool and spa, located in a quiet North Port neighborhood. From the moment you arrive, the curb appeal sets the tone, and inside, a smart split floor plan delivers both comfort and functionality. Vaulted ceilings and natural light fill the open-concept living, dining, and kitchen areas, where tile floors flow throughout and a breakfast bar creates the perfect spot for casual mornings or easy entertaining. Step outside and discover a fully fenced backyard built for relaxation and fun. The heated pool invites you to dive in year-round, while the standalone spa is ideal for unwinding after a long day. A brick-paver patio with multiple shaded areas makes this space perfect for hosting or lounging under the Florida sun. A baby safety gate adds peace of mind, and storm shutters offer full-home protection. The Ring camera system with five cameras, plus lawn and pest care services already in place, help keep things easy and secure. Additional highlights include a dedicated laundry room, generous storage, a well-maintained HVAC system with full service history, and a prime location minutes from US-41, I-75, shopping, dining, and schools. ?Please Note: Current taxes reflect a non-homestead status. Buyers intending to make this their primary residence may benefit from lower property taxes once homestead exemptions are applied. This is the one that checks all the boxes—schedule your private tour today!

Ubicación

Hechos y características

Tipo:
Residential
Estacionamiento:
Garage Door Opener / Ground Level
Año de construcción:
2000
Lote:
0.23 Hectáreas
Calefacción:
Central
precio por sq. medidor:
$268
Enfriamiento:
Central Air
HOA:
Sin datos
Más hechos y características
  • Piso

    • Tile

    Calefacción

    • Central

    Enfriamiento

    • Central Air

    Accesorios

    • Other

    Otras características interiores

    • Ceiling Fan(s)

    • Crown Molding

    • Living Room/Dining Room Combo

    • Primary Bedroom Main Floor

    Dormitorios y baños

    • Dormitorios: 3

    • Baños completos: 2

  • Estacionamiento

    • Garage Door Opener

    • Ground Level

    Propiedad

    • Pisos: One

    • Piscina Privada: Si

    • Características Exteriores: Other / Outdoor Grill

    Lote

    • Lote: 0.23 Hectáreas

    Otra Información de Propiedad

    • Número de Parcela: 0981041008

    • Zonificación: RSF2

  • Tipo y estilo

    • Tipo de propiedad: Residential

    • Subtipo de propiedad: Single Family Residence

  • Utilidad

    • Cable Connected

  • Otra información financiera

    • Importe anual de impuestos: $4,040

  • Detalles de la fuente

    • MLS ID: C7517438

    Otros hechos

    • Materiales de construcción: Stucco

    • Detalles de la fundación: Slab

    • Características de lavandería: Laundry Room

    • Características del lote: Cleared / Landscaped / Level / Private

    • Características del patio y el porche: Front Porch

    • Características de la piscina: Child Safety Fence / Heated / In Ground

    • Características de la ventana: Blinds / Double Pane Windows

    • Caras de dirección: North

    • Estilo arquitectónico: Ranch

    • Espacios de garaje: 2

    • Garaje adjunto: Si

    • Garaje: Si

    • Salón: 1192

    • Fuente de agua: Well

    • Tamaño de la parcela: 80 x 120

    • Nombre de subdivisión: PORT CHARLOTTE SUB 09

Casas similares

4972 TUSCOLA BOULEVARD placeholder 4972 TUSCOLA BOULEVARD
3 días
Activo con contrato
Casa
$300,000
4 camas 2 baños 1,822 sqft
4972 TUSCOLA BOULEVARD
2151 HONEY LANE placeholder 2151 HONEY LANE
4 días
Activo con contrato
Casa
$259,000
3 camas 2 baños 1,286 sqft
2151 HONEY LANE
4632 THISBE STREET placeholder 4632 THISBE STREET
6 días
Activo con contrato
Casa
$249,900
3 camas 2 baños 1,195 sqft
4632 THISBE STREET
2822 ENSENADA LANE placeholder 2822 ENSENADA LANE
6 días
Activo con contrato
Casa
$267,000
3 camas 2 baños 1,293 sqft
2822 ENSENADA LANE
4072 OSCAR TERRACE placeholder 4072 OSCAR TERRACE
7 días
Activo con contrato
Casa
$299,900
3 camas 2 baños 1,427 sqft
4072 OSCAR TERRACE
3935 NEMO AVENUE placeholder 3935 NEMO AVENUE
8 días
Activo con contrato
Casa
$329,000
3 camas 2 baños 2,010 sqft
3935 NEMO AVENUE
4145 LAGOON TERRACE placeholder 4145 LAGOON TERRACE
10 días
Activo con contrato
Casa
$349,900
3 camas 2 baños 1,655 sqft
4145 LAGOON TERRACE
1956 SNOVER AVENUE placeholder 1956 SNOVER AVENUE
10 días
Activo con contrato
Casa
$369,000
3 camas 2 baños 1,772 sqft
1956 SNOVER AVENUE

The multiple listing information is provided by the Stellar MLS from a copyrighted compilation of listings. The compilation of listings and each individual listing are ©2025-present Stellar MLS. All Rights Reserved. The information provided is for consumers' personal, noncommercial use and may not be used for any purpose other than to identify prospective properties consumers may be interested in purchasing. All properties are subject to prior sale or withdrawal. All information provided is deemed reliable but is not guaranteed accurate, and should be independently verified. Listing courtesy of: RE/MAX PALM REALTY