Contacto
Cuéntenos sobre sus necesidades

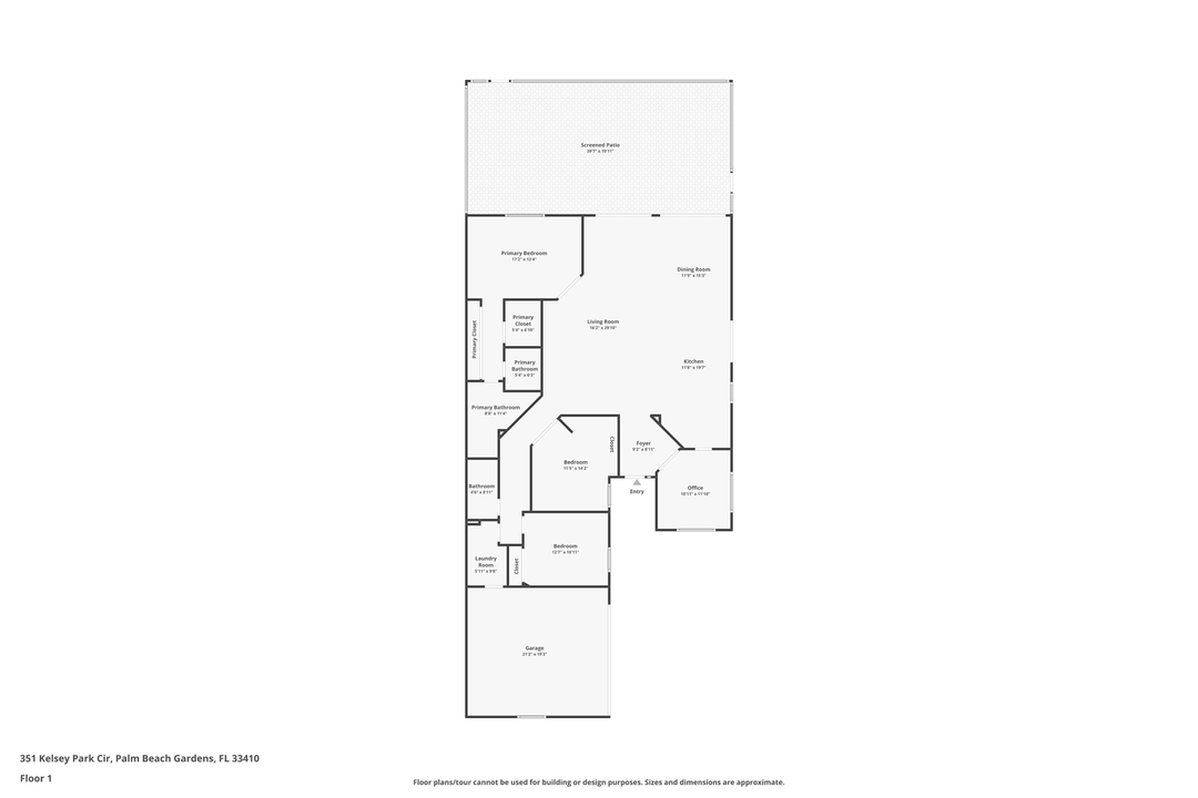
351 Kelsey Park, Palm Beach Gardens, FL 33410

Casa Activo con contrato
$699,000

BTC: 23.30000000

ETH: 349.50000000

5 días
3 camas
3 baños
2,024 sqft
Est. Rango de ventas estimado: $0 - $0
$0

Visión general

LOCATION + POTENTIAL + LIFESTYLE! This Divosta ''Built Solid'' home--lovingly maintained by its original and only owner--offers incredible potential in one of Palm Beach Gardens' most desirable guard-gated communities. With soaring 10'+ ceilings, poured concrete construction, plantation shutters, crown moulding, and a wide-open single-story layout (no stairs!), this home gives you the perfect foundation to customize to your taste. The kitchen is ready for your personal vision, and major updates are already complete: a 2024 roof, new whole-home gutters, a new impact-rated slider, a 2020 HVAC system, and accordion shutters for storm protection. The huge screened-in lanai serves as an ideal extension of the living space--The home's mature, well-maintained landscaping adds beauty, privacy and

Ubicación

Hechos y características

Tipo:
Residential
Estacionamiento:
Garage - Attached
Año de construcción:
1993
Lote:
6997 Pies Cuadrados
Calefacción:
Central
precio por sq. medidor:
$345
Enfriamiento:
Central
HOA:
Sin datos
Más hechos y características
  • Piso

    • Ceramic Tile

    Calefacción

    • Central

    Enfriamiento

    • Central

    Accesorios

    • Dishwasher

    • Dryer

    • Microwave

    • Range - Electric

    • Refrigerator

    • Washer

    • Water Heater - Elec

    Otras características interiores

    • Entry Lvl Lvng Area

    • Foyer

    • Split Bedroom

    Dormitorios y baños

    • Dormitorios: 3

    • Baños completos: 3

  • Estacionamiento

    • Garage - Attached

    Propiedad

    • Características Exteriores: Fence / Screen Porch / Screened Patio / Shutters / Zoned Sprinkler

    Lote

    • Lote: 6997 Pies Cuadrados

    Otra Información de Propiedad

    • Número de Parcela: 52434208170002650

    • Zonificación: RES

  • Tipo y estilo

    • Tipo de propiedad: Residential

    • Subtipo de propiedad: Single Family Residence

  • Utilidad

    • Cable

    • Public Sewer

    • Public Water

    • Underground

  • Otra información financiera

    • Importe anual de impuestos: $4,212

  • Detalles de la fuente

    • MLS ID: RX-11140571

    Otros hechos

    • Materiales de construcción: CBS

    • Características del lote: < 1/4 Acre

    • Caras de dirección: Exit East on I-95 - PGA Blvd, South on RCA Blvd, at the stop sign east on RCA Blvd, South Gardens East Dr, Enter Oaks East community gate.

    • Espacios de garaje: 2

    • Garaje: Si

    • Salón: 2024

    • Nombre de subdivisión: OAKS EAST 4

Casas similares

12665 Machiavelli, Palm Beach Gardens, FL 33418 placeholder 12665 Machiavelli, Palm Beach Gardens, FL 33418
Nuevo
Activo con contrato
Adosados
$880,000
3 camas 3 baños 2,252 sqft
12665 Machiavelli, Palm Beach Gardens, FL 33418
4151 Linden, Palm Beach Gardens, FL 33410 placeholder 4151 Linden, Palm Beach Gardens, FL 33410
Nuevo
Activo con contrato
Casa
$700,000
3 camas 2 baños 1,891 sqft
4151 Linden, Palm Beach Gardens, FL 33410
2720 Ravella, Palm Beach Gardens, FL 33410 placeholder 2720 Ravella, Palm Beach Gardens, FL 33410
Nuevo
Activo con contrato
Adosados
$625,000
3 camas 3 baños 2,383 sqft
2720 Ravella, Palm Beach Gardens, FL 33410
645 Hudson Bay, Palm Beach Gardens, FL 33410 placeholder 645 Hudson Bay, Palm Beach Gardens, FL 33410
1 días
Activo con contrato
Casa
$725,000
2 camas 2 baños 1,678 sqft
645 Hudson Bay, Palm Beach Gardens, FL 33410
904 Magdalena, Palm Beach Gardens, FL 33410 placeholder 904 Magdalena, Palm Beach Gardens, FL 33410
3 días
Activo con contrato
Adosados
$630,000
2 camas 2 baños 1,513 sqft
904 Magdalena, Palm Beach Gardens, FL 33410
4235 Hyacinth, Palm Beach Gardens, FL 33410 placeholder 4235 Hyacinth, Palm Beach Gardens, FL 33410
3 días
Activo con contrato
Casa
$525,000
4 camas 2 baños 1,684 sqft
4235 Hyacinth, Palm Beach Gardens, FL 33410
283 Kelsey Park, Palm Beach Gardens, FL 33410 placeholder 283 Kelsey Park, Palm Beach Gardens, FL 33410
4 días
Activo con contrato
Casa
$799,000
3 camas 2 baños 2,024 sqft
283 Kelsey Park, Palm Beach Gardens, FL 33410
130 Lakeshore, North Palm Beach, FL 33408 placeholder 130 Lakeshore, North Palm Beach, FL 33408
4 días
Activo con contrato
Condo / Coop
$623,500
2 camas 2 baños 1,235 sqft
130 Lakeshore, North Palm Beach, FL 33408

The multiple listing information is provided by the Beaches MLS from a copyrighted compilation of listings. The compilation of listings and each individual listing are ©2025-present Beaches MLS. All Rights Reserved. The information provided is for consumers' personal, noncommercial use and may not be used for any purpose other than to identify prospective properties consumers may be interested in purchasing. All properties are subject to prior sale or withdrawal. All information provided is deemed reliable but is not guaranteed accurate, and should be independently verified. Listing courtesy of: Illustrated Properties LLC (Co