Contacto
Cuéntenos sobre sus necesidades

363 PAISLEY, Lehigh Acres FL 33974

Casa En Venta
$655,000

BTC: 7.27818212

ETH: 214.75409836

-$15K (2025/11/26)
75 días
4 camas
4 baños
2,095 sqft
Est. Rango de ventas estimado: $0 - $0
$0

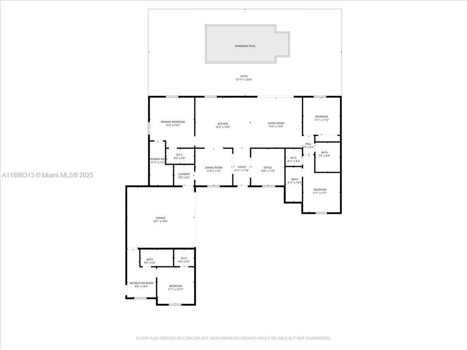
Visión general

Modern pool home offering comfort and investment potential. Features a heated pool with a salt-based water treatment system, perfect for year-round enjoyment. The in-law suite includes a private entrance and separate A/C unit—ideal for guests or rental income. A full garage remains intact for parking and storage. The backyard includes a shed with completed electrical rough-in, ready for conversion or workshop use. Open-concept interior with modern finishes, oversized driveway, fenced yard, and prime location near major roads, shopping, and schools.

Ubicación

Hechos y características

Tipo:
Residential
Estacionamiento:
Additional Spaces Available / Driveway
Año de construcción:
2023
Lote:
Sin datos
Calefacción:
Central
precio por sq. medidor:
$313
Enfriamiento:
Ceiling Fan(s) / Central Air
HOA:
Sin datos
Más hechos y características
  • Piso

    • Tile

    Calefacción

    • Central

    Enfriamiento

    • Ceiling Fan(s)

    • Central Air

    Accesorios

    • Disposal

    • Electric Water Heater

    • Microwave

    • Electric Range

    • Refrigerator

    • Water Softener Owned

    Otras características interiores

    • First Floor Entry

    • Built-in Features

    • Other

    • Roman Tub

    • Walk-In Closet(s)

    • Separate Guest/In-Law Quarters

    • Utility Room/Laundry

    Dormitorios y baños

    • Dormitorios: 4

    • Baños completos: 4

  • Estacionamiento

    • Additional Spaces Available

    • Driveway

    Propiedad

    • Características Exteriores: Barbeque / Lighting

    Otra Información de Propiedad

    • Número de Parcela: 10405638

    • Zonificación: RS-1

  • Tipo y estilo

    • Tipo de propiedad: Residential

    • Subtipo de propiedad: Single Family Residence

  • Otra información financiera

    • Importe anual de impuestos: $4,638

  • Detalles de la fuente

    • MLS ID: A11898313

    Otros hechos

    • Materiales de construcción: Concrete Block Construction

    • Características de lavandería: Utility Room/Laundry

    • Características del lote: 1/4 To Less Than 1/2 Acre Lot

    • Características de la piscina: In Ground

    • Caras de dirección: West

    • Otras estructuras: Shed(s)

    • Estilo arquitectónico: Attached / One Story

    • Espacios de garaje: 2

    • Garaje adjunto: Si

    • Garaje: Si

    • Salón: 2095

    • Fuente de agua: Well

    • Nombre de subdivisión: Lehigh

Casas similares

4119 SW 9th, Lehigh Acres FL 33976 placeholder 4119 SW 9th, Lehigh Acres FL 33976
9 días
En Venta
Casa
$599,900
5 camas 3 baños
4119 SW 9th, Lehigh Acres FL 33976
20831 COPPERHEAD DRIVE placeholder 20831 COPPERHEAD DRIVE
49 días
En Venta
Casa
$595,000
3 camas 2 baños 2,585 sqft
20831 COPPERHEAD DRIVE
20831 Copperhead Drive, Lehigh Acres FL 33936 placeholder 20831 Copperhead Drive, Lehigh Acres FL 33936
50 días
En Venta
Casa
$595,000
3 camas 2 baños
20831 Copperhead Drive, Lehigh Acres FL 33936
363 PAISLEY AVENUE placeholder 363 PAISLEY AVENUE
73 días
En Venta
Casa
$670,000
4 camas 4 baños 2,095 sqft
363 PAISLEY AVENUE
406 Leeland Heights, Lehigh Acres, FL 33936 placeholder 406 Leeland Heights, Lehigh Acres, FL 33936
-$9K (2025/12/02)
En Venta
Casa
$486,000
4 camas 3 baños 2,465 sqft
406 Leeland Heights, Lehigh Acres, FL 33936
125 PADDOCK STREET placeholder 125 PADDOCK STREET
-$50K (2025/12/10)
En Venta
Casa
$475,000
3 camas 2 baños 1,666 sqft
125 PADDOCK STREET
149/151 SW PENNFIELD, Lehigh Acres FL 33974 placeholder 149/151 SW PENNFIELD, Lehigh Acres FL 33974
-$4K (2025/04/04)
En Venta
Multifamiliar
$495,900
0 room(s)
149/151 SW PENNFIELD, Lehigh Acres FL 33974

The multiple listing information is provided by the Miami Association of REALTORS® from a copyrighted compilation of listings. The compilation of listings and each individual listing are ©2026-present Miami Association of REALTORS®. All Rights Reserved. The information provided is for consumers' personal, noncommercial use and may not be used for any purpose other than to identify prospective properties consumers may be interested in purchasing. All properties are subject to prior sale or withdrawal. All information provided is deemed reliable but is not guaranteed accurate, and should be independently verified. Listing courtesy of: Aari Realty LLC