Contacto
Cuéntenos sobre sus necesidades

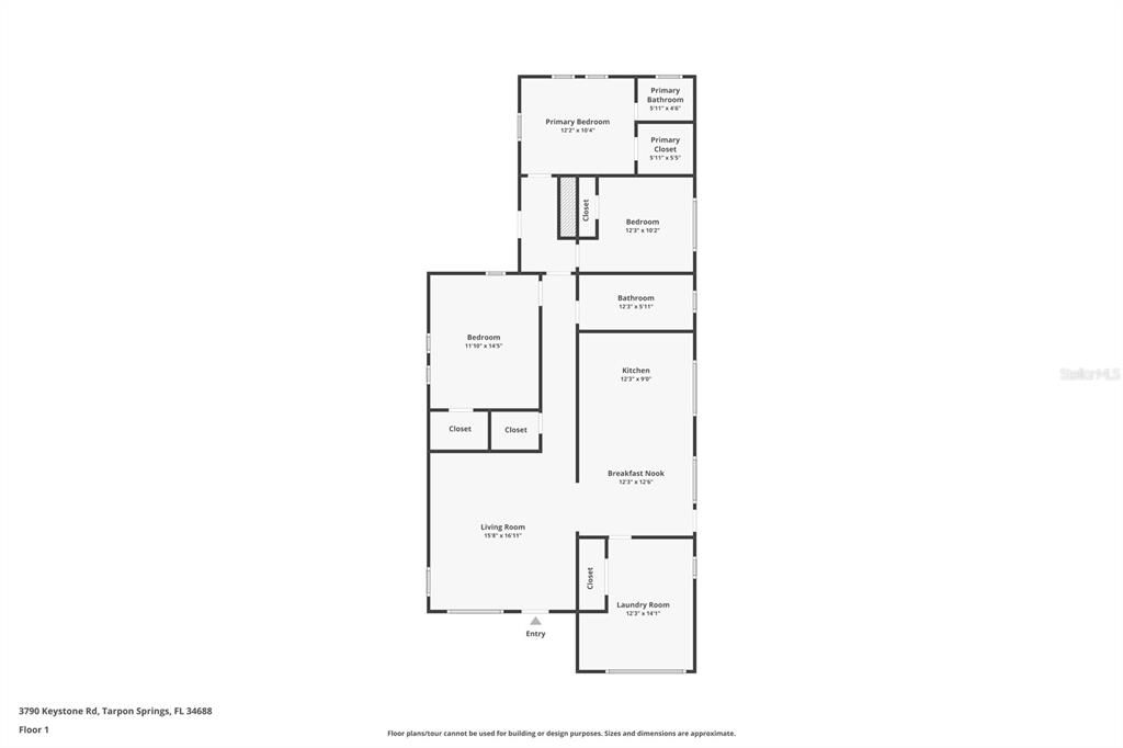
3790 KEYSTONE ROAD

Casa Activo con contrato
$725,000

BTC: 24.16666667

ETH: 362.50000000

51 días
3 camas
1 baños
1,540 sqft
Est. Rango de ventas estimado: $0 - $0
$0

Visión general

Over 4 Acres in Tarpon Springs! This rare Tarpon Springs property offers more than just a home! Set on over 4 acres, the property includes a charming 3-bedroom single-family residence, two buildings, and a storage room, all well maintained and full of Florida character. The 3 bedroom home itself welcomes you with a large living room, an open kitchen with island, upgraded cabinets, and stunning stone countertops. A dining area with wood-beamed ceiling adds a rustic, Florida-barn charm. The primary bedroom offers a private half bath and ample closet space, while the additional bedrooms are nicely sized for comfort. A large laundry room adds extra convenience to everyday living. This unique property delivers it all. With its prime location, acreage, and endless possibilities, this is a one-of-a-kind opportunity in Tarpon Springs.

Ubicación

Hechos y características

Tipo:
Residential
Estacionamiento:
Sin datos
Año de construcción:
1945
Lote:
4.13 Hectáreas
Calefacción:
Central
precio por sq. medidor:
$471
Enfriamiento:
Central Air
HOA:
Sin datos
Más hechos y características
  • Piso

    • Ceramic Tile

    • Hardwood

    Calefacción

    • Central

    Enfriamiento

    • Central Air

    Accesorios

    • Dishwasher

    • Range

    • Refrigerator

    Otras características interiores

    • Ceiling Fan(s)

    • Primary Bedroom Main Floor

    Dormitorios y baños

    • Dormitorios: 3

    • Baños: 1

    • Baños completos: 1

  • Propiedad

    • Pisos: One

    • Características Exteriores: Dog Run

    Lote

    • Lote: 4.13 Hectáreas

    Otra Información de Propiedad

    • Número de Parcela: 142716000001100200

    • Zonificación: A-E

  • Tipo y estilo

    • Tipo de propiedad: Residential

    • Subtipo de propiedad: Single Family Residence

  • Utilidad

    • Other

  • Otra información financiera

    • Importe anual de impuestos: $9,483

  • Detalles de la fuente

    • MLS ID: TB8419744

    Otros hechos

    • Materiales de construcción: Block / Wood Frame

    • Detalles de la fundación: Crawlspace

    • Características de lavandería: Inside / Laundry Room

    • Características del patio y el porche: Porch

    • Caras de dirección: North

    • Otras estructuras: Kennel/Dog Run

    • Salón: 1540

    • Fuente de agua: Public

    • Tamaño de la parcela: 330 x 520

    • Nombre de subdivisión: NONE

Casas similares

467 EQUINE DRIVE placeholder 467 EQUINE DRIVE
5 días
Activo con contrato
Casa
$599,900
4 camas 2 baños 1,890 sqft
467 EQUINE DRIVE
10703 GARDA DRIVE placeholder 10703 GARDA DRIVE
9 días
Activo con contrato
Casa
$825,000
4 camas 4 baños 3,811 sqft
10703 GARDA DRIVE
342 MANE COURT placeholder 342 MANE COURT
9 días
Activo con contrato
Casa
$549,900
4 camas 3 baños 2,308 sqft
342 MANE COURT
1130 KINGS WAY LANE placeholder 1130 KINGS WAY LANE
14 días
Activo con contrato
Casa
$775,000
3 camas 3 baños 2,474 sqft
1130 KINGS WAY LANE
1856 KINSMERE DRIVE placeholder 1856 KINSMERE DRIVE
-$10K (2025/09/30)
Activo con contrato
Casa
$639,900
4 camas 3 baños 3,247 sqft
1856 KINSMERE DRIVE
8732 LOVAS TRAIL placeholder 8732 LOVAS TRAIL
-$61K (2025/10/03)
Activo con contrato
Casa
$519,000
4 camas 2 baños 2,396 sqft
8732 LOVAS TRAIL
1227 TOSCANO DRIVE placeholder 1227 TOSCANO DRIVE
-$73K (2025/10/29)
Activo con contrato
Casa
$925,000
5 camas 4 baños 3,948 sqft
1227 TOSCANO DRIVE
3490 OLD KEYSTONE ROAD placeholder 3490 OLD KEYSTONE ROAD
-$50K (2025/10/10)
Activo con contrato
Casa
$900,000
4 camas 2 baños 2,454 sqft
3490 OLD KEYSTONE ROAD

The multiple listing information is provided by the Stellar MLS from a copyrighted compilation of listings. The compilation of listings and each individual listing are ©2025-present Stellar MLS. All Rights Reserved. The information provided is for consumers' personal, noncommercial use and may not be used for any purpose other than to identify prospective properties consumers may be interested in purchasing. All properties are subject to prior sale or withdrawal. All information provided is deemed reliable but is not guaranteed accurate, and should be independently verified. Listing courtesy of: KELLER WILLIAMS SUBURBAN TAMPA