Contacto
Cuéntenos sobre sus necesidades

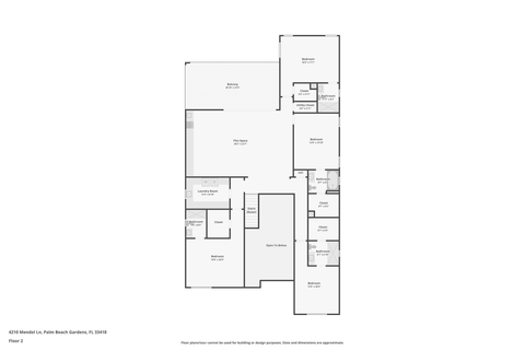
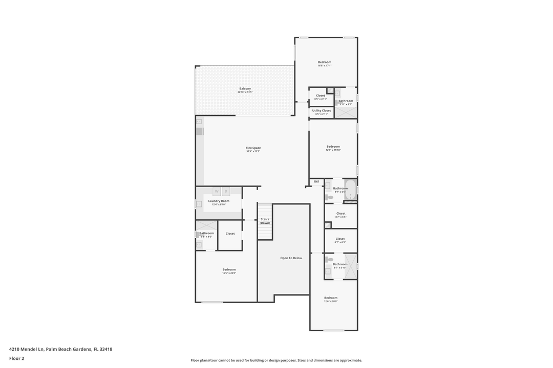
4210 Mendel, Palm Beach Gardens, FL 33418

Casa En Venta
$3,350,000

BTC: 49.72763359

ETH: 1,717.94871795

63 días
5 camas
5 baños
5,109 sqft
Est. Rango de ventas estimado: $0 - $0
$0

Visión general

Presenting 4210 Mendel Lane - a breathtaking, move-in-ready designer model home featuring 5 bedrooms, 5.5 bathrooms, and 5,100+ square feet of modern sophistication. Every detail has been meticulously curated from gleaming white marble floors and dramatic coffered ceilings to custom millwork, designer lighting, and a chef's kitchen equipped with premium, top-tier appliances.This residence is a showcase of refined elegance and thoughtful design. Each spacious bedroom offers a private en suite bath with stunning tilework, while the expansive first-floor primary suite is a true sanctuary, complete with a spa-inspired bath, freestanding soaking tub, frameless glass shower, and custom-built walk-in closet.Additional highlights include two sun-filled laundry

Ubicación

Hechos y características

Tipo:
Residential
Estacionamiento:
2+ Spaces / Driveway / Garage - Attached / Street
Año de construcción:
2022
Lote:
7701 Pies Cuadrados
Calefacción:
Central
precio por sq. medidor:
$656
Enfriamiento:
Central / Zoned
HOA:
Sin datos
Más hechos y características
  • Piso

    • Carpet

    • Tile

    • Wood Floor

    Calefacción

    • Central

    Enfriamiento

    • Central

    • Zoned

    Accesorios

    • Auto Garage Open

    • Dishwasher

    • Dryer

    • Microwave

    • Range - Electric

    • Refrigerator

    • Smoke Detector

    • Wall Oven

    • Washer

    • Water Heater - Elec

    Otras características interiores

    • Ctdrl/Vault Ceilings

    • Entry Lvl Lvng Area

    • Foyer

    • Kitchen Island

    • Pantry

    • Split Bedroom

    • Upstairs Living Area

    • Volume Ceiling

    • Walk-in Closet

    Dormitorios y baños

    • Dormitorios: 5

    • Baños: 1

    • Baños completos: 5

  • Estacionamiento

    • 2+ Spaces

    • Driveway

    • Garage - Attached

    • Street

    Propiedad

    • Piscina Privada: Si

    • Características Exteriores: Auto Sprinkler / Built-in Grill / Covered Patio / Fence / Open Balcony / Open Patio / Summer Kitchen

    Lote

    • Lote: 7701 Pies Cuadrados

    Otra Información de Propiedad

    • Número de Parcela: 52424126090000950

    • Zonificación: PCD(ci

  • Tipo y estilo

    • Tipo de propiedad: Residential

    • Subtipo de propiedad: Single Family Residence

  • Utilidad

    • Cable

    • Electric

    • Public Sewer

    • Public Water

  • Otra información financiera

    • Importe anual de impuestos: $40,188

  • Detalles de la fuente

    • MLS ID: RX-11138469

    Otros hechos

    • Materiales de construcción: CBS

    • Características del lote: < 1/4 Acre / Paved Road / Sidewalks

    • Características del patio y el porche: Balcony / Patio

    • Características de la piscina: Heated / Inground / Spa

    • Caras de dirección: Donald Ross to Alton Road. Right on Blake Terr, Left on Machiavelli Way, Right on Mendel.

    • Espacios de garaje: 3

    • Garaje: Si

    • Salón: 5109

    • Nombre de subdivisión: ALTON NEIGHBORHOOD

Casas similares

13171 Artisan, Palm Beach Gardens, FL 33418 placeholder 13171 Artisan, Palm Beach Gardens, FL 33418
1 días
En Venta
Casa
$2,599,990
4 camas 4 baños 4,207 sqft
13171 Artisan, Palm Beach Gardens, FL 33418
5704 Gauguin, Palm Beach Gardens, FL 33418 placeholder 5704 Gauguin, Palm Beach Gardens, FL 33418
2 días
En Venta
Casa
$3,550,000
4 camas 4 baños 4,268 sqft
5704 Gauguin, Palm Beach Gardens, FL 33418
539 Les Jardin, Palm Beach Gardens, FL 33410 placeholder 539 Les Jardin, Palm Beach Gardens, FL 33410
4 días
En Venta
Casa
$3,450,000
4 camas 3 baños 3,600 sqft
539 Les Jardin, Palm Beach Gardens, FL 33410
274 Porto Vecchio, Palm Beach Gardens, FL 33418 placeholder 274 Porto Vecchio, Palm Beach Gardens, FL 33418
8 días
En Venta
Casa
$2,399,000
4 camas 4 baños 3,034 sqft
274 Porto Vecchio, Palm Beach Gardens, FL 33418
13198 Faberge, Palm Beach Gardens, FL 33418 placeholder 13198 Faberge, Palm Beach Gardens, FL 33418
8 días
En Venta
Casa
$2,650,000
3 camas 3 baños 2,984 sqft
13198 Faberge, Palm Beach Gardens, FL 33418
13615 Verde, Palm Beach Gardens, FL 33410 placeholder 13615 Verde, Palm Beach Gardens, FL 33410
17 días
En Venta
Casa
$2,900,000
5 camas 5 baños 3,626 sqft
13615 Verde, Palm Beach Gardens, FL 33410
13602 Verde, Palm Beach Gardens, FL 33410 placeholder 13602 Verde, Palm Beach Gardens, FL 33410
17 días
En Venta
Casa
$2,749,000
3 camas 4 baños 2,996 sqft
13602 Verde, Palm Beach Gardens, FL 33410
128 Siesta, Palm Beach Gardens, FL 33418 placeholder 128 Siesta, Palm Beach Gardens, FL 33418
18 días
En Venta
Casa
$2,899,000
5 camas 5 baños 4,085 sqft
128 Siesta, Palm Beach Gardens, FL 33418

The multiple listing information is provided by the Beaches MLS from a copyrighted compilation of listings. The compilation of listings and each individual listing are ©2026-present Beaches MLS. All Rights Reserved. The information provided is for consumers' personal, noncommercial use and may not be used for any purpose other than to identify prospective properties consumers may be interested in purchasing. All properties are subject to prior sale or withdrawal. All information provided is deemed reliable but is not guaranteed accurate, and should be independently verified. Listing courtesy of: Illustrated Properties LLC (Jupiter)