Contacto
Cuéntenos sobre sus necesidades

4480 S ASCOT CIRCLE

Casa En Venta
$600,000

BTC: 6.90846287

ETH: 300.00000000

51 días
4 camas
3 baños
2,406 sqft
Est. Rango de ventas estimado: $0 - $0
$0

Visión general

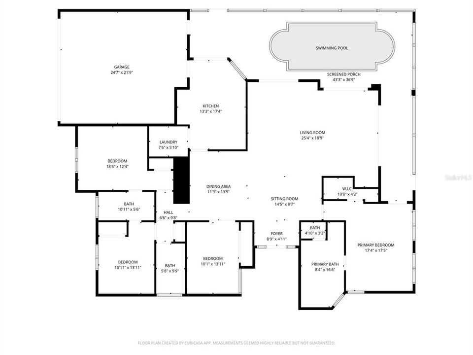
Pride of ownership defines this four-bedroom, three-bath desirable home located in Longwood Villas. Set on a water front private homesite with a panoramic water view, the property features an expanded lanai. The property boasts grand oak trees and lush tropical foliage, creating a serene and visually appealing outdoor environment. The light-filled great room features soaring ceilings, sliding doors, and skylights offering a warm and inviting space for relaxation and entertaining. The fun kitchen is both stylish and functional, featuring solid wood cabinetry, stainless steel appliances and an inviting eat-in area that overlooks the sparkling pool. The split-bedroom design includes a generous primary suite with walk-in closet and direct access to the pool area plus a gracious ensuite bathroom along with a double vanity, separate shower and tub. Two guest bedrooms share a convenient Jack-and-Jill bath, while the fourth bedroom offers flexibility as an office, den, or hobby room. Throughout the home, rich hardwood and tile floors contribute to the elegant, timeless aesthetic. Step outside to your screened wraparound porch area, where the private in-ground pool invites year-round relaxation. Located within the desirable Longwood Villas community the association takes care of replacement, repair and maintenance of the roof 2024, exterior painting and pressure cleaning, yard care and irrigation, plus the insurance on the building. The Picturesque Treed Community offers a scenic nature walk access. Longwood Villas of Tivoli Village is comprised of 101 single family detached, duplex and 5 plex homes located within a special enclave with four lakes, mature oaks, gazebo, and a small wooden bridge over 12- Acre Spring Fed Lake. Just 2 minutes to University Parkway Corridor you can enjoy Championship Golf, Dining, Shopping; as well as easy access to I-75. Lakewood Ranch Main Street and Waterside, and a short drive to world famous beaches! This home offers opportunity to update and create your own personalized style while living on one of the most desirable lots in the community. For those seeking Privacy, Tranquility, Trees and No Yard Work; Look no Further! This home perfectly captures the essence of Sarasota living—comfortable, private, and close to everything. Schedule your private showing today and discover why homes in Longwood Villas are so rarely available—your next Sarasota chapter begins here. A fabulous Florida lifestyle awaits.

Ubicación

Hechos y características

Tipo:
Residential
Estacionamiento:
Driveway / Garage Door Opener
Año de construcción:
1991
Lote:
0.16 Hectáreas
Calefacción:
Central / Electric
precio por sq. medidor:
$249
Enfriamiento:
Central Air
HOA:
$2,758
Más hechos y características
  • Piso

    • Carpet

    • Ceramic Tile

    • Hardwood

    Calefacción

    • Central

    • Electric

    Enfriamiento

    • Central Air

    Accesorios

    • Dishwasher

    • Disposal

    • Dryer

    • Microwave

    • Range

    • Refrigerator

    • Washer

    Otras características interiores

    • Built-in Features

    • Cathedral Ceiling(s)

    • Ceiling Fan(s)

    • Eating Space In Kitchen

    • High Ceilings

    • Living Room/Dining Room Combo

    • Open Floorplan

    • Primary Bedroom Main Floor

    • Skylight(s)

    • Solid Wood Cabinets

    • Split Bedroom

    • Stone Counters

    • Thermostat

    • Vaulted Ceiling(s)

    • Walk-In Closet(s)

    • Wet Bar

    Dormitorios y baños

    • Dormitorios: 4

    • Baños completos: 3

  • Estacionamiento

    • Driveway

    • Garage Door Opener

    Propiedad

    • Pisos: One

    • Piscina Privada: Si

    • Características Exteriores: Rain Gutters / Sliding Doors

    Lote

    • Lote: 0.16 Hectáreas

    Otra Información de Propiedad

    • Número de Parcela: 0019070045

    • Zonificación: RSF1

  • Tipo y estilo

    • Tipo de propiedad: Residential

    • Subtipo de propiedad: Single Family Residence

  • Utilidad

    • BB/HS Internet Available

    • Electricity Connected

    • Public

    • Sewer Connected

    • Street Lights

    • Underground Utilities

    • Water Connected

  • Otra información financiera

    • HOA: $2,758

    • Frecuencia HOA: Quarterly

    • Importe anual de impuestos: $3,248

  • Detalles de la fuente

    • MLS ID: A4670356

    Otros hechos

    • Materiales de construcción: Block / Stucco

    • Detalles de la fundación: Slab

    • Características de lavandería: Laundry Room

    • Características del lote: In County

    • Características del patio y el porche: Patio / Screened / Wrap Around

    • Características de la piscina: In Ground

    • Características de la ventana: Window Treatments

    • Caras de dirección: Northeast

    • Estilo arquitectónico: Florida / Mediterranean

    • Espacios de garaje: 2

    • Garaje adjunto: Si

    • Garaje: Si

    • Salón: 2406

    • Fuente de agua: Public

    • Nombre de subdivisión: LONGWOOD VILLAS

Casas similares

7739 WHITEBRIDGE GLEN placeholder 7739 WHITEBRIDGE GLEN
1 días
En Venta
Casa
$475,000
3 camas 2 baños 1,609 sqft
7739 WHITEBRIDGE GLEN
4164 MACKAY FALLS TERRACE placeholder 4164 MACKAY FALLS TERRACE
2 días
En Venta
Casa
$490,000
2 camas 2 baños 1,841 sqft
4164 MACKAY FALLS TERRACE
6976 COUNTRY LAKES CIRCLE placeholder 6976 COUNTRY LAKES CIRCLE
2 días
En Venta
Casa
$750,000
4 camas 4 baños 3,023 sqft
6976 COUNTRY LAKES CIRCLE
5510 CHANTECLAIRE UNIT 46 placeholder 5510 CHANTECLAIRE UNIT 46
3 días
En Venta
Casa
$495,000
3 camas 2 baños 1,838 sqft
5510 CHANTECLAIRE UNIT 46
4729 OAK RUN DRIVE placeholder 4729 OAK RUN DRIVE
4 días
En Venta
Casa
$599,998
3 camas 2 baños 2,100 sqft
4729 OAK RUN DRIVE
7909 RIO BELLA PLACE placeholder 7909 RIO BELLA PLACE
5 días
En Venta
Casa
$595,000
2 camas 2 baños 1,901 sqft
7909 RIO BELLA PLACE
5860 MILTON AVENUE placeholder 5860 MILTON AVENUE
6 días
En Venta
Casa
$425,000
3 camas 2 baños 1,631 sqft
5860 MILTON AVENUE
2490 HUFFTON CIRCLE placeholder 2490 HUFFTON CIRCLE
6 días
En Venta
Casa
$489,900
4 camas 3 baños 1,988 sqft
2490 HUFFTON CIRCLE

The multiple listing information is provided by the Stellar MLS from a copyrighted compilation of listings. The compilation of listings and each individual listing are ©2025-present Stellar MLS. All Rights Reserved. The information provided is for consumers' personal, noncommercial use and may not be used for any purpose other than to identify prospective properties consumers may be interested in purchasing. All properties are subject to prior sale or withdrawal. All information provided is deemed reliable but is not guaranteed accurate, and should be independently verified. Listing courtesy of: RE/MAX ALLIANCE GROUP