Contacto
Cuéntenos sobre sus necesidades

47 FOLCROFT LANE

Casa Activo con contrato
$409,000

BTC: 13.63333333

ETH: 204.50000000

17 días
3 camas
3 baños
2,669 sqft
Est. Rango de ventas estimado: $0 - $0
$0

Visión general

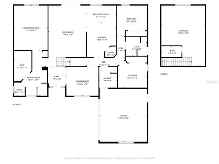
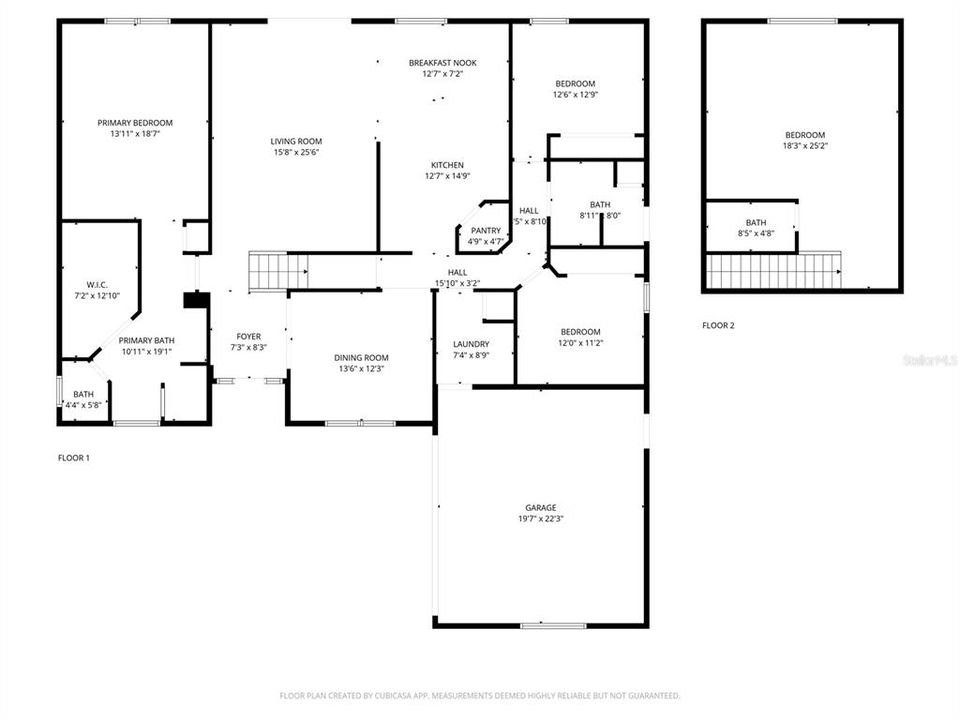
Under contract-accepting backup offers. Looking for a Palm Coast home that’s close to everything and easy to love? Look no further than this beautifully maintained 3-bedroom home with a spacious upstairs bonus room that includes its own full bath — perfect for guests, a home office, or extra living space! The open layout makes everyday living and entertaining effortless, featuring a bright kitchen with stainless appliances, plenty of storage, and a walk-in pantry. Step outside to a fully fenced backyard with a large covered patio and fire pit — ideal for relaxing or gathering with friends. Thoughtful details and modern updates include two HVAC systems (one replaced in 2023 and the other in 2025), a newer water heater (2021), and updated blinds (2020). Conveniently located near shopping, parks, and walking trails, and just minutes from Flagler Beach — with easy access to both St. Augustine and Daytona — this home perfectly blends comfort, location, and the relaxed coastal lifestyle Palm Coast is known for.

Ubicación

Hechos y características

Tipo:
Residential
Estacionamiento:
Sin datos
Año de construcción:
2007
Lote:
0.26 Hectáreas
Calefacción:
Central / Electric
precio por sq. medidor:
$153
Enfriamiento:
Central Air
HOA:
Sin datos
Más hechos y características
  • Piso

    • Carpet

    • Tile

    Calefacción

    • Central

    • Electric

    Enfriamiento

    • Central Air

    Accesorios

    • Dishwasher

    • Disposal

    • Dryer

    • Microwave

    • Range

    • Refrigerator

    • Washer

    Otras características interiores

    • Ceiling Fan(s)

    • High Ceilings

    • Walk-In Closet(s)

    Dormitorios y baños

    • Dormitorios: 3

    • Baños completos: 3

  • Propiedad

    • Pisos: Multi/Split

    • Características Exteriores: Private Mailbox

    Lote

    • Lote: 0.26 Hectáreas

    Otra Información de Propiedad

    • Número de Parcela: 0711317007002100100

    • Zonificación: SFR-3

  • Tipo y estilo

    • Tipo de propiedad: Residential

    • Subtipo de propiedad: Single Family Residence

  • Utilidad

    • BB/HS Internet Available

    • Cable Available

    • Electricity Connected

    • Phone Available

    • Sewer Connected

    • Sprinkler Well

    • Water Connected

  • Otra información financiera

    • Importe anual de impuestos: $4,180

  • Detalles de la fuente

    • MLS ID: FC313427

    Otros hechos

    • Materiales de construcción: Block / Stucco

    • Detalles de la fundación: Slab

    • Características de lavandería: Inside

    • Características del lote: Conservation Area

    • Características del patio y el porche: Covered / Patio

    • Características de la ventana: Blinds / Double Pane Windows

    • Caras de dirección: Southwest

    • Estilo arquitectónico: Traditional

    • Espacios de garaje: 2

    • Garaje adjunto: Si

    • Garaje: Si

    • Salón: 2669

    • Fuente de agua: Public

    • Nombre de subdivisión: PALM HARBOR

Casas similares

193 MISTY HARBOR TRACE placeholder 193 MISTY HARBOR TRACE
Nuevo
Activo con contrato
Adosados
$335,990
3 camas 2 baños 1,181 sqft
193 MISTY HARBOR TRACE
18 BRUSHWOOD LANE placeholder 18 BRUSHWOOD LANE
Nuevo
Activo con contrato
Casa
$379,400
4 camas 3 baños 2,117 sqft
18 BRUSHWOOD LANE
195 WELLINGTON DRIVE placeholder 195 WELLINGTON DRIVE
1 días
Activo con contrato
Casa
$400,000
3 camas 2 baños 2,030 sqft
195 WELLINGTON DRIVE
78 BREEZE HILL LANE placeholder 78 BREEZE HILL LANE
2 días
Activo con contrato
Casa
$339,900
3 camas 2 baños 1,260 sqft
78 BREEZE HILL LANE
20 COUNTRY CLUB HARBOR CIRCLE placeholder 20 COUNTRY CLUB HARBOR CIRCLE
2 días
Activo con contrato
Casa
$399,990
3 camas 3 baños 2,057 sqft
20 COUNTRY CLUB HARBOR CIRCLE
200 OCEAN CREST DRIVE UNIT 624 placeholder 200 OCEAN CREST DRIVE UNIT 624
2 días
Activo con contrato
Condo / Coop
$329,000
1 camas 1 baños 678 sqft
200 OCEAN CREST DRIVE UNIT 624
22 BURGUNDY PLACE placeholder 22 BURGUNDY PLACE
3 días
Activo con contrato
Casa
$459,900
4 camas 3 baños 2,451 sqft
22 BURGUNDY PLACE
10 WESTGATE LANE placeholder 10 WESTGATE LANE
5 días
Activo con contrato
Casa
$359,900
3 camas 2 baños 2,257 sqft
10 WESTGATE LANE

The multiple listing information is provided by the Stellar MLS from a copyrighted compilation of listings. The compilation of listings and each individual listing are ©2025-present Stellar MLS. All Rights Reserved. The information provided is for consumers' personal, noncommercial use and may not be used for any purpose other than to identify prospective properties consumers may be interested in purchasing. All properties are subject to prior sale or withdrawal. All information provided is deemed reliable but is not guaranteed accurate, and should be independently verified. Listing courtesy of: PARKSIDE REALTY GROUP