Contacto
Cuéntenos sobre sus necesidades

5143 Elpine, Riviera Beach, FL 33418

Casa En Venta
$500,000

BTC: 5.75705239

ETH: 250.00000000

1 días
4 camas
2 baños
1,890 sqft
Est. Rango de ventas estimado: $0 - $0
$0

Visión general

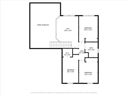
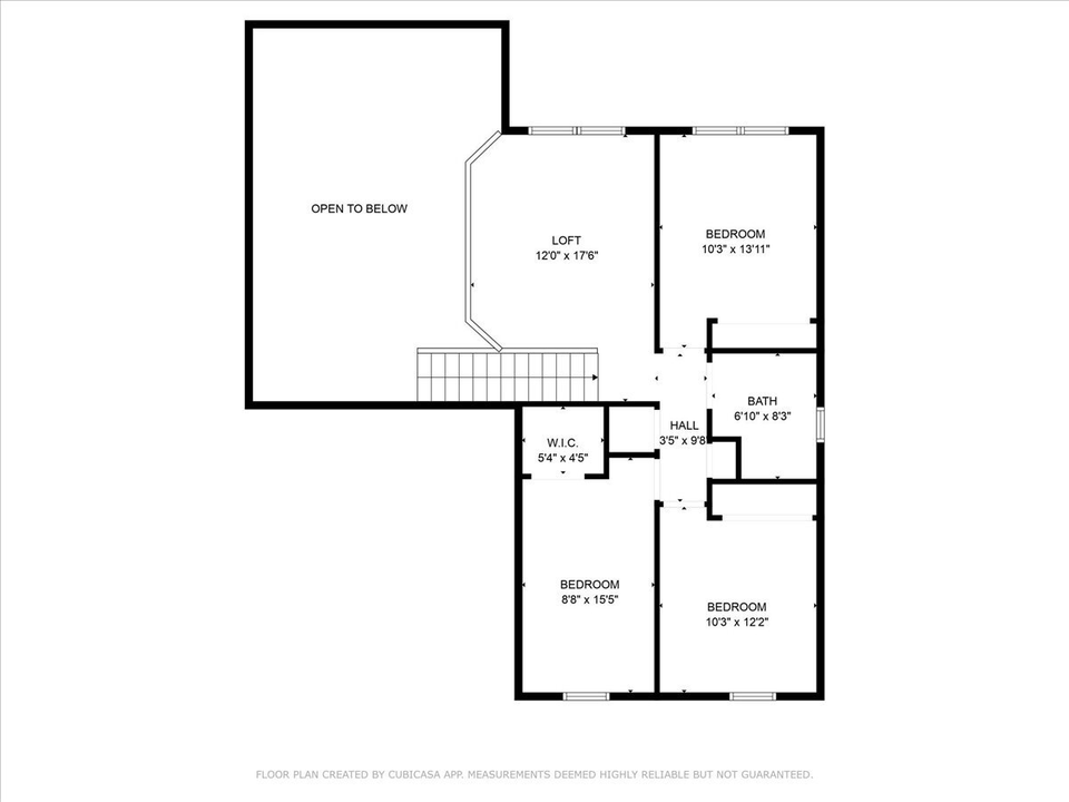
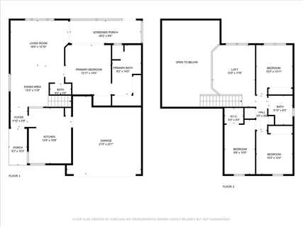
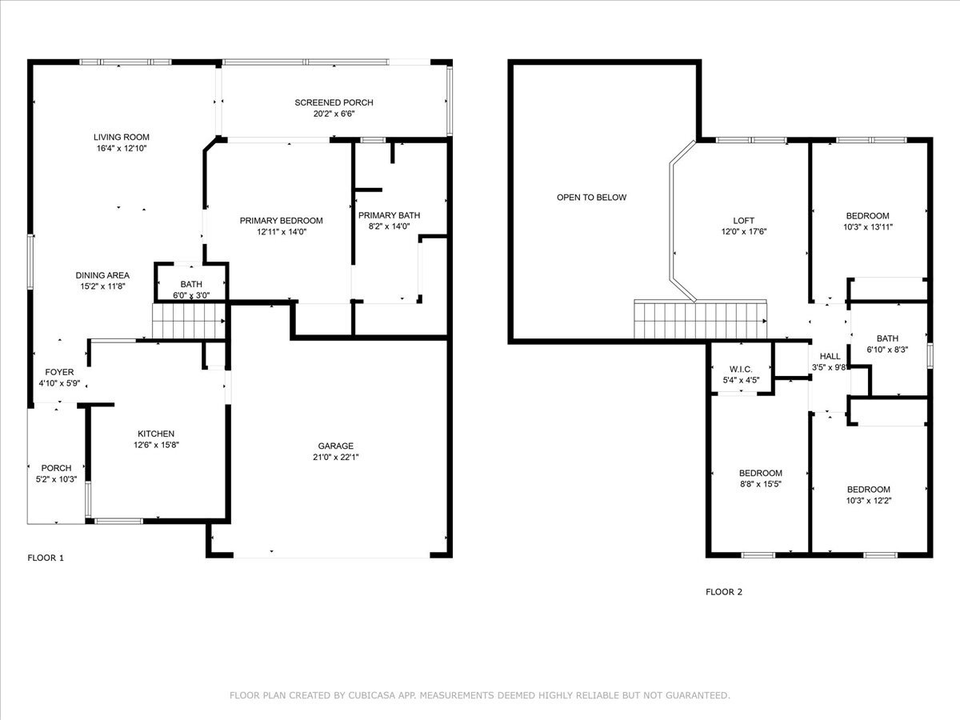
For Rent or Sale - Gorgeous CBS 4 Bedroom, 2.5 Bathroom, 2-Car Garage home in the highly sought-after gated community of Woodbine. Recently updated with a brand-new kitchen featuring stainless steel appliances, new flooring, and fresh paint throughout. The first-floor master suite offers double door entry, a spacious ensuite bath, and ample closet space. Main level living includes laminate flooring, a screened-in lanai, and a bright breakfast area. Upstairs boasts a large loft, three bedrooms, and a full bath. Enjoy a private backyard perfect for entertaining. Woodbine offers 24/7 guard-gated security, low HOA fees, and resort-style amenities including pools, tennis, fitness center, and more--all in a prime Palm Beach Gardens location.

Ubicación

Hechos y características

Tipo:
Residential
Estacionamiento:
Garage - Attached / RV/Boat
Año de construcción:
2000
Lote:
4792 Pies Cuadrados
Calefacción:
Central
precio por sq. medidor:
$265
Enfriamiento:
Central / Electric
HOA:
Sin datos
Más hechos y características
  • Piso

    • Carpet

    • Laminate

    • Tile

    Calefacción

    • Central

    Enfriamiento

    • Central

    • Electric

    Accesorios

    • Auto Garage Open

    • Dishwasher

    • Dryer

    • Range - Electric

    • Refrigerator

    • Smoke Detector

    • Storm Shutters

    • Washer

    • Water Heater - Elec

    Otras características interiores

    • Ctdrl/Vault Ceilings

    • Entry Lvl Lvng Area

    • Foyer

    • Split Bedroom

    • Walk-in Closet

    Dormitorios y baños

    • Dormitorios: 4

    • Baños: 1

    • Baños completos: 2

  • Estacionamiento

    • Garage - Attached

    • RV/Boat

    Propiedad

    • Características Exteriores: Fence / Screened Patio

    Lote

    • Lote: 4792 Pies Cuadrados

    Otra Información de Propiedad

    • Número de Parcela: 56424225250000360

    • Zonificación: R-PUD(

  • Tipo y estilo

    • Tipo de propiedad: Residential

    • Subtipo de propiedad: Single Family Residence

  • Utilidad

    • Cable

    • Electric

    • Public Sewer

    • Public Water

  • Otra información financiera

    • Importe anual de impuestos: $8,847

  • Detalles de la fuente

    • MLS ID: RX-11149029

    Otros hechos

    • Materiales de construcción: CBS

    • Características del lote: < 1/4 Acre

    • Características del patio y el porche: Patio

    • Caras de dirección: Situated on the west side of Military Trail, just north of Blue Heron Boulevard. Access is through the gated entrance

    • Espacios de garaje: 2

    • Garaje: Si

    • Salón: 1890

    • Nombre de subdivisión: WOODBINE PAR E

Casas similares

6017 Pine Tree, Riviera Beach, FL 33410 placeholder 6017 Pine Tree, Riviera Beach, FL 33410
1 días
En Venta
Casa
$470,000
3 camas 2 baños 1,635 sqft
6017 Pine Tree, Riviera Beach, FL 33410
5649 Mentmore Drive, West Palm Beach, FL 33407 placeholder 5649 Mentmore Drive, West Palm Beach, FL 33407
2 días
En Venta
Adosados
$410,000
3 camas 2 baños 1,454 sqft
5649 Mentmore Drive, West Palm Beach, FL 33407
2100 Bonisle, Riviera Beach, FL 33418 placeholder 2100 Bonisle, Riviera Beach, FL 33418
2 días
En Venta
Casa
$410,000
2 camas 2 baños 1,213 sqft
2100 Bonisle, Riviera Beach, FL 33418
357 Prestwick, Palm Beach Gardens, FL 33418 placeholder 357 Prestwick, Palm Beach Gardens, FL 33418
2 días
En Venta
Adosados
$419,000
3 camas 3 baños 1,532 sqft
357 Prestwick, Palm Beach Gardens, FL 33418
326 Brackenwood, Palm Beach Gardens, FL 33418 placeholder 326 Brackenwood, Palm Beach Gardens, FL 33418
3 días
En Venta
Condo / Coop
$499,000
2 camas 2 baños 1,366 sqft
326 Brackenwood, Palm Beach Gardens, FL 33418
817 Buttonwood, North Palm Beach, FL 33408 placeholder 817 Buttonwood, North Palm Beach, FL 33408
3 días
En Venta
Casa
$499,888
3 camas 2 baños 1,151 sqft
817 Buttonwood, North Palm Beach, FL 33408
1015 10th, Palm Beach Gardens, FL 33410 placeholder 1015 10th, Palm Beach Gardens, FL 33410
4 días
En Venta
Adosados
$369,999
2 camas 2 baños 1,236 sqft
1015 10th, Palm Beach Gardens, FL 33410
61 Ironwood, Palm Beach Gardens, FL 33418 placeholder 61 Ironwood, Palm Beach Gardens, FL 33418
4 días
En Venta
Casa
$549,900
3 camas 2 baños 1,480 sqft
61 Ironwood, Palm Beach Gardens, FL 33418

The multiple listing information is provided by the Beaches MLS from a copyrighted compilation of listings. The compilation of listings and each individual listing are ©2025-present Beaches MLS. All Rights Reserved. The information provided is for consumers' personal, noncommercial use and may not be used for any purpose other than to identify prospective properties consumers may be interested in purchasing. All properties are subject to prior sale or withdrawal. All information provided is deemed reliable but is not guaranteed accurate, and should be independently verified. Listing courtesy of: Illustrated Properties LLC (Jupiter)