Contacto
Cuéntenos sobre sus necesidades

556 Greenway, North Palm Beach, FL 33408

Casa En Venta
$4,275,000

BTC: 46.97802198

ETH: 1,379.03225806

-$25K (2025/07/14)
234 días
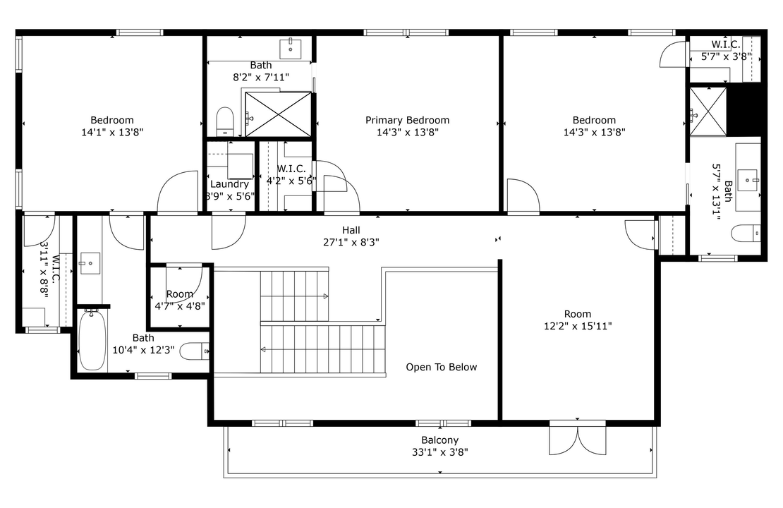
4 camas
4 baños
4,046 sqft
Est. Rango de ventas estimado: $0 - $0
$0

Visión general

Elegance and Comfort awaits at this brand-new residence in the sought-after Country Club Section of North Palm Beach. The large backyard, salt chlorination pool, and porch with summer kitchen make this home a perfect for place entertaining. Low voltage wiring is available throughout the house and the speakers on the patio are ready for Sonos. A 48KW whole house generator offers piece of mind on stormy days. The kitchen features high end Miele appliances, a large island and Marble Counters; a second fridge is located in the Butler's Pantry. There is laundry downstairs and upstairs for your convenience. All bedrooms feature ensuite baths. The oversize patio features a summer kitchen and opens to a large backyard. This is a must-see home; it is perfect even for the most demanding buyer!

Ubicación

Hechos y características

Tipo:
Residential
Estacionamiento:
2+ Spaces / Drive - Circular / Garage - Attached
Año de construcción:
2025
Lote:
13068 Pies Cuadrados
Calefacción:
Central
precio por sq. medidor:
$1,057
Enfriamiento:
Central
HOA:
Sin datos
Más hechos y características
  • Piso

    • Marble

    • Other

    • Tile

    • Wood Floor

    Calefacción

    • Central

    Enfriamiento

    • Central

    Accesorios

    • Auto Garage Open

    • Dishwasher

    • Dryer

    • Generator Whle House

    • Microwave

    • Range - Gas

    • Refrigerator

    • Washer

    • Water Heater - Gas

    Otras características interiores

    • Built-in Shelves

    • Entry Lvl Lvng Area

    • Fireplace(s)

    • Kitchen Island

    • Laundry Tub

    • Pantry

    • Upstairs Living Area

    • Volume Ceiling

    • Walk-in Closet

    Dormitorios y baños

    • Dormitorios: 4

    • Baños: 1

    • Baños completos: 4

  • Estacionamiento

    • 2+ Spaces

    • Drive - Circular

    • Garage - Attached

    Propiedad

    • Piscina Privada: Si

    • Características Exteriores: Built-in Grill / Covered Balcony / Covered Patio / Outdoor Shower / Summer Kitchen / Zoned Sprinkler

    Lote

    • Lote: 13068 Pies Cuadrados

    Otra Información de Propiedad

    • Número de Parcela: 68434208030000560

    • Zonificación: R-1

  • Tipo y estilo

    • Tipo de propiedad: Residential

    • Subtipo de propiedad: Single Family Residence

  • Utilidad

    • Cable

    • Electric

    • Gas Bottle

    • Public Sewer

    • Public Water

  • Otra información financiera

    • Importe anual de impuestos: $12,041

  • Detalles de la fuente

    • MLS ID: RX-11091825

    Otros hechos

    • Materiales de construcción: CBS

    • Características del lote: 1/4 to 1/2 Acre / West of US-1

    • Características del patio y el porche: Balcony / Patio

    • Características de la piscina: Heated / Salt Chlorination

    • Caras de dirección: US1 to Lighthouse Dr, go west to N Anchorage Dr, north to Country Club Dr, east on Greenway

    • Espacios de garaje: 3

    • Garaje: Si

    • Salón: 4046

    • Nombre de subdivisión: GOLF COURSE ADD TO VILLAGE OF NORTH PALM BEACH

Casas similares

539 Les Jardin, Palm Beach Gardens, FL 33410 placeholder 539 Les Jardin, Palm Beach Gardens, FL 33410
4 días
En Venta
Casa
$3,450,000
4 camas 3 baños 3,600 sqft
539 Les Jardin, Palm Beach Gardens, FL 33410
2270 Wilsee, Palm Beach Gardens, FL 33410 placeholder 2270 Wilsee, Palm Beach Gardens, FL 33410
6 días
En Venta
$3,000,000
6 camas 6 baños 7,011 sqft
2270 Wilsee, Palm Beach Gardens, FL 33410
2414 Bay Village, Palm Beach Gardens, FL 33410 placeholder 2414 Bay Village, Palm Beach Gardens, FL 33410
35 días
En Venta
Casa
$4,248,000
4 camas 4 baños 4,425 sqft
2414 Bay Village, Palm Beach Gardens, FL 33410
602 Oak Harbour, Juno Beach, FL 33408 placeholder 602 Oak Harbour, Juno Beach, FL 33408
-$200K (2025/12/11)
En Venta
Casa
$3,250,000
3 camas 3 baños 3,708 sqft
602 Oak Harbour, Juno Beach, FL 33408
12385 Coconut Row, Palm Beach Gardens, FL 33410 placeholder 12385 Coconut Row, Palm Beach Gardens, FL 33410
51 días
En Venta
Casa
$5,490,000
4 camas 3 baños 4,842 sqft
12385 Coconut Row, Palm Beach Gardens, FL 33410
12010 Us Highway 1, North Palm Beach, FL 33408 placeholder 12010 Us Highway 1, North Palm Beach, FL 33408
58 días
En Venta
Casa
$3,800,000
4 camas 1 baños 5,991 sqft
12010 Us Highway 1, North Palm Beach, FL 33408
3100 Ocean, Singer Island, FL 33404 placeholder 3100 Ocean, Singer Island, FL 33404
59 días
En Venta
Condo / Coop
$3,290,000
2 camas 2 baños 2,302 sqft
3100 Ocean, Singer Island, FL 33404
2346 Bay Village, Palm Beach Gardens, FL 33410 placeholder 2346 Bay Village, Palm Beach Gardens, FL 33410
-$210K (2025/12/11)
En Venta
Casa
$3,990,000
4 camas 3 baños 3,924 sqft
2346 Bay Village, Palm Beach Gardens, FL 33410

The multiple listing information is provided by the Beaches MLS from a copyrighted compilation of listings. The compilation of listings and each individual listing are ©2026-present Beaches MLS. All Rights Reserved. The information provided is for consumers' personal, noncommercial use and may not be used for any purpose other than to identify prospective properties consumers may be interested in purchasing. All properties are subject to prior sale or withdrawal. All information provided is deemed reliable but is not guaranteed accurate, and should be independently verified. Listing courtesy of: Douglas Elliman