Contacto
Cuéntenos sobre sus necesidades

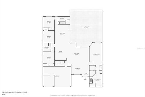
5601 WELLINGTON DRIVE

Casa Activo con contrato
$714,900

BTC: 10.21285714

ETH: 347.88321168

16 días
Frente al mar
4 camas
3 baños
2,529 sqft
Est. Rango de ventas estimado: $0 - $0
$0

Visión general

Under contract-accepting backup offers. Step into sunshine and serenity in Westwind at Ridgemoor, one of the area’s most desirable GATED communities! This beautiful Rutenberg model sits on a 1/3-acre corner lot with peaceful POND views, surrounded by lush landscaping that adds to its charm. Step inside and feel right at home. The OPEN floor plan is bright and airy, filled with NATURAL light and amazing views of the pool from nearly every angle. HIGH ceilings and elegant fixtures give the space a warm, welcoming feel — and best of all, there’s no carpet anywhere in the home. The living area features a cozy wood-burning fireplace accented by a custom decorative stone wall and wood mantel, creating the perfect spot to relax or entertain. The kitchen is a true showstopper — featuring 42” custom cabinetry with soft-close drawers and pull-outs, granite countertops, stainless steel appliances, double ovens, and a brand-new microwave (2025). A large island offers plenty of seating, making it an ideal gathering space for family and friends. The SPLIT FLOOR PLAN ensures privacy, with the primary suite offering a serene retreat. The primary bath features DUAL sinks, custom wood cabinetry, a walk-in shower, and a free-standing soaking TUB — the perfect place to unwind after a long day. Step outside through expansive sliding glass doors and a pocket slider to your screened-in lanai, where you’ll find a freeform POOL with a spill-over SPA, paver deck, and a large covered area for dining or lounging. It’s an outdoor retreat designed for Florida living. Recent updates bring peace of mind, including a new HVAC (2023), pool pump (2023), hot water heater (2024), new flooring throughout (2019), and LED lighting. The home also has a Culligan water softener with a water filtration system and a three-car garage for added convenience. The Ridgemoor community offers wonderful amenities, including a basketball court, parks, and tennis courts. Located just minutes from the Pinellas Trail, John Chesnut Park, Fred Howard Park, shopping, dining, and top-rated schools like East Lake High School, this home also offers easy access to the beaches and Tampa International Airport. Come experience the perfect blend of comfort, style, and location — this home truly has it all.

Ubicación

Hechos y características

Tipo:
Residential
Estacionamiento:
Garage Door Opener
Año de construcción:
1992
Lote:
0.32 Hectáreas
Calefacción:
Central / Electric
precio por sq. medidor:
$283
Enfriamiento:
Central Air
HOA:
$125
Más hechos y características
  • Piso

    • Carpet

    • Ceramic Tile

    Calefacción

    • Central

    • Electric

    Enfriamiento

    • Central Air

    Accesorios

    • Dishwasher

    • Microwave

    • Range

    • Refrigerator

    Otras características interiores

    • Ceiling Fan(s)

    • Crown Molding

    • Eating Space In Kitchen

    • High Ceilings

    • Kitchen/Family Room Combo

    • Living Room/Dining Room Combo

    • Open Floorplan

    • Primary Bedroom Main Floor

    • Solid Wood Cabinets

    • Stone Counters

    • Walk-In Closet(s)

    • Window Treatments

    Dormitorios y baños

    • Dormitorios: 4

    • Baños completos: 3

  • Estacionamiento

    • Garage Door Opener

    Propiedad

    • Pisos: One

    • Piscina Privada: Si

    • Características Exteriores: Hurricane Shutters / Irrigation System / Lighting / Rain Gutters / Sidewalk / Sliding Doors / Sprinkler Metered

    Lote

    • Lote: 0.32 Hectáreas

    Otra Información de Propiedad

    • Número de Parcela: 262716969180000630

    • Zonificación: RPD-2.5_1.0

  • Tipo y estilo

    • Tipo de propiedad: Residential

    • Subtipo de propiedad: Single Family Residence

  • Utilidad

    • BB/HS Internet Available

    • Cable Connected

    • Electricity Connected

    • Fiber Optics

    • Natural Gas Available

    • Public

    • Sewer Connected

    • Sprinkler Meter

    • Street Lights

    • Underground Utilities

    • Water Connected

  • Otra información financiera

    • HOA: $125

    • Frecuencia HOA: Monthly

    • Importe anual de impuestos: $9,610

  • Detalles de la fuente

    • MLS ID: TB8444428

    Otros hechos

    • Materiales de construcción: Block / Stucco

    • Detalles de la fundación: Slab

    • Características de la chimenea: Decorative / Family Room / Stone / Wood Burning

    • Características de lavandería: Inside / Laundry Room

    • Características del lote: Corner Lot / Oversized Lot

    • Características del patio y el porche: Enclosed

    • Características de la piscina: Deck / Gunite / In Ground / Outside Bath Access / Screen Enclosure

    • Caras de dirección: South

    • Estilo arquitectónico: Contemporary

    • Frente al mar: Si

    • Hogar: Si

    • Espacios de garaje: 3

    • Garaje adjunto: Si

    • Garaje: Si

    • Salón: 2529

    • Fuente de agua: Public

    • Tamaño de la parcela: 99 x 140

    • Nombre de subdivisión: WESTWIND

Casas similares

3588 ROLLING TRAIL placeholder 3588 ROLLING TRAIL
3 días
Activo con contrato
Casa
$625,000
3 camas 2 baños 1,832 sqft
3588 ROLLING TRAIL
4242 ELLINWOOD BOULEVARD placeholder 4242 ELLINWOOD BOULEVARD
4 días
Activo con contrato
Casa
$699,000
5 camas 3 baños 2,810 sqft
4242 ELLINWOOD BOULEVARD
4151 EAGLE WATCH BOULEVARD placeholder 4151 EAGLE WATCH BOULEVARD
5 días
Activo con contrato
Casa
$720,000
3 camas 3 baños 2,628 sqft
4151 EAGLE WATCH BOULEVARD
607 WATERFORD CIRCLE E placeholder 607 WATERFORD CIRCLE E
6 días
Activo con contrato
Casa
$550,000
3 camas 2 baños 2,010 sqft
607 WATERFORD CIRCLE E
16333 BIRKDALE DRIVE placeholder 16333 BIRKDALE DRIVE
6 días
Activo con contrato
Casa
$845,000
4 camas 3 baños 2,832 sqft
16333 BIRKDALE DRIVE
3843 GEORGIA COURT placeholder 3843 GEORGIA COURT
7 días
Activo con contrato
Casa
$800,000
3 camas 2 baños 3,170 sqft
3843 GEORGIA COURT
342 MANE COURT placeholder 342 MANE COURT
9 días
Activo con contrato
Casa
$549,900
4 camas 3 baños 2,308 sqft
342 MANE COURT
346 CARSON LANE placeholder 346 CARSON LANE
20 días
Activo con contrato
Casa
$559,000
3 camas 2 baños 1,832 sqft
346 CARSON LANE

The multiple listing information is provided by the Stellar MLS from a copyrighted compilation of listings. The compilation of listings and each individual listing are ©2026-present Stellar MLS. All Rights Reserved. The information provided is for consumers' personal, noncommercial use and may not be used for any purpose other than to identify prospective properties consumers may be interested in purchasing. All properties are subject to prior sale or withdrawal. All information provided is deemed reliable but is not guaranteed accurate, and should be independently verified. Listing courtesy of: WEICHERT REALTORS EXCLUSIVE PROPERTIES