Contacto
Cuéntenos sobre sus necesidades

5750 EMERINGTON CRES

Casa Activo con contrato
$2,190,000

BTC: 73.00000000

ETH: 1,095.00000000

15 días
5 camas
6 baños
5,838 sqft
Est. Rango de ventas estimado: $0 - $0
$0

Visión general

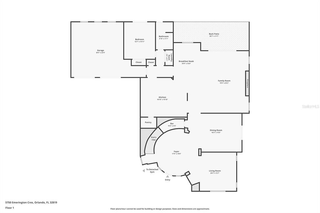
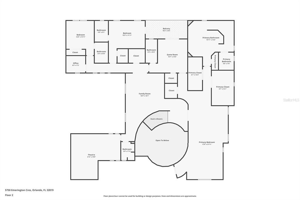
Under contract-accepting backup offers. Experience all that life has to offer in this magnificent custom-built Mediterranean estate in the exclusive guard-gated Emerson Pointe of Dr Phillips. From the circular foyer with polished marble floors, soaring ceilings, intricate trim, and a grand spiral staircase, every detail showcases refined craftsmanship and timeless elegance. Designed for entertaining, the main level centers around an impressive gathering room and a showstopping chef’s kitchen. A glass-front wine cellar sets the tone, while the gourmet space features professional stainless appliances, including a 6-burner gas range, integrated double refrigerator, wine cooler, ice maker, cooling drawers, and an oversized granite-topped island. Two-tone custom cabinetry with soft-close drawers and a hand-crafted wood-inlaid ceiling complete the look. Up the striking spiral staircase, discover a sophisticated media room with bar, a serene primary retreat, additional spacious bedrooms, and a second laundry. The primary suite offers a generous sitting area, inlaid marble flooring, and two expansive custom closets. The spa-inspired primary bath elevates everyday living with a sauna, stainless beverage refrigerator, espresso machine, and a luxurious multi-head shower. Step outside to your private luxury resort. The dramatic pool is a true centerpiece, enhanced by fountains, waterfalls, a water curtain, and fire features for unforgettable ambiance. The covered lanai includes a professional-grade summer kitchen, a remote-controlled louvered roof, cooling misters, and an automated mosquito-misting system—ensuring year-round comfort. Set within one of Orlando’s most coveted communities near Bay Hill Golf Club, world-class dining, and top-rated schools, this exceptional residence blends European-inspired architecture with modern luxury and effortless indoor-outdoor living. A rare opportunity to own a statement estate in Emerson Pointe. Be sure to click on the virtual tour links.

Ubicación

Hechos y características

Tipo:
Residential
Estacionamiento:
Circular Driveway / Garage Door Opener / Garage Faces Rear / Portico
Año de construcción:
2013
Lote:
0.29 Hectáreas
Calefacción:
Central / Electric
precio por sq. medidor:
$375
Enfriamiento:
Central Air / Zoned
HOA:
$1,128
Más hechos y características
  • Piso

    • Marble

    • Hardwood

    Calefacción

    • Central

    • Electric

    Enfriamiento

    • Central Air

    • Zoned

    Accesorios

    • Bar Fridge

    • Built-In Oven

    • Convection Oven

    • Dishwasher

    • Disposal

    • Dryer

    • Exhaust Fan

    • Ice Maker

    • Microwave

    • Range

    • Range Hood

    • Refrigerator

    • Tankless Water Heater

    • Washer

    • Wine Refrigerator

    Otras características interiores

    • Built-in Features

    • Cathedral Ceiling(s)

    • Ceiling Fan(s)

    • Coffered Ceiling(s)

    • Crown Molding

    • Eating Space In Kitchen

    • High Ceilings

    • Kitchen/Family Room Combo

    • Pest Guard System

    • Sauna

    • Solid Wood Cabinets

    • Stone Counters

    • Thermostat

    • Tray Ceiling(s)

    • Vaulted Ceiling(s)

    • Walk-In Closet(s)

    • Window Treatments

    Dormitorios y baños

    • Dormitorios: 5

    • Baños completos: 6

  • Estacionamiento

    • Circular Driveway

    • Garage Door Opener

    • Garage Faces Rear

    • Portico

    Propiedad

    • Pisos: Two

    • Piscina Privada: Si

    • Características Exteriores: Balcony / French Doors / Irrigation System / Lighting / Outdoor Grill / Outdoor Kitchen / Outdoor Shower / Rain Gutters / Sliding Doors

    Lote

    • Lote: 0.29 Hectáreas

    Otra Información de Propiedad

    • Número de Parcela: 212328246300670

    • Zonificación: P-D

  • Tipo y estilo

    • Tipo de propiedad: Residential

    • Subtipo de propiedad: Single Family Residence

  • Utilidad

    • Cable Connected

    • Electricity Connected

    • Propane

    • Sewer Connected

  • Otra información financiera

    • HOA: $1,128

    • Frecuencia HOA: Quarterly

    • Importe anual de impuestos: $25,895

  • Detalles de la fuente

    • MLS ID: O6356206

    Otros hechos

    • Materiales de construcción: Block / Stucco

    • Detalles de la fundación: Slab

    • Características de la chimenea: Family Room / Gas

    • Características de lavandería: Inside / Laundry Room / Upper Level

    • Características del lote: In County / Near Golf Course

    • Características del patio y el porche: Deck / Patio / Porch

    • Características de la piscina: Fiber Optic Lighting / Gunite / Heated / In Ground / Tile

    • Características de la ventana: Double Pane Windows

    • Caras de dirección: West

    • Otras estructuras: Outdoor Kitchen

    • Estilo arquitectónico: Custom / Mediterranean

    • Hogar: Si

    • Nombre del cuerpo de agua: LAKE TIBET

    • Espacios de garaje: 3

    • Garaje adjunto: Si

    • Garaje: Si

    • Salón: 5838

    • Fuente de agua: Public

    • Tamaño de la parcela: 109 x 126 x 90 x 125

    • Nombre de subdivisión: EMERSON POINTE

Casas similares

11019 ULLSWATER LANE placeholder 11019 ULLSWATER LANE
-$5K (2025/10/17)
Activo con contrato
Casa
$2,495,000
5 camas 4 baños 5,916 sqft
11019 ULLSWATER LANE
9120 SHEEN SOUND STREET placeholder 9120 SHEEN SOUND STREET
22 días
Activo con contrato
Casa
$2,450,000
6 camas 5 baños 5,232 sqft
9120 SHEEN SOUND STREET
5727 EMERINGTON CRESCENT placeholder 5727 EMERINGTON CRESCENT
-$230K (2025/08/28)
Activo con contrato
Lotes / Tierras
$1,995,000
0 room(s)
5727 EMERINGTON CRESCENT
9085 GREAT HERON CIRCLE placeholder 9085 GREAT HERON CIRCLE
82 días
Activo con contrato
Casa
$2,150,000
5 camas 5 baños 4,789 sqft
9085 GREAT HERON CIRCLE
9905 LANAI VIEW COURT placeholder 9905 LANAI VIEW COURT
-$250K (2025/08/21)
Activo con contrato
Casa
$2,650,000
5 camas 6 baños 7,621 sqft
9905 LANAI VIEW COURT
1020 OAKDALE STREET placeholder 1020 OAKDALE STREET
107 días
Activo con contrato
Casa
$2,200,000
5 camas 4 baños 3,994 sqft
1020 OAKDALE STREET
5950 MASTERS BOULEVARD placeholder 5950 MASTERS BOULEVARD
-$370K (2025/10/08)
Activo con contrato
Casa
$2,380,000
6 camas 5 baños 7,538 sqft
5950 MASTERS BOULEVARD
9070 RON DEN LANE placeholder 9070 RON DEN LANE
-$5K (2025/10/10)
Activo con contrato
Casa
$1,890,000
4 camas 3 baños 2,384 sqft
9070 RON DEN LANE

The multiple listing information is provided by the Stellar MLS from a copyrighted compilation of listings. The compilation of listings and each individual listing are ©2025-present Stellar MLS. All Rights Reserved. The information provided is for consumers' personal, noncommercial use and may not be used for any purpose other than to identify prospective properties consumers may be interested in purchasing. All properties are subject to prior sale or withdrawal. All information provided is deemed reliable but is not guaranteed accurate, and should be independently verified. Listing courtesy of: THE SIMON SIMAAN GROUP