Contacto
Cuéntenos sobre sus necesidades

5775 SW 132ND PLACE

Casa Activo con contrato
$283,965

BTC: 4.05664286

ETH: 138.18248175

-$3K (2025/12/15)
13 días
4 camas
2 baños
1,498 sqft
Est. Rango de ventas estimado: $0 - $0
$0

Visión general

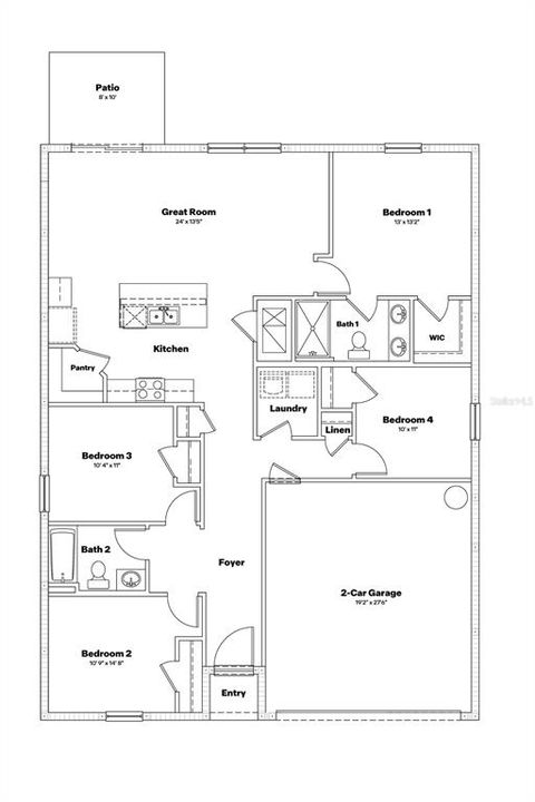
Under Construction. This all concrete block constructed, one-story home optimizes living space, featuring an open-concept kitchen overlooking the great room and outdoor patio. The well-appointed kitchen comes with all stainless-steel appliances, including a built-in dishwasher, range, and microwave. Bedroom 1 is located at the rear of the home for privacy and features an ensuite bathroom and walk-in closet near the bathroom. Two additional bedrooms at the front of the home are separated by the second bathroom. The third bedroom is located across the hallway near the laundry room. Pictures, photographs, colors, features, and sizes are for illustration purposes only and will vary from the homes as built. Home and community information including pricing, included features, terms, availability and amenities are subject to change and prior sale at any time without notice or obligation. CRC057592.

Ubicación

Hechos y características

Tipo:
Residential
Estacionamiento:
Sin datos
Año de construcción:
2025
Lote:
0.13 Hectáreas
Calefacción:
Electric / Heat Pump
precio por sq. medidor:
$190
Enfriamiento:
Central Air
HOA:
$70
Más hechos y características
  • Piso

    • Carpet

    • Luxury Vinyl

    Calefacción

    • Electric

    • Heat Pump

    Enfriamiento

    • Central Air

    Accesorios

    • Dishwasher

    • Microwave

    • Range

    Otras características interiores

    • Open Floorplan

    Dormitorios y baños

    • Dormitorios: 4

    • Baños completos: 2

  • Propiedad

    • Pisos: One

    • Características Exteriores: Irrigation System

    Lote

    • Lote: 0.13 Hectáreas

    Otra Información de Propiedad

    • Número de Parcela: 4120056093

    • Zonificación: PUD

  • Tipo y estilo

    • Tipo de propiedad: Residential

    • Subtipo de propiedad: Single Family Residence

  • Utilidad

    • Other

  • Otra información financiera

    • HOA: $70

    • Frecuencia HOA: Monthly

  • Detalles de la fuente

    • MLS ID: OM714750

    Otros hechos

    • Materiales de construcción: Block

    • Detalles de la fundación: Slab

    • Características de lavandería: Laundry Room

    • Caras de dirección: Northeast

    • Espacios de garaje: 2

    • Garaje adjunto: Si

    • Garaje: Si

    • Salón: 1498

    • Fuente de agua: Public

    • Nombre de subdivisión: MCGINLEY LANDING

Casas similares

3231 SW 132ND LANE placeholder 3231 SW 132ND LANE
Nuevo
Activo con contrato
Casa
$200,000
3 camas 2 baños 1,170 sqft
3231 SW 132ND LANE
4949 SW 109TH LOOP placeholder 4949 SW 109TH LOOP
1 días
Activo con contrato
Casa
$199,999
3 camas 2 baños 2,102 sqft
4949 SW 109TH LOOP
6870 SW 112TH STREET placeholder 6870 SW 112TH STREET
2 días
Activo con contrato
Casa
$209,900
2 camas 2 baños 1,425 sqft
6870 SW 112TH STREET
6010 SW 128TH ST ROAD placeholder 6010 SW 128TH ST ROAD
2 días
Activo con contrato
Casa
$286,990
3 camas 2 baños 1,552 sqft
6010 SW 128TH ST ROAD
13215 SW 41ST COURT placeholder 13215 SW 41ST COURT
2 días
Activo con contrato
Casa
$300,000
4 camas 2 baños 1,782 sqft
13215 SW 41ST COURT
3694 SW 131ST PLACE ROAD placeholder 3694 SW 131ST PLACE ROAD
3 días
Activo con contrato
Casa
$265,000
3 camas 2 baños 1,282 sqft
3694 SW 131ST PLACE ROAD
8005 SW 134TH LOOP placeholder 8005 SW 134TH LOOP
6 días
Activo con contrato
Casa
$239,900
4 camas 2 baños 2,169 sqft
8005 SW 134TH LOOP
5319 SW 128TH PLACE placeholder 5319 SW 128TH PLACE
6 días
Activo con contrato
Casa
$341,638
4 camas 2 baños 2,067 sqft
5319 SW 128TH PLACE

The multiple listing information is provided by the Stellar MLS from a copyrighted compilation of listings. The compilation of listings and each individual listing are ©2026-present Stellar MLS. All Rights Reserved. The information provided is for consumers' personal, noncommercial use and may not be used for any purpose other than to identify prospective properties consumers may be interested in purchasing. All properties are subject to prior sale or withdrawal. All information provided is deemed reliable but is not guaranteed accurate, and should be independently verified. Listing courtesy of: DR HORTON REALTY OF WEST CENTRAL FLORIDA