Contacto
Cuéntenos sobre sus necesidades

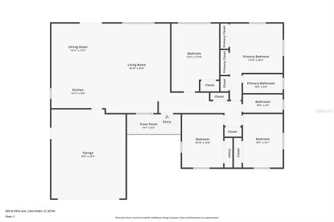
659 W OHIO AVENUE

Casa Activo con contrato
$514,001

BTC: 5.95253040

ETH: 175.66678059

-$21K (2025/11/06)
82 días
4 camas
2 baños
1,949 sqft
Est. Rango de ventas estimado: $0 - $0
$0

Visión general

Under contract-accepting backup offers. One or more photo(s) has been virtually staged. This is the one you’ve been waiting for! A completely remodeled 4 bedroom, 2 bath home offering 1,949 sq. ft. of beautifully updated living space on a peaceful 2.5-acre property. Originally built in 1978, this home was taken down to the details and fully renovated just a year and a half ago—including a new roof, new windows, updated plumbing, and upgraded electrical panel for true peace of mind. Inside, enjoy a bright open floor plan with designer touches throughout. The chef’s kitchen boasts quartz countertops, stainless steel appliances, and modern cabinetry, while the dining room shines with its own custom wine bar—perfect for entertaining. Both bathrooms have been tastefully updated, and the spacious bedrooms provide plenty of comfort and flexibility. Step outside and live the Florida lifestyle with your own private inground pool and fenced yard for privacy. Beyond the fence, the additional acreage provides space for your vision—whether it’s gardening, outdoor activities, or simply enjoying the quiet. And with SFRR zoning allowing for low-intensity agricultural use, you’ll have even more options for this property. All of this while still being just minutes from I-4 for an easy commute to Orlando, Daytona, and surrounding cities. You’re also close to Victoria Commons with restaurants, shops, and conveniences, as well as historic downtown Lake Helen, known for its charming historic buildings and popular weekly markets. This home is the perfect blend of modern updates, wide-open space, and small-town charm.

Ubicación

Hechos y características

Tipo:
Residential
Estacionamiento:
Driveway / Garage Door Opener
Año de construcción:
1978
Lote:
2.51 Hectáreas
Calefacción:
Electric / Heat Pump
precio por sq. medidor:
$264
Enfriamiento:
Central Air
HOA:
Sin datos
Más hechos y características
  • Piso

    • Tile

    • Vinyl

    Calefacción

    • Electric

    • Heat Pump

    Enfriamiento

    • Central Air

    Accesorios

    • Convection Oven

    • Dishwasher

    • Disposal

    • Electric Water Heater

    • Microwave

    • Range

    • Refrigerator

    • Wine Refrigerator

    Otras características interiores

    • Ceiling Fan(s)

    • Dry Bar

    • Living Room/Dining Room Combo

    • Open Floorplan

    • Primary Bedroom Main Floor

    • Stone Counters

    • Thermostat

    • Window Treatments

    Dormitorios y baños

    • Dormitorios: 4

    • Baños completos: 2

  • Estacionamiento

    • Driveway

    • Garage Door Opener

    Propiedad

    • Pisos: One

    • Piscina Privada: Si

    • Características Exteriores: Courtyard / Irrigation System / Lighting / Rain Gutters / Sliding Doors

    Lote

    • Lote: 2.51 Hectáreas

    Otra Información de Propiedad

    • Número de Parcela: 00703602000020

    • Zonificación: SFRR

  • Tipo y estilo

    • Tipo de propiedad: Residential

    • Subtipo de propiedad: Single Family Residence

  • Utilidad

    • BB/HS Internet Available

    • Electricity Connected

    • Water Connected

  • Otra información financiera

    • Importe anual de impuestos: $4,414

  • Detalles de la fuente

    • MLS ID: V4944950

    Otros hechos

    • Materiales de construcción: Block / Brick

    • Detalles de la fundación: Slab

    • Características de lavandería: Electric Dryer Hookup / In Garage / Washer Hookup

    • Características del lote: City Lot / Level / Oversized Lot

    • Características del patio y el porche: Front Porch / Patio

    • Características de la piscina: In Ground / Pool Alarm / Vinyl

    • Características de la ventana: Blinds

    • Caras de dirección: North

    • Estilo arquitectónico: Ranch

    • Espacios de garaje: 2

    • Garaje adjunto: Si

    • Garaje: Si

    • Salón: 1949

    • Fuente de agua: Public

    • Nombre de subdivisión: GOREY ESTATES

Casas similares

226 W PENNSYLVANIA AVENUE placeholder 226 W PENNSYLVANIA AVENUE
3 días
Activo con contrato
Casa
$515,800
4 camas 2 baños 2,035 sqft
226 W PENNSYLVANIA AVENUE
902 HERON POINT CIRCLE placeholder 902 HERON POINT CIRCLE
3 días
Activo con contrato
Casa
$370,000
3 camas 2 baños 1,687 sqft
902 HERON POINT CIRCLE
9032 CAPE COD ROAD placeholder 9032 CAPE COD ROAD
15 días
Activo con contrato
Casa
$359,900
4 camas 2 baños 2,100 sqft
9032 CAPE COD ROAD
504 GARDEN CLUB DRIVE placeholder 504 GARDEN CLUB DRIVE
-$28K (2025/11/30)
Activo con contrato
Casa
$505,000
3 camas 2 baños 2,220 sqft
504 GARDEN CLUB DRIVE
5004 BEAR LAKE LOOP placeholder 5004 BEAR LAKE LOOP
+$2K (2025/05/02)
Activo con contrato
Casa
$388,855
4 camas 2 baños 2,370 sqft
5004 BEAR LAKE LOOP
108 BEDFORD COURT placeholder 108 BEDFORD COURT
-$5K (2025/12/05)
Activo con contrato
Casa
$489,900
3 camas 3 baños 2,544 sqft
108 BEDFORD COURT
2902 COONTIE AVENUE placeholder 2902 COONTIE AVENUE
-$10K (2025/11/07)
Activo con contrato
Casa
$389,000
5 camas 3 baños 2,650 sqft
2902 COONTIE AVENUE
1208 EGGLESTON DRIVE placeholder 1208 EGGLESTON DRIVE
47 días
Activo con contrato
Casa
$525,000
2 camas 2 baños 1,843 sqft
1208 EGGLESTON DRIVE

The multiple listing information is provided by the Stellar MLS from a copyrighted compilation of listings. The compilation of listings and each individual listing are ©2025-present Stellar MLS. All Rights Reserved. The information provided is for consumers' personal, noncommercial use and may not be used for any purpose other than to identify prospective properties consumers may be interested in purchasing. All properties are subject to prior sale or withdrawal. All information provided is deemed reliable but is not guaranteed accurate, and should be independently verified. Listing courtesy of: GLORY INTL. REAL ESTATE CO